成都隆科熙悦怎么样丨隆科熙悦值得买吗丨隆科熙悦房价好房子:现房销售丨售楼热线丨项目情况丨户型图位置-未来发展

搜狐焦点眉山站 2025-09-19 13:08:00
用手机看
扫描到手机,新闻随时看

扫一扫,用手机看文章
更加方便分享给朋友

成都土地市场成交(2025年8月28日):成都市成功出让3宗住宅用地,总成交金额为7.62亿元。小学:温江区东大街第二小学(根据2023年区域划片合江路合江社区均为东二划片范围)、温江区东大街第一小学、东二长…

【售楼部/处电话】:4001816261 【已认证】

【销售经理】:15002828880(微信同步)

4001816261

1. 成都土地市场成交(2025年8月28日):成都市成功出让3宗住宅用地,总成交金额为7.62亿元。其中:

o 郫都区红光街道地块由正成竞得,溢价率10.87%

o 新都区新都街道地块由邦泰竞得,溢价率1.85%。

o 郫都区犀浦街道地块由邦泰底价竞得。

这些成交显示了成都土地市场一定的活跃度,部分地块仍存在竞价情况。

占地面积:约56亩,总栋数:住宅8栋,总户数:552户,梯户比:2T2户/2T4户,层高:13-18层,面积区间:89㎡/113㎡/125㎡

【C位之芯再赋新,大城配套再升级】

立体交通路网

三横三纵三地铁:快速串联全城,延伸城市生活空间

三横:成温邛高速、光华大道、花都大道

三纵:绕城高速、南熏大道、凤溪大道

三地铁:地铁17号线(市五医院站1.8KM)、地铁4号线(南熏大道站1.5KM)、地铁远期规划28号线(长安桥西站)

优质教育资源

名校荟萃,嫡传城芯人文气息

幼儿园:公平街办安居幼儿园、公平星星幼儿园、爱仁堡幼儿园、温江实验幼儿园

小学:温江区东大街第二小学(根据2023年区域划片合江路合江社区均为东二划片范围)、温江区东大街第一小学、东二长安路校区,成实小

中学:温江中学、温江二中、成都实验外国语学校、七中冠城学校、绵阳东辰、七中菁才(未建成)

大学:西南财经大学、成都中医药大学、四川农业大学、成都师范学院、成都交通职业技术学院、成都农业科技职业学院

C户型——建筑面积约89㎡

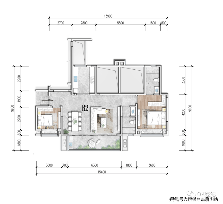
B2户型-建筑面积113㎡

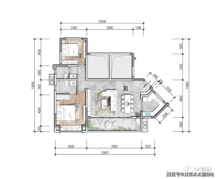
B1户型—建筑面积约113㎡

A户型—建筑面积约125㎡

温馨提示:为了给您提供更高更好的接待服务质量,看房请提前致电售楼部预约!

【看房有车接送服务,请致电预约】

【售楼部电话】:4001816261(预约看房)

【销售经理】:15002828880(微信同步)

声明:本文由入驻焦点开放平台的作者撰写,除焦点官方账号外,观点仅代表作者本人,不代表焦点立场。