成都隆科熙悦怎么样丨隆科熙悦值得买吗丨隆科熙悦房价资深顾问揭秘现房销售丨-交通-优劣势-位置-未来发展-小区解售楼热线丨项目情况丨户型图
扫描到手机,新闻随时看
扫一扫,用手机看文章
更加方便分享给朋友
4001816261
· 购房补贴:A类人才首套房补贴120万元(原标准80万),B类人才提至60万元;
· 免租住房:重点产业链企业引进人才,可申请60-120㎡人才公寓免租3年;
· 公积金加码:人才公积金贷款额度上浮30%,不受缴存时间限制。
占地面积:约56亩,总栋数:住宅8栋,总户数:552户,梯户比:2T2户/2T4户,层高:13-18层,面积区间:89㎡/113㎡/125㎡
【C位之芯再赋新,大城配套再升级】

立体交通路网
三横三纵三地铁:快速串联全城,延伸城市生活空间
三横:成温邛高速、光华大道、花都大道
三纵:绕城高速、南熏大道、凤溪大道
三地铁:地铁17号线(市五医院站1.8KM)、地铁4号线(南熏大道站1.5KM)、地铁远期规划28号线(长安桥西站)
优质教育资源
名校荟萃,嫡传城芯人文气息
幼儿园:公平街办安居幼儿园、公平星星幼儿园、爱仁堡幼儿园、温江实验幼儿园
小学:温江区东大街第二小学(根据2023年区域划片合江路合江社区均为东二划片范围)、温江区东大街第一小学、东二长安路校区,成实小
中学:温江中学、温江二中、成都实验外国语学校、七中冠城学校、绵阳东辰、七中菁才(未建成)
大学:西南财经大学、成都中医药大学、四川农业大学、成都师范学院、成都交通职业技术学院、成都农业科技职业学院

C户型——建筑面积约89㎡

B2户型-建筑面积113㎡

B1户型—建筑面积约113㎡

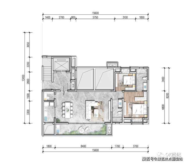
A户型—建筑面积约125㎡

声明:本文由入驻焦点开放平台的作者撰写,除焦点官方账号外,观点仅代表作者本人,不代表焦点立场。
