城投艺墅语湖 | 琅熙售楼处电话(户型图)额外优惠/特价房源/预约看房

搜狐焦点眉山站 2024-10-02 06:59:06
用手机看
扫描到手机,新闻随时看

扫一扫,用手机看文章
更加方便分享给朋友

成都各大售楼部纷纷推出“花式促销”,成交量翻番。二手房价格回调,黄金地段、地铁附近的小区价格亲民。发展红利叠加,东三环主城优越地位不可动摇。人文艺术高地,享受在艺术摇篮。便捷路网、繁华商业、医疗护航等。

☎售楼处电话028-60220139「已认证」☎

☎【置业顾问】:15928896133「微信同步」☎

☎【置业顾问】:18380188671「微信同步」☎

02860220139

“金九银十”悄然而至,成都各大售楼部也开始了“花式促销”,看得人眼花缭乱。

当然,效果也很好,2天就卖掉一大半的特价房源,有自媒体博主深夜还在售楼部外直播。

一边是各路新房搞活动促销,另一方面二手房价格也有了一定程度的回调,许多黄金地段、地铁附近的小区,价格也变得亲民了起来。

【城投艺墅语湖 | 琅熙】 东三环人文艺术高定墅作

★项目占地:219亩

★物业服务:龙湖物业

★产品类型:叠拼、高层、商墅

★项目产品:建面约210-274m²光感双生墅

★单价:19000元/㎡

★交付标准:清水交付

★公摊:

★层高:3.2

★绿化率:

★容积率:1.55

★物业费:

★ 交房时间:2025年9月份

面积段

上叠(234平) 四房两厅三卫 总价380起 楼顶花园49-56

中叠(212平)四房两厅三卫 总价370起 露台18平

下叠(274平)四房两厅四卫 总价450-550起 花园31-107

◇发展红利叠加:主城东三环十陵,以“中优”为准则多次调规,又以“东进”为方向加速发展,具有难以撼动的城市发展桥头堡地位。

◇人文艺术高地:比邻成都大学、东盟艺术学院,沉浸在人文殿堂,享受在艺术摇篮。

公园湖区:约30000亩青龙湖湿地公园、成都大学嘤鸣湖、东盟艺术学院内生态湖、环城生态带、缤纷生态花海等

人文艺术:成都藏书之最的图书馆、1200座专业艺术剧场、400座专业音乐厅等

快捷路网:地铁4号线(成都大学站、明蜀王陵站)、地铁9号线(在建中)、地铁12号线(规划中)、范家院子TOD(规划中)等

繁华商业:5分钟成大东盟生活圈、15分钟万象城商圈生活圈

菁英学府:十陵中学、十陵小学、成都大学附属小学等

医疗护航:四川省人民医院(东院)、成都长江医院、成都五六四医院等

◎城投置地 成都人文地标专家

成都多数人文地标,城投置地集团皆有参与。

◎建筑梦之队 合筑主城东封面之作

秉承国企匠心,助力成都“中优”、“东进”发展战略,携手国内一流团队,打造城东封面之作。

建筑设计团队--国恒设计

景观设计团队--景度设计

建筑施工团队--电力建设集团

◎艺墅溪谷园景 艺术的自然赞歌

在低密的土地肌理中打造都会少有溪谷景观,让艺术于生活的自然中发酵

一轴:约240m艺墅山谷景观轴

三重景:约240㎡景观艺墅水景、约100㎡艺墅阅读溪谷、约150㎡美国红枫庭落

‍♂一环:约700m环形健身跑道

?一园;约400㎡童梦溪谷乐园

十五庭:楼栋归家自然亭序

架空层泛会所:休息会客厅、运动健身、亲子陪伴

◎光感于心 双生墅境

光感美学立面 双生场景墅境

☉光学玻璃立面 迭代城东品味

☉IMAX级奢尺景观面,尽享光的暖意

☉家族式全景通透餐客厅,迎邀光感入室

☉270°寰幕视野,尽揽自然大境

◎全系墅境 高定标准

☉双生院落天地 纳藏丰盈四季

☉双生幻变空间 勾勒立体情境

☉独立归家庭序 墅质标配仪式

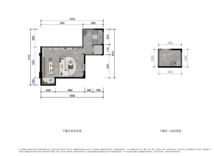
【户型推荐】

中叠户型图

☎售楼处电话028-60220139「已认证」☎

☎【置业顾问】:15928896133「微信同步」☎

☎【置业顾问】:18380188671「微信同步」☎

免责声明:

以上内容仅作为邀约邀请,涉及的图片为部分区域实拍图和美学畅想图,具体内容请以现场公示和合同约定为准;本文部分资料、部分图片来源于网络,如有侵权请联系我们删除。

声明:本文由入驻焦点开放平台的作者撰写,除焦点官方账号外,观点仅代表作者本人,不代表焦点立场。