成都冠城玲珑湾值得买吗丨冠城玲珑湾房价资深顾问揭秘现房销售丨-交通-优劣势-位置-未来发展-小区解售楼热线丨项目情况丨户型图
扫描到手机,新闻随时看
扫一扫,用手机看文章
更加方便分享给朋友
4001816261
1. 成都出台房产新政(2025年7月21日):成都市住房和城乡建设局等6部门联合发布《关于促进房地产市场平稳健康发展若干措施的通知》,推出17条具体措施。核心包括:
o 分批取消住房限售:规定2024年10月14日前购买的商品住房,取得《不动产权证书》后即可上市交易;2026年1月1日起,此前取得产证仍处于限售期的二手住房取消转让限制(特殊限售要求的楼盘除外)。
o 降低公积金购房门槛:购买第二套住房的公积金贷款最低首付款比例由30%降至20%。同时优化贷款额度计算公式,拟按缴存余额的25倍计算,以提高可贷额度。
o 扩大公积金使用范围:支持职工提取住房公积金用于住宅小区老旧电梯的更新(个人支付部分)。
【醇熟配套】10分钟主城生活圈?交通:两纵(三环/蜀王大道)两横(成洛大道/蜀都大道)交通路网,通达全程;地铁4号线来龙,规划道路修好以后800m。
商业:满足日常生活所需有龙泉人家、华润润街、社区底商,娱乐购物有万象城商圈、凯德广场、滨江天街等大型综合体。
教育:龙门幼儿园(480m)、友谊幼儿园(700m);友邻小学(700m)、师大附小临枫小学(1.9km)(“友邻小学”根;成都华川中学(1km)、第三中学(1.8km)区域规划来24所学校:包含13所幼儿园、6所小学、6所中学。
医疗:1.2km有成都五六四医院、1.8km有成都东升医院、2.1公里有成华区第六人民医院,2.8km有省医院东病区
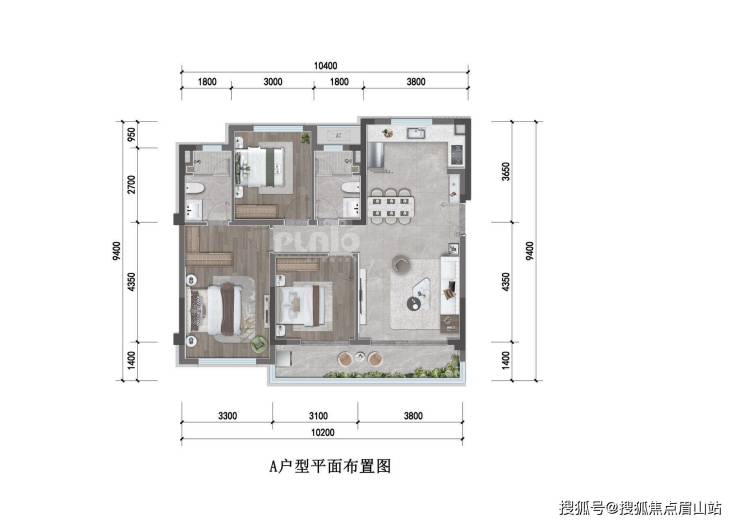
户型鉴赏:
95㎡
131㎡
声明:本文由入驻焦点开放平台的作者撰写,除焦点官方账号外,观点仅代表作者本人,不代表焦点立场。
