成都隆科熙悦值得买吗丨隆科熙悦房价资深顾问揭秘现房销售丨-交通-优劣势-位置-未来发展-小区解售楼热线丨项目情况丨户型图
扫描到手机,新闻随时看
扫一扫,用手机看文章
更加方便分享给朋友
4001816261
· 首批解禁:2024年10月14日前购买的商品住房,取得产权证后即可上市交易;
· 二手住房松绑:2026年1月1日起,同期取得产权证且仍在限售期的二手房取消转让限制。
【C位之芯再赋新,大城配套再升级】

立体交通路网
三横三纵三地铁:快速串联全城,延伸城市生活空间
三横:成温邛高速、光华大道、花都大道
三纵:绕城高速、南熏大道、凤溪大道
三地铁:地铁17号线(市五医院站1.8KM)、地铁4号线(南熏大道站1.5KM)、地铁远期规划28号线(长安桥西站)
优质教育资源
名校荟萃,嫡传城芯人文气息
幼儿园:公平街办安居幼儿园、公平星星幼儿园、爱仁堡幼儿园、温江实验幼儿园
小学:温江区东大街第二小学(根据2023年区域划片合江路合江社区均为东二划片范围)、温江区东大街第一小学、东二长安路校区,成实小
中学:温江中学、温江二中、成都实验外国语学校、七中冠城学校、绵阳东辰、七中菁才(未建成)
大学:西南财经大学、成都中医药大学、四川农业大学、成都师范学院、成都交通职业技术学院、成都农业科技职业学院

C户型——建筑面积约89㎡

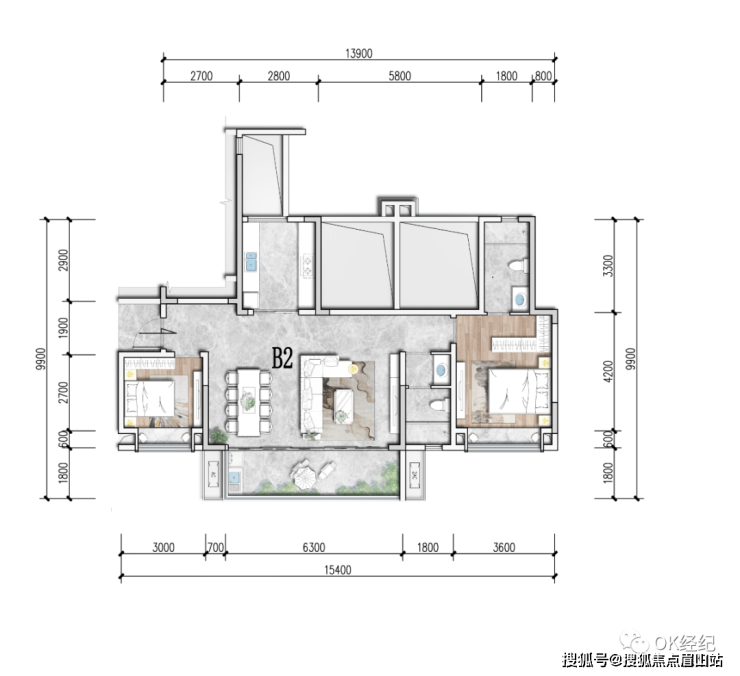
B2户型-建筑面积113㎡

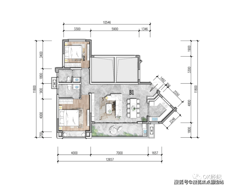
B1户型—建筑面积约113㎡

A户型—建筑面积约125㎡

声明:本文由入驻焦点开放平台的作者撰写,除焦点官方账号外,观点仅代表作者本人,不代表焦点立场。
