成都中国铁建·锦樾-楼盘详情-成都房产首页网站 现房销售丨周边配套-交通-优劣势-位置-未来发展-小区解售楼热线丨项目情况丨户型图资深顾问揭秘
扫描到手机,新闻随时看
扫一扫,用手机看文章
更加方便分享给朋友
4001816261
品牌——千亿央企,置业更安心

——国务院国资委授权从事房地产开发,人民大会堂、青藏铁路、FAST天眼建造者,全球最具实力特大型综合建设集团之一;
——81项国家科学技术奖、112项中国土木工程詹天佑奖、148项建筑工程鲁班奖、444项国家优质工程奖、19072项专利;
——“世界500强企业”第42位,“中国企业500强”第12位;
区域——青羊新城核心高端居住区
&.配套齐全,生活更方便
交通:拥有“三横三纵五轨道”城市立体交通网络,让您畅达全城。
·三横:日月大道、光华大道、光华八线;
·三纵:西3环、西3.5环、绕城高速;
·五轨道:距地铁四号线蔡桥站约450米,两站即可到达成都西站换乘地铁9号线,同时区域内还规划8号线、13号线、29号线;
教育:名校环绕,博学蕴养,全程优教文脉,让孩子赢在起跑线上。·成都市第六幼儿园(蔡桥园区)·泡桐树小学(绿舟校区)·树德实验中学(弘毅校区)
距项目仅一街之隔,为孩子提供3-18岁一流教育资源。
商业:坐享三大商圈,让您生活更为便利。开车3分钟即可到达鹏瑞利商场,15分钟即可到达青羊万达广场,同时项目北侧绿地熙世界正在同步火热招商中,步行五分钟即可到达;
医疗:三甲医院在侧,为您和家人健康保驾护航。项目距成都市妇女儿童中心医院约1.8公里,成飞医院约3公里,四川省人民医院约9公里
&.项目——独树5大标准,尊享精致生活
No.1 精致立面,匠心巨著青羊封面人居
项目建筑立面颇具现代风格,形态干练。米白色的墙面搭配蓝灰色的玻璃,同时香槟金的金属线条勾勒出建筑整体的力量感。
No.2 居于水间,享受自然的仪式感
六大水景主题景观,给您潺潺绘画出一幅灵动、雅致的生活画卷。
No.3 低密生态,目之所及皆是风景
约20000方生态园林,营造移步易景、趣意盎然的园林景观;
No.4 四大会所,畅玩不同主题空间
小区楼栋下打造亲子乐园、运动健身、老年活动与交互空间四大主题泛会所,给业主提供更多样化休闲娱乐方式;
No.5 高定服务,中国物业企业top12
自有物业服务,十余年高端服务经验
从爱心防疫礼包到热气腾腾的元宵,再到业主专属外卖员,无一不透露着用心与温暖
于点滴细节中,营造有温度的生活
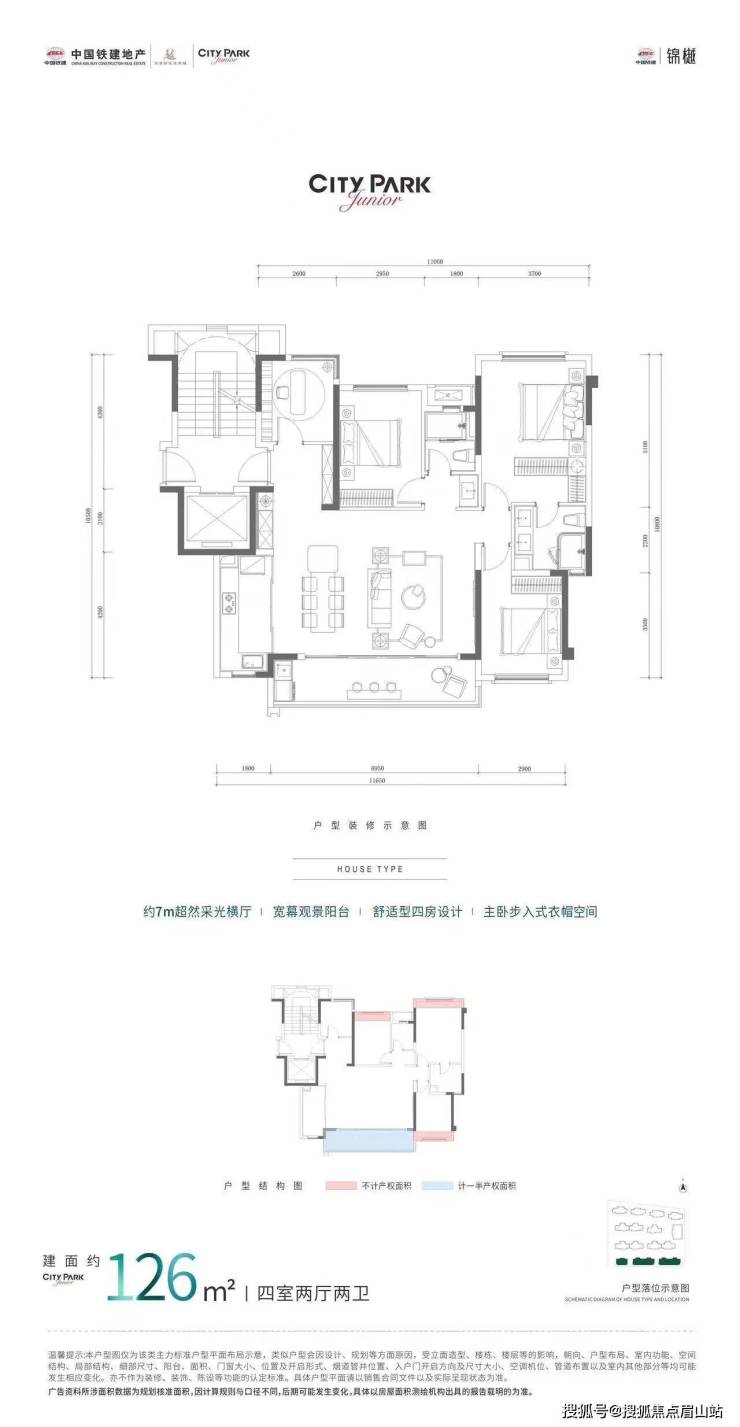
户型图赏析
声明:本文由入驻焦点开放平台的作者撰写,除焦点官方账号外,观点仅代表作者本人,不代表焦点立场。
