成都中海湖光玖里_中海湖光玖里5月房价_户型面积_项目最新情况

搜狐焦点眉山站 2025-05-01 02:25:00
用手机看
扫描到手机,新闻随时看

扫一扫,用手机看文章
更加方便分享给朋友

中海湖光玖里【营销中心】:028-84385818(预约看房) 【置业顾问】:18613205563(微信同步) 温馨提示:专业一对一热情服务,为了节约您的等待时间,看房请提前致电预约!!!

中海湖光玖里【营销中心】:028-84385818(预约看房)

【置业顾问】:18613205563(微信同步)

成都· 天府新区·麓湖公园区

基础数据

户型面积:

8-11层 102㎡ 1T2 板式套三真洋房

15-17层 129㎡ 2T2 私厅入户多功能套四

15-17层 143㎡ 2T2 私厅入户阔尺舒居套四

总层高:8-17层

总户数: 530户

总栋数: 15栋

占地:约50亩

绿化率:35%

容积率: 2.0

车位比:1:1.4

央企中海 稳健经营 布局全球

源于世界500强中建,43年布局全球90城

源于中建:连续16年世界500强,23年排名第8;

稳健经营:连续7年红线榜绿档,评级引领行业;

市场认可:连续17年销售业绩TOP10

深耕城南 助力成都城市革新

深耕成都24年,打造30多个精品项目,引领居住生活的迭代和升级;

从2000年神仙树的中海名城,到2022年天府“四子”,这一次以跃级品质,再造麓湖品质生活;

赋新麓湖 稀缺的纯改善低密住区

中海洞悉城市发展,布局热点板块引领城市价值

麓湖公园区的社群氛围、圈层纯粹感、城市界面新成为成都改善居住的顶层梦想;中海四年匠筑三子,从观园、麓湖公馆再到湖光玖里,以纯粹低密品质回应奢居向往。

三大高能版块汇集 惟享城市鼎级资源

择址天府新区麓湖公园区、中央法务区、中央商务区黄金三角连接点;

享受麓湖公园区稀缺生态资源,还占据中央商务区顶级的产业配套和城市商业资源,以及中央法务区的法务产业和法务服务配套,汇聚城市鼎级资源

纯低密豪宅住区 高阶居住天花板

作为成都均价最贵、热度最高版块,麓湖一直是公认的豪宅“天花板”版块;

二手房项目高层3.9万元/㎡起,在售新房总价700万起,高门槛使购房者望而却步;

4年仅出让3宗土地,低密花园洋房断供多年,低供应让购房者无选择;

湖光玖里距麓湖公园约200米,在100-143㎡内总价较低项目,也是上车麓湖为数不多的机会

黄金3公里成熟配套,高端资源围绕

🏕 万亩生态:与红石公园一街之隔,麓湖生态区,天府森林公园、天府中央公园等近万亩绿肺环绕

立体化交通:3纵(天府大道、梓州大道、益州大道)3横(沈阳路、武汉路、麓山大道);3TOD环绕:麓湖东TOD(规划中)、昌公堰TOD(建设中)、青岛路TOD(建设中)

璀璨商业:麓湖水镇、伊藤天府旗舰店(在建中)、天府和悦广场、山姆会员店、麓山麓镇;

优质学府:天府七中、四川天府新区第七小学、元音中小学、天府新区麓湖幼儿园、天府新区麓湖小学

人文聚落:麓湖4A艺展中心、雪莲堂美术馆、省博物馆(规划中)、天府大剧院(规划中)

跃级花园洋房,全面超越的高配户型

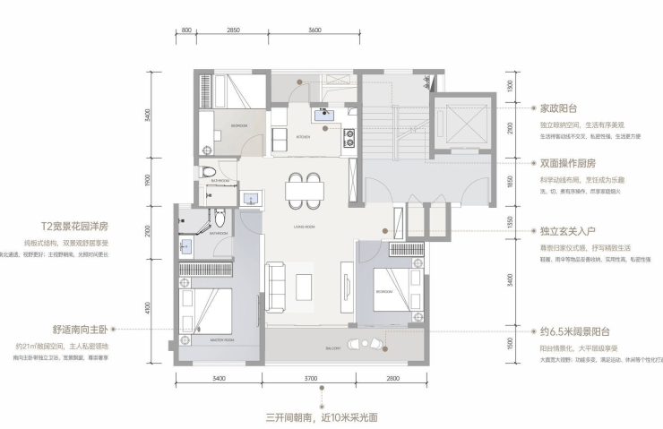
建面约102㎡板式花园洋房

市场稀缺8-11层洋房,最后购入麓湖洋房的机会

【T2宽景洋房】纯板式结构,南北通透、双景观视野

【约6.5m阳台】大面宽、大视野,大平层级的观景享受

【约40㎡竖厅】利用率更高,生活动线流畅

【南北双阳台】南北通透,独立晾纳,私密性强

建面约129㎡4+X创变四房

130㎡内唯一套4+X多功能空间,功能性最强产品

【X创变空间】多功能空间,满足家庭各阶段要求

【四开间朝南】约13.6米采光面,通风采光全升级

【LDKB社交】餐客厅连接书房阳台,一体化空间秩序,迭新生活场景

【约6.9米景观阳台】超大面宽,享巨幕风景

【三房带阔景飘窗】提升空间利用,可拓展功能空间,生活大有所享

建面约143㎡阔尺横厅四房

市场143㎡产品主功能区尺寸最大产品

【LDKB社交厅】约6.9米大面宽客餐厅与厨房、阳台无界连通

【约8.5m宽景阳台】270度广角视野,约1.8m进深,塑造花园梦

【五开间朝南】约15.9m采光面,超宽屏尺度,无遮挡视野;

【约26㎡大主卧】私享独立卫浴、衣帽间,双面观景享度假式生活

【灵动创变空间】定制化空间,满足家庭各个阶段的需求,书房、琴室、娱乐室随心布局

中海湖光玖里【营销中心】:028-84385818(预约看房)

【置业顾问】:18613205563(微信同步)

温馨提示:专业一对一热情服务,为了节约您的等待时间,看房请提前致电预约!!!

免责声明:

以上内容仅作为邀约邀请,涉及的图片为部分区域实拍图和美学畅想图,具体内容请以现场公示和合同约定为准;本文部分资料、部分图片来源于网络,如有侵权请联系我们删除。

声明:本文由入驻焦点开放平台的作者撰写,除焦点官方账号外,观点仅代表作者本人,不代表焦点立场。