【国贸蓉上】最新房价-预约热线-在售户型|价格-营销中心
扫描到手机,新闻随时看
扫一扫,用手机看文章
更加方便分享给朋友
国贸蓉上【营销中心】:028-84385818(预约看房)
【置业顾问】:18613205563(微信同步)
温馨提示:专业一对一热情服务,为了节约您的等待时间,看房请提前致电预约!!!
你敢信?成都5年人口暴涨了近500万!
2025年,一组成都统计局发布的数据引发了热烈讨论:
2024年成都常住人口约为2147.4万人,比2019年的1658.1,飙升了490万人,增幅高达30%;城镇化率80.8%,首次突破80%大关。
更震撼的是,当北京、上海、重庆因主动控规模或区域调整出现人口负增长(北京减1.8万、上海减13.1万、重庆减21.9万)时,成都却逆势抢人。
这不仅是2000万级城市中的独一份,更标志着成都正从西南中心向全国人口第三城发起冲刺。
基础信息开发商公司:成都悦蓉筑城有限公司,占地面积:42亩,容积率:1.7低密《纯洋房》,绿化率:35%,得房率:95%,总高:7-11层,层高:3米(普通)3.3米(楼王),梯户比:1梯2户,可售套数:344套,产权年限:70年,物业公司:国贸服务,物业费:4.2/㎡,车位比:1 :1.7,交房时间:预计2025年6月30日
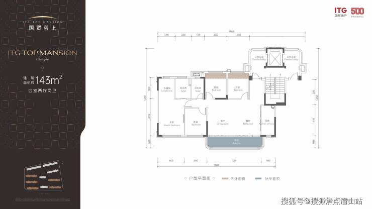
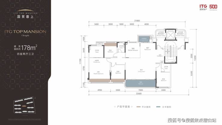
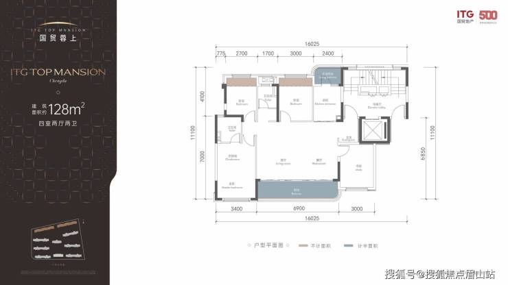
主推:128-143-161-178㎡,单价:3万-3.3万(精装),总价:380万-600万,
五大核心价值卖点:?千亿国企深耕成都,上系一号标杆作品?西贵南富核心枢纽,享三环内顶尖配套?回归主城中心城区,唯一成片开发区域?三轨交汇聚片区级TOD,助力板块腾飞?纯正花园洋房社区,融入城市精英圈层
主城南中环黄金人居环域太平园TOD,身处南中环腹地,承接桐梓林、丽都板块,自带高质居住人群基因坐拥主城南中环黄金人居环域
成都片区级TOD—三轨交汇聚太平园TOD太平园片区是是三国创意园产业功能区之一,太平园TOD项目设计研究范围达12平方公里,占地面积约1293亩,整体规划为一芯两轴两廊四片,一芯为太平园TOD核心,汇聚 3、7、10三条地铁交汇,贯穿全城的轨道交通枢纽区域,太平园TOD是成都市目前仅有的5个“三线换乘”TOD,还规划了主城第三座城市候机楼,未来将会成为成都主城的西南门户。
太平园TOD-人文都市综合体目前,太平园TOD一期工程已经动工,总投资约50亿元,其中一期工程定位为人文都市综合体及商务生活公园,建筑体量约13.34万方,规划成片开发的住宅区域、商业街区、体育公园、生态公园和办公配套,是主城三环内最大的真TOD,未来我们项目的业主通过高线生态走廊,
太平园TOD-花园洋房住区我们项目位于太平园TOD打造的花园洋房居住区,区域定位成为太平园 TOD 板块的高端生态低密度住区。不仅可以享受到原本主城中心城区最为成熟的城市级配套资源的同时,占据人文城西和国际城南,享多维政策红利加持
交通配套坐拥三横三纵的五轨立体交通网络体系三横:中环路、二环路、三环路三纵:佳灵路、创业路、高朋大道五轨:3/5/7/8/10号线5条在营地铁线包围,是整个成都地铁覆盖最密集区域。距离本案最近的地铁太平园站(600米)更是三线换乘,也让项目成为名副其实的轨道黄金枢纽,交通十分便捷。
商业配套以项目为圆心——IFS—太古里—春熙路商圈、新南商圈以及金融城商圈,还有五大区域级商圈——红牌楼商圈、大悦城商圈、玉林生活圈、双楠生活圈、磨子桥商圈。
医疗配套武侯区人民医院(二级甲等)、西南儿童医院、成都双楠医院(二级甲等)、四川省骨科医院(三级甲等),以及享誉盛名的华西医院
教育资源武侯区第七幼儿园、美亚蒙特梭利幼儿园、金苹果美宇幼儿园、成都华兴小学、北二外成都附属小学、北二外成都附属中学成都市第七幼儿园,是武侯区公办高标准、高品质幼儿园之一,于 2017年9月开园一共有9个班,提供270个学位。北二外有着“外交家摇篮”的美称。从师资方面,北二外附中是武侯区教育局“两自一包”(教师自聘、管理自主、经费包干)管理模式试点学校。为了保证学生中、高考成绩整体优秀,实行数学老师当班主任,并只教一个班,强化学生数学学科能力提升
三环内主城唯一低密真洋房项目产品信息:项目总占地约43亩,128—178㎡全4房低密花园洋房,仅344席,区域内最低容积率仅1.7,绿化率达35%,打造都市森谷、山川谷隐风格精致多维园林,并配置国贸物业、铂优管家,提供后期服务。
【户型鉴赏】
国贸蓉上【营销中心】:028-84385818(预约看房)
【置业顾问】:18613205563(微信同步)
温馨提示:专业一对一热情服务,为了节约您的等待时间,看房请提前致电预约!!!
免责声明:
以上内容仅作为邀约邀请,涉及的图片为部分区域实拍图和美学畅想图,具体内容请以现场公示和合同约定为准;本文部分资料、部分图片来源于网络,如有侵权请联系我们删除。
声明:本文由入驻焦点开放平台的作者撰写,除焦点官方账号外,观点仅代表作者本人,不代表焦点立场。
