成都国贸蓉上值得买吗_国贸蓉上售楼电话_国贸蓉上户型图大全资深顾问揭秘现房销售丨-交通-优劣势-位置-未来发展-小区解售楼热线丨项目情况丨户型图
扫描到手机,新闻随时看
扫一扫,用手机看文章
更加方便分享给朋友
4001816261
· 首批解禁:2024年10月14日前购买的商品住房,取得产权证后即可上市交易;
· 二手住房松绑:2026年1月1日起,同期取得产权证且仍在限售期的二手房取消转让限制。
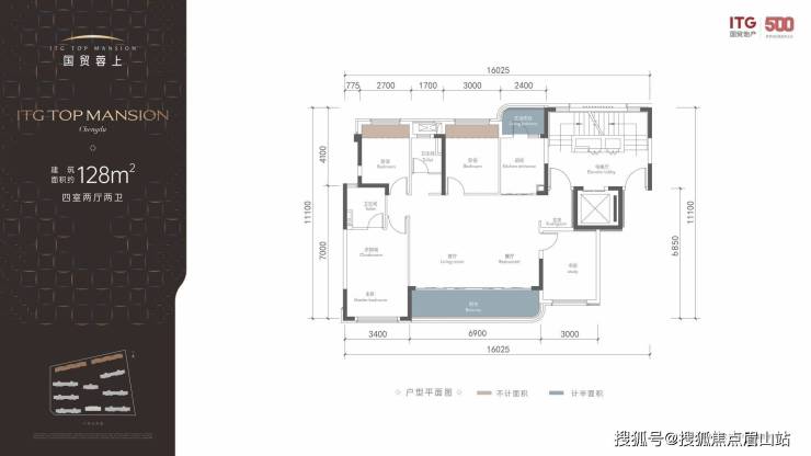
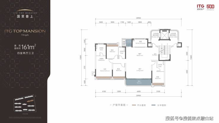
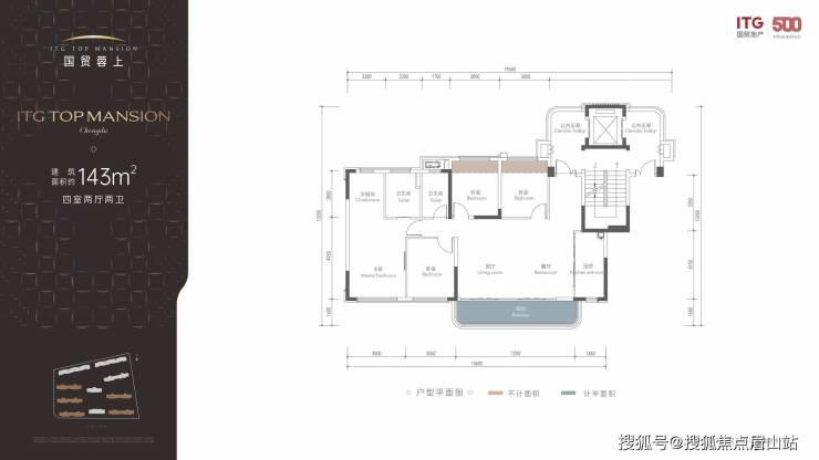
【产品信息】纯洋房 容积率1.7 三环内唯一面积:128/143/161/178㎡ 纯套四户型,单价:3-3.3万左右(精装),交付标准:精装,精装标准:总价区间:约380-600万
【项目信息】总占地:约42亩,总套数:仅344套,总层数:7-11层,物业费:4.2元/月,得房率:约95%,物管公司:国贸服务,梯户比:1梯2户,产权年限:70年(2023年-2093年),交房时间:预计2025年12月31日,层高:普通楼栋3米,楼王3.3米,车位比:约1:1.7
🌟五大核心价值卖点:
国贸 上系一号产品
区域最低容积 7层纯洋房 南北通透
全铝板外立面 奢华精装
产品力强 实得面积达95%
区域配套升级 学校 地铁 商场
国贸蓉上处处可见不计成本的投入打造,呈现了“上”系产品在成都首秀的满满诚意。以“海洋美学”为产品风格,项目主入口大门处即是“海之舞”雕塑和大门的波浪顶造型。
△国贸蓉上大门实景合成图
【户型鉴赏】
声明:本文由入驻焦点开放平台的作者撰写,除焦点官方账号外,观点仅代表作者本人,不代表焦点立场。
