成都天投中海天府合印值得买吗 现房销售丨周边配套-交通-优劣势-位置-未来发展-小区解售楼热线丨项目情况丨户型图资深顾问揭秘
扫描到手机,新闻随时看
扫一扫,用手机看文章
更加方便分享给朋友
4001816261
天投中海·天府合印,位于天府新区核芯天府前湾板块,紧邻现行天府商务区,且北接麓山、西连麓湖等高端板块,地理优势得天独厚。
项目1条大路直通天府CBD核芯地标,;3个红绿灯,可便捷通达天府大悦城;4站无需换乘直达天府商务区站。
溯源中海的择址观,过去的每一笔落子,皆是顺应成都发展步调,踩准每一个关键节点,在城市核芯区域落子扎根。
从老牌富人区神仙树板块,再到大源、金融城、锦江生态带、麓湖板块…中海入蓉22载,共匠造30盘,每一步脚印都踏准城市主流地段核芯区位,为城市建设发展贡献力量。
自天府前湾规划出炉以来,中海再次凭借敏锐的市场洞察和对城市功能的精研,看到了这一板块的发展红利及潜力。这一次,时代的指针指向了天府前湾,中海在城南的深耕与布局,也因此迈向了一个新的台阶。
天府前湾,是天府新区核芯区城市规划的收官之作,参照上海前滩、杭州前湾先进经验,将形成“天府森林新绿窗”、“政法服务新高地”、“公园生活新社区”三大功能定位。
板块内布局五大主题公园社区组团、串联社区的生态走廊、双TOD交通枢纽等资源,以公园人居为核芯定位,与CBD的商业规划相生相伴,高端居住基因凸显。
产业方面,天府前湾规划有“全国首个法务区”,作为政府打造的天府新区城市副中心,也是天府功能区的重要支撑极。
自2021年正式启动至今,法务区已聚集了最高人民法院第五巡回法庭审判点、成都中院金融法庭等司法机构14个,律所、公证、仲裁等法律服务机构100+家。
未来,四川省高级人民法院、成都市中级人民法院、国家法律学院、法治思想实践馆都落足于此,至2025年前,天府法务区将加快建设重点项目27个,总计建筑面积约160万平方米,总投资超190亿元。
*以上信息来源于四川天府新区公园城市建设局。
纵观产业布局,不难发现在天府前湾落子唯一法务区的原因。板块向北连接以IT、医药为主的金融城及新川科技园产业区,更有以金融产业为主导的天府国际基金小镇,南连众多大型商业、文化企业聚集的天府CBD。
法务产业在天府前湾板块的落地,不仅将新川、天府CBD两大商务中心串联起来,同时也填补了中间的产业空白,沿线形成了一条城南黄金产业腰带。
近20余年,成都城南的发展和崛起,沿着“天府大道”这一主轴,轰烈的拉开帷幕,让世界看到了一座新一线城市的腾飞。这个过程中,中海在天府大道西翼,留下了浓墨重彩的一笔。
然而,当天府大道以西的产业与楼市步入成熟饱和期,国际城南下个十年的重头戏看哪里?
答案是:天府西翼即将收官,天府东翼正在启幕。
2022年,基于对城市的深度参与和理解,中海再一次选定城南,洞见城南发展的必然趋势和下一条航道,重点布局天府东翼。
在中海布局的天府东翼战略线上,天府前湾坐拥着中间核芯位置。天府合印作为中海洞见城市发展的重要落子,以优越品质,承载着再次革新人居高度的使命。
如今,天府前湾规划再添重大利好!天府总部商务区向北扩容至牧华路和麓山大道,天府前湾升级成为天府总部商务区的组成部分。这也意味着,未来板块将得到更为合理的规划,实现区域更优发展。
天投中海·天府合印凭借五大价值维度,从品牌联袂、产品奢配、风格定制、产品超配、户型创造等方面,成为了天府新区当之无愧的首置灯塔级项目。
·品牌联袂:
成都天投集团&中海企业集团实力共筑
·产品奢配:
酒店式归家大堂,营造生活的精致仪式感
·风格定制:
独特风帆楼型/现代感外立面设计/潮感商业街区/都会风公区
·产品超配:
70亩大盘规划/约170米中轴庭院市场罕见/全南北朝向
户型&装修:
建面约92-101m²舒适三房,融入五维舒居标准体系
建面约113m²横厅三房,带来改善级空间进阶感受
建面约133m²央景四房,以大尺度营造比肩大平层的居住体验
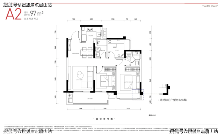
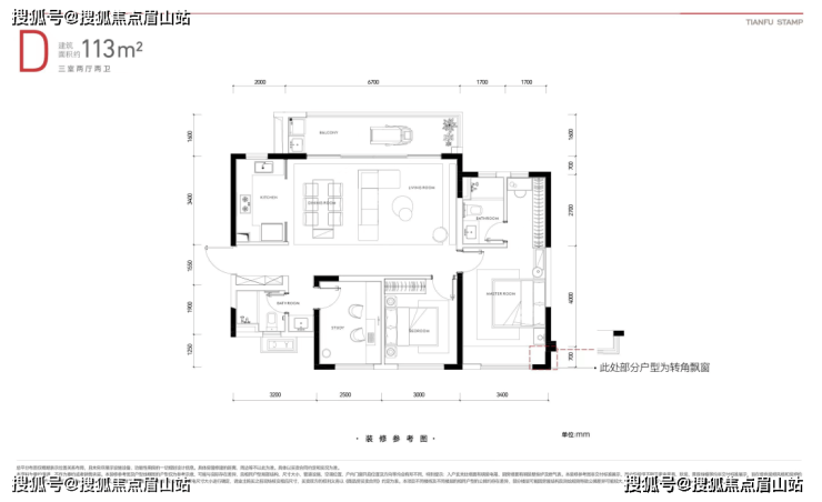
天府合印一批次只会推出9栋共计108套房源,因此它这次也只有两个户型可供选择,分别是97平三房两厅双卫和113平米三房两厅双卫。
A2户型:97平三房两厅双卫

这个户型就是天府合印唯一南向阳台封窗,计算全面积的户型,原因在于它需要公建化外立面保持城市界面的统一,但首批次在价格上也做了对应倾斜,主力总价段约200-210万。
户型本身的设计非常成熟,97平做到了三房两厅双卫,基本上就算满足了功能性要求了。而面宽9.8米,三开间朝南,三面采光,明厨明卫,则说明采光通风效果不错,舒适度会比较高;尺度方面,客厅开间3.6米,主卧开间3.3米,也是够用的;而主卧和书房0.7米进深的飘窗赠送,也是一个亮点。
D户型:113平三房两厅双卫

该户型为项目主力北侧户型,面宽达到了12.1米,双面采光。为了减少南侧户型对它的遮挡和影响,它将最不重要的次卫和书房放在了可能被遮挡的位置。而相对重要的客餐厅和厨房,则选择了朝北,并做了一体化设计,使得整体空间看上去仿佛达到了130-140平左右的户型。
主卧向南,带一个可采光的转角衣帽间,这在113平的户型中比较少见。赠送部分,会有一个1.6米宽,6.7米长的开放式阳台赠送一半的面积,约5.36平;另有主卧飘窗面积全赠送,约2.38平。
其它户型方面,因为本批次不推,且很多户型大同小异,所以我就放一个133平的户型图,大家自行了解,这3个户型也算是天府合印最具代表性的户型了。

关于装修,天府合印是精装交付的,装标2995元/平,通过样板间的感受来看,是符合中海这种等级的大厂标准化水准的,整体设计感和配置属于业内主流水平,物有所值。



展示样板间实拍
三大件方面,格力的中央空调、博世的地暖、百朗的新风一应俱全;天地墙方面,公区地面为马可波罗的瓷砖、卧室则是贝尔的实木复合地板,墙面和顶面为嘉宝莉乳胶漆;厨卫方面,厨房采用了博洛尼橱柜、方太的烟机灶具消毒柜、摩恩的龙头、弗兰卡的厨盆和名族的凉霸;卫生间使用了博洛尼的浴室柜和镜柜、乐家的台盆洁具淋浴五金等;此外,细节方面还做了电视背景墙、玄关柜、智能马桶盖等。


展示样板间实拍
总的来说,除了墙面没有配置墙纸这一项,显得有些留白之外,其它的配置和设计感都是不错的,作为“人生第一套”房来说,面子和里子都没有落下。
声明:本文由入驻焦点开放平台的作者撰写,除焦点官方账号外,观点仅代表作者本人,不代表焦点立场。
