成都明信四季东安最新房价-明信四季东安售楼电话-户型图-首页网站
扫描到手机,新闻随时看
扫一扫,用手机看文章
更加方便分享给朋友

【总占地面积】22786.65㎡(34亩),【容积率】1.5,【总户数】276户,【总栋数】10栋 ,【产品类型】 洋房
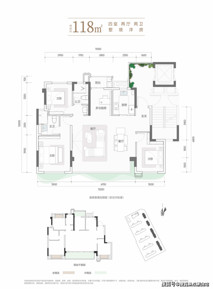
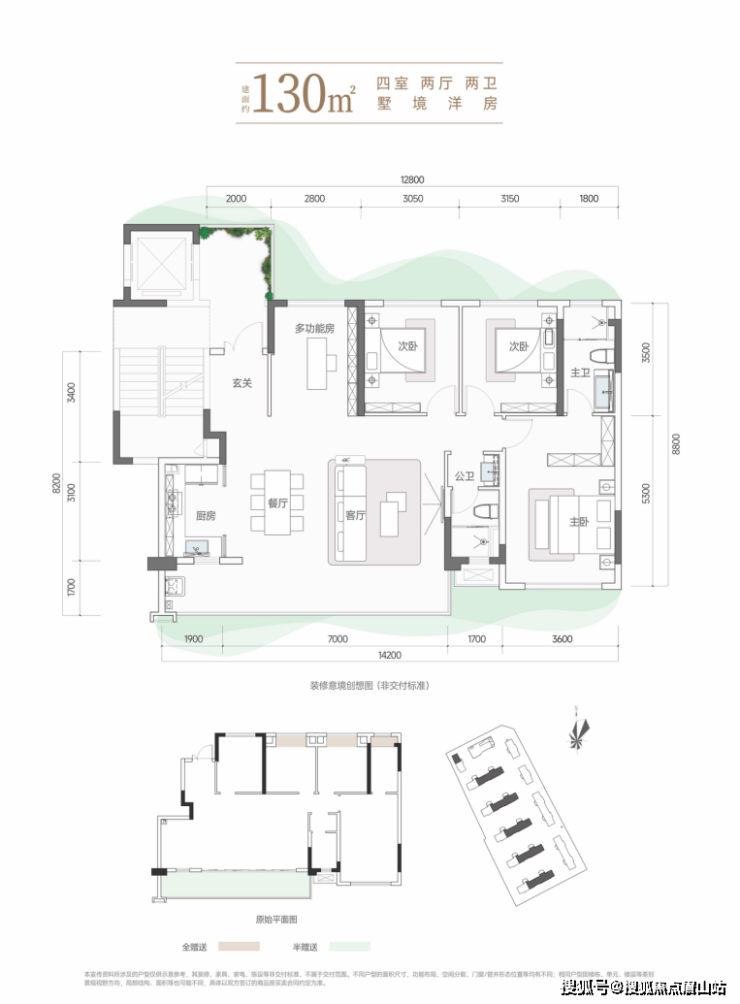
【产品面积】118㎡(1#)、130㎡(9.10#)、143㎡(9.10#),【装修情况】首批次清水,【层高】7-11层,【梯户比】1T2

明信·四季东安项目,容积率仅1.5,区域惟此纯粹低密,打造成都首座EOD公园洋房。 采用三面公园环抱式布局,将公园景观引入社区规划,真正实现住在公园里。更为业主打开一扇私享公园的大门,呈现双钥匙归家,公园即是社区,社区即是公园的居家环境。
洋房效果图
【户型鉴赏】



【教育配套】多龄学府林立
3大名校体系:东安湖学校(成都七中领办)、成都实验小学(和雅校区)、成都实验小学(乐雅校区)。5大优质学府:龙泉第七中学、驿马河第一幼儿园、常春藤龙都国际幼儿园、龙泉驿区第二小学、龙泉二中等,享一站式全龄优教。
(本资料对项目周边规划学校等教育资源旨在提供相关信息,并不意味着本公司对就学安排作出承诺,教育资源的名称、办学性质、办学规模、学位设置、开学(班)时间、招生条件、收费标准及招生区域等存在调整的可能,就学招生政策应以教育主管部门及学校颁布的政策规定为准。)
【医疗配套】国际化医疗护航
四川大学华西医院龙泉医院、龙泉妇幼保健院,以优质医疗配置,呵护您和家人的健康生活
【路线交通】多维路网交织
5纵4横2轨多维立体交通
2轨:地铁2号线、地铁13号线(规划中);
5纵:蜀都大道、桃都大道中段、董朗路、桃源街、双龙路等;
4横:湖岸南路、桃都大道、红岭路、龙都路(5环路)。
【商圈配套】多元商圈环伺
4大商圈集群:万达广场、永辉超市;东方华大广场;龙湖东安天街、吾悦广场等。
免责声明:
以上内容仅作为邀约邀请,涉及的图片为部分区域实拍图和美学畅想图,具体内容请以现场公示和合同约定为准;本文部分资料、部分图片来源于网络,如有侵权请联系我们删除。
声明:本文由入驻焦点开放平台的作者撰写,除焦点官方账号外,观点仅代表作者本人,不代表焦点立场。
