成都新盘【华润阅天府】房价-优惠|交通|学校|配套详情-销售部电话
扫描到手机,新闻随时看
扫一扫,用手机看文章
更加方便分享给朋友
华润阅天府【营销中心】:028-84385818(预约看房)
【置业顾问】:18613205563(微信同步)
温馨提示:专业一对一热情服务,为了节约您的等待时间,看房请提前致电预约!!!
四川住宅新规落地!
要求:
住区应保障义务教育资源的衔接,15分钟生活圈范围内应有初中,5-10 分钟生活圈范围内应有小学、幼儿园的教育设施配置。
住区 15分钟生活圈内应至少有1处社区级医疗机构,宜靠近大型医院。
宜尽新建住区配套公共绿地,应可能临近公园、广场、绿地等区域,实现居民出行300m见绿、500 m见园。
住区用地容积率不应大于 3.0,不宜大于 2.8。
与此同时,住区建筑高度应与消防救援能力相匹配,城镇新建住宅高度不应大于 80m,县城新建住宅最高不宜超过18层。
住宅层高不应低于 3.00m,设有中央空调和集中新风系统或地暖的住宅,层高不宜低于 3.10m。
每套住宅应至少有一个居住空间能获得冬季日照,套型内居室数量不少于4个时,宜有不少于2个居住空间满足日照标准的要求。
开发商:华润&华发, 占地:143亩, 绿化率:35%, 容积率:2.5, 产权年限:70年, 总户数:694,物业公司:华润,物业费:4.5元,车位:1:2.3,装修情况:精装,付款方式:按揭3成,一次性
【区 位】世界配套 资源中⼼都会中央 万亩公园 繁华与⾃然同频
以阅天府为中心,高能资源圈全维覆盖
【品 牌】华发股份华润置地双匠合著 领阅天府奢想双强国匠再度携手打造成都端厅产品力壹号作品
华发股份——洞察成都高阶需求的奢宅专家专著城市核芯 领衔奢宅标杆珠海最大综合型国有企业华发集团旗下地产开发板块,打造锦江首府、锦江大院、锦江上院、锦江璞园、新川印、锦宸府六大标杆作品
·2023年中国房地产企业操盘榜TOP13·2024年中国房地产百强企业TOP11·2024年1-8月中国房地产企业操盘榜TOP10·2023年华发集团资产总额达 7320亿元
华润置地——锚定成都发展战略的造城专家胜揽造城美名 荣登双冠宝座世界500强华润集团旗下的地产业务旗舰深耕成都22载,造城实力有目共睹
2023年成都房企销售榜榜首·蝉联中国房地产上市公司TOP10·2022年成都住宅房地产销售备案金额TOP1·商业地产TOP100榜单TOP1
天赋生态,公园一线环拥咫尺紧邻约3450亩天府公园一线俯瞰约4500亩鹿溪河生态区坐观城市级中央生态绿廊
国际商圈,坐拥万象繁华[招商花园城]直线距离约0.6KM[天府大悦城]直线距离约2.3KM
超级枢纽,无缝接轨全域地铁地铁1/6/18/19号线二期已开通 秦皇寺站距阅天府约430米红莲寺TOD/秦皇寺TOD 城市候机楼(在建中)、26号线(远期规划中)地铁26号线规划中源于:《成都市城市轨道交通线网规划(修编)及第四期建设规划》
高质教育,助梦锦绣未来天府新区C学区的三大教育用地距项目约100米更有天府新区第七小学/中学天府新区第八小学/中学 元音小学/中学天府新区麓湖小学等优质教育资源环伺
四大三甲护航 健康近在咫尺四川华西天府医院(三甲综合医院)万达匹兹堡国际医院(三甲综合医院)华西牙科总部(三甲口腔专科医院)(在建中)天府新区妇女儿童医院(三甲妇幼)(规划中)
多元资源集萃,家门口的艺术殿堂广汇雪莲堂美术馆、四川名人馆(在建中)四川省博物院新馆(规划中)金熊猫大剧院(规划中)
秦皇寺CBD正席 惟此百亩纯居天府总部商务区核芯⾼阶居住圈醇熟配套已兑现,所⻅即享繁华⽣活
【项 目】——阅天府——新⼀代端厅领阅者华发股份与华润置地,落子天府黄金奢心,打造约143亩天西迭新大作,力邀六大国际大师团队操刀,以前所未见的迭创“全景舱”设计,筑写可穿越市场周期的作品,启序天府全新奢阶生活。
【项目亮点】🔮【六大定制场景 迭新儫宅生活新标准】1、舒适场景天府新区新规后⼀号作品
天西在售改高项目中最低2.4容积率
最大约阔尺99米楼间距
近100%高实得率
敞篷版全景舱,被誉为“双端之父”
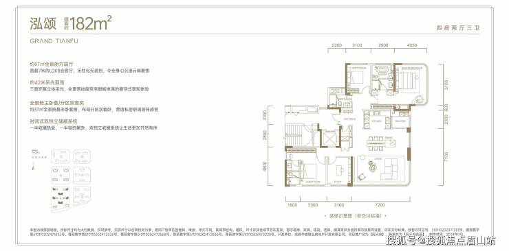
约67-90㎡LDK社交会客厅
注:会客厅面积为173m/182m/230m²户型;2.4容积率为项目143亩整体容积率
2、奢华场景史诗级规划定制
天西高阶立面,玻璃、铝板、铝板一体板打造
奢适7000元/㎡臻装(含加载)
约450米蓝花楹中轴大道
约60亩公共空间(地块红线外)
奢定酒店式臻装公区
3、艺术场景六⼤国际⼤师审美赋新
gad杰地设计、LANDAU朗道国际设计、JTL(新加坡)规划与景观设计事务所、于舍设计 (Yu Studio)、近境制作、Z-WORK真工设计六大国际大师团队操刀,引入国际前沿设计理念,雕琢可穿越市场周期的天西高阶迭新大作
艺术颜值立面,都会儫宅标杆
艺术定制匠材,拉满高级质感
艺术美学公区,凝练奢雅氛围
4、度假场景定制私域度假⽣活
CBD极核超百亩纯居场域
双会所配置,近万方三重会所体系
一纵三横定制化场景街区
全景定制6大主题景观
九重酒店式归家仪式
5、智慧场景科技赋能 全维迭新
数字科技智慧社区,领阅前沿生活方式
智能安全防护体系,时刻安心守护
华为HarmonyOS全屋智能体系,焕新居住体验(以实际选择及交付标准为准)
6、服务场景城市顶奢物业配套 极享峯层服务华润万象生活物业中国领先的物业管理及商业运营服务商
百余项匠心基础服务
高奢定制管家式服务
17大会所体系场景
注:管家式服务、预约制服务收费“以市场收费为标准”,运营时间以后期通知为准。
🥂【阅CLUB】镌刻层峯领域 尽释⻔第奢享阅天府以“阅赏世界,洞⻅⾃我,奢享⽣活”为理念,为业主量身定制[阅CLUB]⾼端圈层,以私宴厅、恒温泳池、瑜伽会馆等空间为载体,围绕三大板块,聚合多元⾼阶资源,开启尊享奢阶⽣活之旅。
奢享权益 天府独阅阅天府业主尊享服务体系 以业主为核⼼,营造专属奢定社交场域 让业主提前享受“阅天府式”奢享⽣活。私宴厅、瑜伽会馆、每周末奢定下午茶可提前预约,(详细服务细则请咨询专属客服)。
【迭代产品】迭创双全景舱 盛放极致奢感三⼤标准 标⽴时代奢宅视野性/ 无视野,不端厅极佳地标观距:距396地标约1700米,489地标约2300米端厅视距最小约62米,最大约92米兼顾奢居视野与尊崇感
纯居性 / 百亩纯居领地,定制场域大盘约143亩大盘一体化定制相当于13个标准足球场内享约450米中轴花园街区+六大主题景观园林
私密性/ 恰好的距离,进享繁华、退握静谧酒店式精装双入户大堂,专属归家动线,邻里不打扰两梯两户,独立入户前厅为归家提供充足缓冲,自由实用更私密
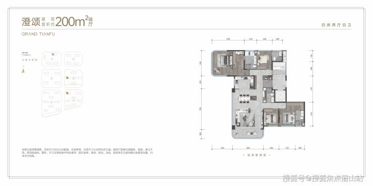
【产 品】天西旗舰迭代全景舱建面约182-252㎡领阅天际观邸
——建面约182㎡迭代双端全景舱
——建面约200㎡爆款迭代四房
——建面约230㎡迭代双端全景舱
——建面约252㎡迭代双端全景舱
🏙【示范区鉴赏】
🛋【户型鉴赏】
华润阅天府【营销中心】:028-84385818(预约看房)
【置业顾问】:18613205563(微信同步)
温馨提示:专业一对一热情服务,为了节约您的等待时间,看房请提前致电预约!!!
免责声明:
以上内容仅作为邀约邀请,涉及的图片为部分区域实拍图和美学畅想图,具体内容请以现场公示和合同约定为准;本文部分资料、部分图片来源于网络,如有侵权请联系我们删除。
声明:本文由入驻焦点开放平台的作者撰写,除焦点官方账号外,观点仅代表作者本人,不代表焦点立场。
