【北湖揽樾】最新房价-预约热线-在售户型|价格-营销中心
扫描到手机,新闻随时看
扫一扫,用手机看文章
更加方便分享给朋友
北湖揽樾【营销中心】:028-84385818(预约看房)
【置业顾问】:18613205563(微信同步)
温馨提示:专业一对一热情服务,为了节约您的等待时间,看房请提前致电预约!!!
你敢信?成都5年人口暴涨了近500万!
2025年,一组成都统计局发布的数据引发了热烈讨论:
2024年成都常住人口约为2147.4万人,比2019年的1658.1,飙升了490万人,增幅高达30%;城镇化率80.8%,首次突破80%大关。
更震撼的是,当北京、上海、重庆因主动控规模或区域调整出现人口负增长(北京减1.8万、上海减13.1万、重庆减21.9万)时,成都却逆势抢人。
这不仅是2000万级城市中的独一份,更标志着成都正从西南中心向全国人口第三城发起冲刺。
【项目概况】开发商:华侨城和中铁建双央企联合打造,项目产品:洋房+叠拼,总户数:1102户,梯户比:洋房、叠拼1梯2户,大平层1梯1户,项目占地:136亩,拿地时间:2021年9月,交房时间:2024年6月,容积率:1.52,绿地率:31.5%,停车位:1449,物业费:洋房3元/㎡,叠拼4.5元/㎡,物业公司:中铁建物业,装修标准:洋房2000元/㎡,叠拼和大平层清水交付,楼层:洋房8层,叠拼3层(第3层是大平层),层高:洋房2.95米,叠拼3.2米(负一楼层高5.1米,面积78平),朝向:主要是南北朝向,楼间距:26-29米,叠拼一楼花园面积:33-200平
【核心卖点】
1.?双央企华侨城与中铁建强强联合,造城专家和豪宅专家重新定义居住品质
2.?主城区被北湖公园环绕,享受家就在公园里惬意生活环境,下楼方可到达湖泊
3.?主城三环稀缺8层105~136平真洋房
4.?独有三层叠拼打造极致尊崇感
5.?千亩湖居、国际熊猫基地双IP,将是向世界展示的窗口

【区域背景】全市首批启动建设的25个未来公园社区之一,北湖未来公园社区预计将于两年内完成生态景观打造,三年内首期全面建成投运。◇ 生态本底:北湖未来公园社区位于环城生态公园最大绿楔区域,总面积556公顷,该片区伴山伴湖半城林,规划绿地面积298公顷,建成后人均可享受绿地面积45.6平方米,是国家最高标准的3.8倍。◇ 产业优势:北湖未来公园社区突出大熊猫和北湖生态双IP,将文创会展、国际度假和国际商务作为主导产业,着力塑造产城融合、职住平衡、功能集成、场景互动的产业型未来公园社区。◇ 开发空间:北湖还有大量可开发用地和场景承载。据悉,该片区土地储备充足,征地拆迁基本完成,可开发建设用地206公顷,具备打造未来公园社区的承载空间。◇ 交通牵引:北湖三横两纵三轨的交通配套已趋近全面成熟。根据成华区深入实施“中环牵引、纵横联动、组团优强”发展策略,三环路、蜀龙大道、成华大道、成安渝高速等几条横纵交错的主干道,合力形成的综合交通枢纽。
【开发商背景】成都华侨城和中国铁建地产两大实力央企引领居住革新。华侨城集团37载发展至今,积极践行文旅融合、新型城镇化、乡村振兴等国家战略。不断以文化央企的高瞻远瞩,创造其独特的美好生活方式,实现其“创想开启美好生活“的品牌愿景。中国铁建地产,组建于2007年3月,隶属于世界500强企业——中国铁建股份有限公司,以“建造关爱人与自然的建筑艺术品“为品牌主张,不断创著品质卓然的匠心人居。近年来日益完备的产品体系和匠心品质,同样为之赢得了誉满全国的优良口碑。
【区域配套】交通:紧邻龙青路,熊猫大道等主干道,交通便捷;距地铁8号线二期(已获批)北湖东站约1.2公里,32号线(规划)鸭子池站约0.8公里。随着多条地铁线路的规划实施,以及环北湖交通网的打造通车(已完工未通车),区域交通将得到进一步提升。景观:西侧,东侧,北侧为北湖湿地公园湖面及长3.3km的环湖绿道(以慢行交通为主,兼具生态、休闲、体育、文化等功能) ,距熊猫体育公园约500m。商业:临靠上古天地商圈,距星悦广场1.8km,距中国铁建北湖国际城商业街区约1.3km。医院:距离成都市成华区第七人民医院约1.9km。教育:项目南侧目前有配套中学在建,规划小学及幼儿园,区域内有龙潭小学,石室中学北湖校区、成都理工大学等配套。
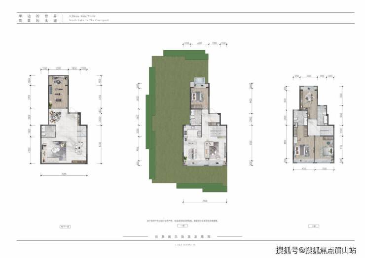
户型鉴赏:
北湖揽樾【营销中心】:028-84385818(预约看房)
【置业顾问】:18613205563(微信同步)
温馨提示:专业一对一热情服务,为了节约您的等待时间,看房请提前致电预约!!!
免责声明:
以上内容仅作为邀约邀请,涉及的图片为部分区域实拍图和美学畅想图,具体内容请以现场公示和合同约定为准;本文部分资料、部分图片来源于网络,如有侵权请联系我们删除。
声明:本文由入驻焦点开放平台的作者撰写,除焦点官方账号外,观点仅代表作者本人,不代表焦点立场。
