成都隆科熙悦怎么样丨隆科熙悦值得买吗现房销售丨项目情况丨户型图-未来发展-小区解售楼热线

搜狐焦点眉山站 2025-10-01 16:14:00
用手机看
扫描到手机,新闻随时看

扫一扫,用手机看文章
更加方便分享给朋友

中学:温江中学、温江二中、成都实验外国语学校、七中冠城学校、绵阳东辰、七中菁才(未建成)【看房有车接送服务,请致电预约】【售楼部电话】:4001816261(预约看房)【销售经理】:15002828880(微…

【售楼部/处电话】:4001816261 【已认证】

【销售经理】:15002828880(微信同步)

4001816261

成都出台房产新政,取消限售、降低公积金首付

2025年7月21日,成都市多部门联合发布《关于促进房地产市场平稳健康发展若干措施》。 核心措施包括分批取消住房限售,规定2024年10月中旬前购买的商品住房取得产权证即可交易; 降低公积金购房门槛,购买二套房的首付比例由30%降至20%;并优化贷款额度计算方式。同时,政策支持提取公积金用于住宅老旧电梯更新,并推动不同区域差异化发展,旨在全面激活市场合理需求,促进房地产平稳健康发展

【C位之芯再赋新,大城配套再升级】

立体交通路网

三横三纵三地铁:快速串联全城,延伸城市生活空间

三横:成温邛高速、光华大道、花都大道

三纵:绕城高速、南熏大道、凤溪大道

三地铁:地铁17号线(市五医院站1.8KM)、地铁4号线(南熏大道站1.5KM)、地铁远期规划28号线(长安桥西站)

优质教育资源

名校荟萃,嫡传城芯人文气息

幼儿园:公平街办安居幼儿园、公平星星幼儿园、爱仁堡幼儿园、温江实验幼儿园

小学:温江区东大街第二小学(根据2023年区域划片合江路合江社区均为东二划片范围)、温江区东大街第一小学、东二长安路校区,成实小

中学:温江中学、温江二中、成都实验外国语学校、七中冠城学校、绵阳东辰、七中菁才(未建成)

大学:西南财经大学、成都中医药大学、四川农业大学、成都师范学院、成都交通职业技术学院、成都农业科技职业学院

C户型——建筑面积约89㎡

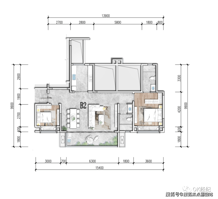
B2户型-建筑面积113㎡

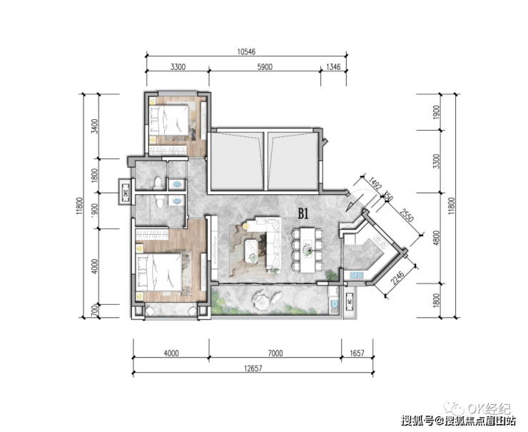
B1户型—建筑面积约113㎡

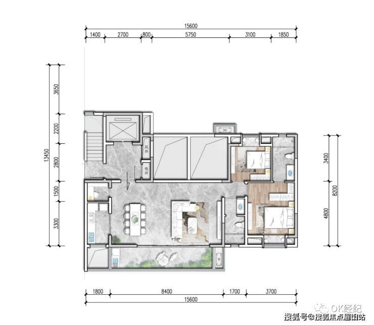
A户型—建筑面积约125㎡

温馨提示:为了给您提供更高更好的接待服务质量,看房请提前致电售楼部预约!

【看房有车接送服务,请致电预约】

【售楼部电话】:4001816261(预约看房)

【销售经理】:15002828880(微信同步)

温馨提示:专业一对一热情服务,为了节约您的等待时间,看房请提前致电预约!!!

声明:本文由入驻焦点开放平台的作者撰写,除焦点官方账号外,观点仅代表作者本人,不代表焦点立场。