成都尊邸楼盘详情 尊邸售楼中心 资深顾问揭秘现房销售丨-交通-优劣势-位置-未来发展-小区解售楼热线丨项目情况丨户型图
扫描到手机,新闻随时看
扫一扫,用手机看文章
更加方便分享给朋友
4001816261
1. 成都出台房产新政(2025年7月21日):成都市住房和城乡建设局等6部门联合发布《关于促进房地产市场平稳健康发展若干措施的通知》,推出17条具体措施。核心包括:
o 分批取消住房限售:规定2024年10月14日前购买的商品住房,取得《不动产权证书》后即可上市交易;2026年1月1日起,此前取得产证仍处于限售期的二手住房取消转让限制(特殊限售要求的楼盘除外)。
o 降低公积金购房门槛:购买第二套住房的公积金贷款最低首付款比例由30%降至20%。同时优化贷款额度计算公式,拟按缴存余额的25倍计算,以提高可贷额度。
o 扩大公积金使用范围:支持职工提取住房公积金用于住宅小区老旧电梯的更新(个人支付部分)。
o 区域发展策略:政策强调提升住房供应质量和区域均衡发展。例如,推动龙泉驿、新都、温江等区围绕轨道场站发展高品质住房;推动青白江、简阳等市县完善配套提升品质。
本次现房推售范围
推售楼栋:5号楼、6号楼
产品类型:高层、顶跃
装修情况:清水
交房时间:2022年6月30日至7月4日
占地面积:18.85亩
容积率:4.0
车位比:1:1.625
层高:3米
产权年限:70年
梯户比: 2梯4户
总高: 27层
物业费:3.6元/平/月
(成都时代物业管理有限公司)
公摊:20%
绿地率:30%
✅5号楼 【平层+顶跃】共计104套,其中平层100套,顶跃4套,层高3米,2梯4户,共28层,平层套三双卫户型101、112平米;顶跃4套,150m²、151m²;
商业配套1.凯德天府(约800M)高新区地标建筑
2.泛悦MALL(约600M)
3.王府井(科华店)约1500M
4.苏宁广场(约1500M)
学校按2022年入学划片(信息取自天府市民云)小学:成都市科华中路小学
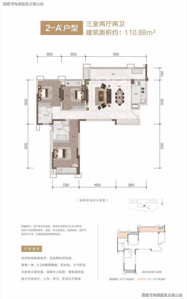
户型图赏析
【101.31m²,套三双卫】
【110.88m²,套三双卫】
【112.15m²,套三双卫】
实景现房赏析
区域位置图
声明:本文由入驻焦点开放平台的作者撰写,除焦点官方账号外,观点仅代表作者本人,不代表焦点立场。
