武侯瑞府售楼处联系方式-售楼处中心网站-2025最新房价、户型图、小区环境、配套
扫描到手机,新闻随时看
扫一扫,用手机看文章
更加方便分享给朋友
武侯瑞府【营销中心】:028-84385818(预约看房)
【置业顾问】:18613205563(微信同步)
温馨提示:专业一对一热情服务,为了节约您的等待时间,看房请提前致电预约!!!
这两天,网传成都某壳二手房的中介费将于这个月作出调整:
由现在的卖方1.75%,买方1.25%,调整到卖方3%,买方0。具体还要等公司正式文件。
但目前还没普及下来,北京、上海、广州等地在试运行阶段,成都可能等一段时间。同时,关于卖房3%这一点,还需要业主做出选择。
换句话说,只要业主同意,的确有机会实现卖方3%,买房0中介费的新规定!
如果真能普及,对于买方来说,的确是不错的利好,按照现行规定,即便是100万的房子,买方也要出1.25万的中介费!
【项目基本详情】本次主推1号地块:玺院,物业类别: 叠拼别墅、合院(‼都是清水交付哦‼),产权年限: 70年,开 发 商: 成都中金澍茂置业有限公司,总 户 数:260户,楼栋总数: 19,梯 户比:1T1(独立电梯入户)/1T2户(6叠的,中上叠共用),交房时间:2024年3月底
在售面积:中叠:售罄,合院:220-250平(1200-2000万),花园40-260不等,260平花园-1518万;样板间2000万;上叠:售罄,下叠:207-260平(670-1000万),花园30-160平不等
总价:670-2000万,层高:一楼3.5米,其他楼层3.3米,地下室5.7米,环线位置:三环-绕城,占地面积: 63亩,容积率:1.09,绿 化 率: 30%,车位比:1:2.4,物业公司: 中粮地产集团深圳物业管理有限公司成都分公司,物 业 费: 5.2元/㎡交通:3号线双凤桥站直线距离约1005米3/9号线武青南路站直线距离约1242米
【项目总平图】

【传世孤品 天地合院】

独门独院,悠闲自赏,照见一方天地自然
独立电梯串连六重空间,随心即达各生活场域
奢阔主卧尊崇而居,全景阳台处处清闲
打造成为影音室、健身房、会客厅....游刃有余收藏全家志趣
花园里的会客厅,在自然中畅聊,欢笑与风景相融
【户型鉴赏】

[独立天地院子]
独门独院,悠闲自赏,照见一方天地自然
[奢华私家电梯厅]
独立电梯串连六重空间,随心即达各生活场域
[主卧总统套房]
奢阔主卧尊崇而居,全景阳台处处清闲
[负一层空间]
打造成为影音室、健身房、会客厅....游刃有余收藏全家志趣
[屋顶会客厅]
花园里的会客厅,在自然中畅聊,欢笑与风景相融

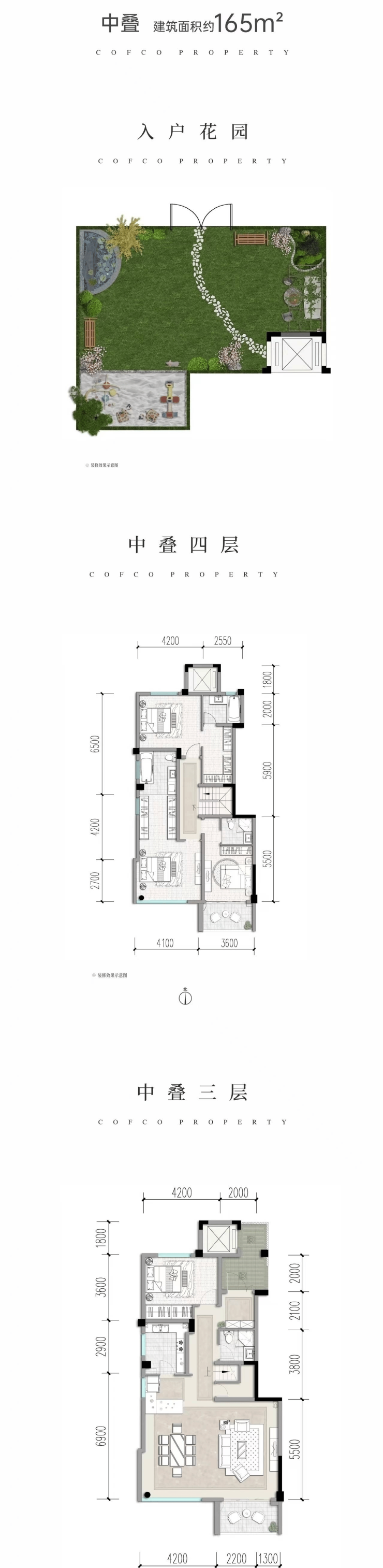
[独立花园入户]
中粮瑞府匠心著造,实现独特居住创想,让中叠也拥有院子
[奢华私家电梯厅]
独立电梯设计,一步即达归家,尽享私密与尊崇
[宽约7.7M阔尺横厅]
光影随处流淌,客厅连接露台,直迎风景入怀
[全套房设计]
独立安静休憩空间,盛载每一寸悠然时光



武侯瑞府【营销中心】:028-84385818(预约看房)
【置业顾问】:18613205563(微信同步)
温馨提示:专业一对一热情服务,为了节约您的等待时间,看房请提前致电预约!!!
免责声明:
以上内容仅作为邀约邀请,涉及的图片为部分区域实拍图和美学畅想图,具体内容请以现场公示和合同约定为准;本文部分资料、部分图片来源于网络,如有侵权请联系我们删除。
声明:本文由入驻焦点开放平台的作者撰写,除焦点官方账号外,观点仅代表作者本人,不代表焦点立场。
