「万达1号」价值盘点-在售产品-最新优惠政策-万达1号价格
扫描到手机,新闻随时看
扫一扫,用手机看文章
更加方便分享给朋友
万达1号【营销中心】:028-84385818(预约看房)
【置业顾问】:18613205563(微信同步)
温馨提示:专业一对一热情服务,为了节约您的等待时间,看房请提前致电预约!!!
2025年的成都楼市,已经分化到了极致。
首先是新房和二手房之间的分化,目前新房和二手房成交比例大致是1:2.5,随着供地的减少以及总价的提升,新房的规模还会锐减。
未来的新房,与绝大多数人没有关系。
未来的新房,贵并且也是受欢迎的。
自从新房市场产品迭代之后,和二手房市场实现了价格分层,但到现在,这种价格区分越来越夸张。
然后是新房和新房之间的分化。
同一个地段,一街之隔,相同配套,迭代新房卖3.6万/㎡,未迭代新房2.7万/㎡,差价9千/㎡,10年左右的二手小区则只能卖1.8万/㎡,价差50%!
二手房无限贬值,迭代新房无限哄抢。
‖产品信息‖
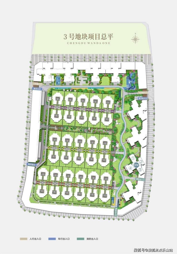
·楼栋号:3#地块37号楼(90亩)
·建筑面积:约132-155-214㎡
总价:231-610万
·梯户比/楼层:3T4户/37F
·住宅产权:70年
·交付标准:清水
交房时间:26年12月
‖核心卖点‖
【品牌优势】全球最大不动产运营企业,实力保障居住品质。
【区位优势】位于天府新区中央商务区核心地段。与蔚蓝卡地亚、麓湖生态城共组天府新区核心金三角,为天府新区三大门户标杆级楼盘之一。
【环境优势】占地3450亩天府中央公园与项目融为一体,是成都乃至西南区最大的城市公园。
【健康优势】引入成都万达UPMC国际医院,紧邻华西天府医院(已开业)、四川省第二人民医院天府分院(肿瘤诊疗中心)、省妇幼保健院天府院区、以及规划中的华西牙科医院、华西康复医院等。
【配套优势】五纵五横立体交通路网,轨道交通覆盖8轨18站,直达成都双机场;临近天府大悦城、天府国际会议中心、广汇雪莲堂艺术馆、省图书馆鹿溪智谷分馆;隶属天新C学区,紧邻元音小学、中学。



万达1号【营销中心】:028-84385818(预约看房)
【置业顾问】:18613205563(微信同步)
温馨提示:专业一对一热情服务,为了节约您的等待时间,看房请提前致电预约!!!
免责声明:
以上内容仅作为邀约邀请,涉及的图片为部分区域实拍图和美学畅想图,具体内容请以现场公示和合同约定为准;本文部分资料、部分图片来源于网络,如有侵权请联系我们删除。
声明:本文由入驻焦点开放平台的作者撰写,除焦点官方账号外,观点仅代表作者本人,不代表焦点立场。
