成都新盘【电建国宾华曦府】房价-优惠|交通|学校|配套详情-销售部电话
扫描到手机,新闻随时看
扫一扫,用手机看文章
更加方便分享给朋友
电建国宾华曦府【营销中心】:028-84385818(预约看房)
【置业顾问】:18613205563(微信同步)
温馨提示:专业一对一热情服务,为了节约您的等待时间,看房请提前致电预约!!!
四川住宅新规落地!
要求:
住区应保障义务教育资源的衔接,15分钟生活圈范围内应有初中,5-10 分钟生活圈范围内应有小学、幼儿园的教育设施配置。
住区 15分钟生活圈内应至少有1处社区级医疗机构,宜靠近大型医院。
宜尽新建住区配套公共绿地,应可能临近公园、广场、绿地等区域,实现居民出行300m见绿、500 m见园。
住区用地容积率不应大于 3.0,不宜大于 2.8。
与此同时,住区建筑高度应与消防救援能力相匹配,城镇新建住宅高度不应大于 80m,县城新建住宅最高不宜超过18层。
住宅层高不应低于 3.00m,设有中央空调和集中新风系统或地暖的住宅,层高不宜低于 3.10m。
每套住宅应至少有一个居住空间能获得冬季日照,套型内居室数量不少于4个时,宜有不少于2个居住空间满足日照标准的要求。
启幕国宾高品改善新篇章
国宾华曦府占地92亩,容积率2.0。区域内少有的地块规模、更低的容积率,是中国电建地产对极致产品主义的追求,成就极致场景下的封面作品。
品牌实力
中国电力建设集团| 千亿央企 世界百强
中国电力建设集团是国务院国资委直接管理的中央企业。2023年,中国电建位居《财富》世界500强企业第105位、中国企业500强第31位,NER(中文译名为《工程新闻记录》,它是全球工程建设领域的权威学术杂志)全球工程设计公司150强第一名、全球工程承包商250强第6名;;是全球规模最大、产业链最完整的电力建设集团。
中国电建地产| 系出央企·源自电建 电建地产集团是国务院国资委核定的首批16家主营房地产开发与经营业务的中央企业之一,历经19年的发展,现已成为2023年度中国房地产百强企业第21名。落子全国32座城市,打造运营150多个项目。
区位价值——“产城人”一体发展 金牛当仁不让 回归主城
金牛区作为是成都发展最早的核心城区和经济大区,经济繁荣, 2023年GDP突破1600亿元,经济总量连续34年五城区第一,是全国百强区县,成都市五城区中经济最活跃的城区。
板块价值——金牛未来唯有国宾
1957年,金牛宾馆落位金牛区西三环外,定位为四川省委、省政府政务接待基地和会议服务中心,国宾板块因此得名。2000年,金牛高新技术产业区成立,是成都主城区唯一省级高新技术产业园区;同时于2001年,邻国宾板块的成都市高新西区正式成立,相继落户了英特尔、京东方、德州仪器等国际知名高新技术企业,区域早期由此形成了成都高新技术产业集群。
板块发展——国宾高科新城国宾高科城片区内有成都中心城区中唯一的省级高新技术产业园区—金牛高新技术产业园区,西侧紧邻高新西区高新技术产业园区,是成都电子信息产业核心区和引领区,是成都高新技术产业规模最大、龙头企业最集中的区域之一。

项目深谙成都人物对奢质生活方式的追求,对标奢华酒店丰富多元的场景设计,为业主创造更有品位的生活。从菁英需求出发,打造高定酒店归家仪式、高定酒店圈层会所、高定酒店艺术园境等,延伸家庭场景的生活领地,让业主在家门口就可拥有酒店式的居住体验。
每一座城市都有属于自己的建筑时代,而每一座华曦府,都无疑成为城市无可复制的经典。相同的建筑形式千篇一律,灵动的外立面万里挑一。国宾华曦府首先在颜值上,极具辨识度及品质感。建筑立面取意“高山流水”设计理念,融合现代审美,打造弧形质感艺术立面提升美学气质。
项目效果图
也许是听见了城西买房人心里对进阶改善产品的持续渴求,中国电建地产又一次,在城西的风向之上重塑了区域改善居所的标杆范本。国宾华曦府以76.5米城市疆域大门、意大利进口绿奢石景墙、宝格丽元素玻璃等奢尚规格,以国际潮流设计理念为业主营造尊崇至极的归家礼仪。此次,国宾华曦府以建筑美学重构当代审美,融汇现代建筑灵感,打造时代人居臻品,必将引领国宾改善封面。
一、项目概述
【项目占地】约92亩
【容积率】约2.0
【绿化率】约35%
【项目规划】规划19栋建筑
【房源套数】945户
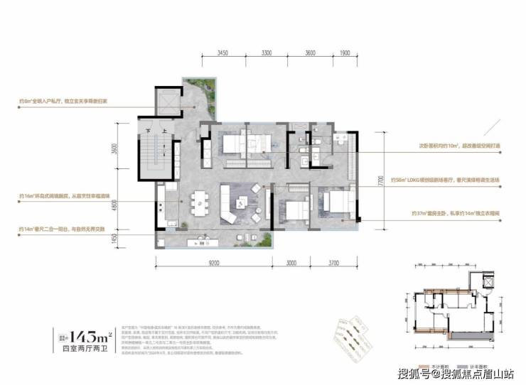
【产品面积】建面约110㎡—143㎡
在售情况:1#:110平,1T2户 (已售罄)
14#:110平,1T2户(在售)
12#:130平,2T2户(在售)
16#:143平,2T2户(已售罄)
19#:143平,2T2户 装修标准:3299元/平 预计单价:2.5万/平起 预计交房时间:2026年9月
电建国宾华曦府【营销中心】:028-84385818(预约看房)
【置业顾问】:18613205563(微信同步)
温馨提示:专业一对一热情服务,为了节约您的等待时间,看房请提前致电预约!!!
免责声明:
以上内容仅作为邀约邀请,涉及的图片为部分区域实拍图和美学畅想图,具体内容请以现场公示和合同约定为准;本文部分资料、部分图片来源于网络,如有侵权请联系我们删除。
声明:本文由入驻焦点开放平台的作者撰写,除焦点官方账号外,观点仅代表作者本人,不代表焦点立场。
