成都天府半岛楼盘详情_天府半岛房价生活圈配套碾压周边:团购优惠-售楼部电话-户型图-房价格最新消息今天-周边配套-交通。
扫描到手机,新闻随时看
扫一扫,用手机看文章
更加方便分享给朋友
4001816261
国家层面推动城市高质量发展(2025年8月28日):《中共中央 国务院关于推动城市高质量发展的意见》公布,强调要加快构建房地产发展新模式,更好满足群众刚性和多样化改善性住房需求。意见要求:
o 系统推进"好房子"和完整社区建设:全链条提升住房设计、建造、维护、服务水平,大力推进安全、舒适、绿色、智慧的"好房子"建设。
天府半岛已被“国资”收购。资料显示,2021年10月31日,之前恒大天府半岛的开发公司——成都心怡房地产开发有限公司,向中国对外经济贸易信托有限公司(以下简称:中国外贸信托)转让100%股份。
而接盘方“中国外贸信托”成立于1987年9月30日,注册资本为80亿元,由中化资本有限公司、中化集团财务有限责任公司分别持股约97.26%、2.74%,妥妥的国资背景!
并且,自中国外贸信托接盘后,天府半岛7期已售楼栋已交付部分,整个2023年,项目合计交付了约2160套住宅以及部分商铺,有的还是提前交付,实力毋庸置疑!
天府半岛总共占地约1650亩,分10期打造,1、2期卖完了;3、4、6期部分准现房待售;5期为商业,实地看还是个坑;7期还有3栋住宅没修;8-10期均为为住宅,但尚未开发。
除了7期,最新消息显示,8期、9期、10期也将迎来调规,8期住宅由48层降到32、31、26层,4栋调整为5栋;10期则取消低层住宅,层高由3层、39层、47层、48层调整为25层、31层、32层。
另外,9期规划的小学和幼儿园则与10期合并,并且多出了“洋房”规划。
而按照调规方案大致推算,8-10期,还有约1440套房源,体量相当惊人!
去年11月,8期完成备案,紧接着12月中下旬,9期以及10期幼儿园、小学也在发改委完成了备案。7期都来了,8-10期相信也不远了!
天府半岛目前可以对外销售的,也是现房:3期33#2梯2户的江景大平层,主力户型建面约为235㎡,总价399万起;3期34-37#、4期47-49#的江湾别墅,主力建面约446-642㎡。
33#楼的江景大平层,2梯2户共45层,层高3.15米现房销售,只有一个建面约235㎡户型,合计84套精装房源!
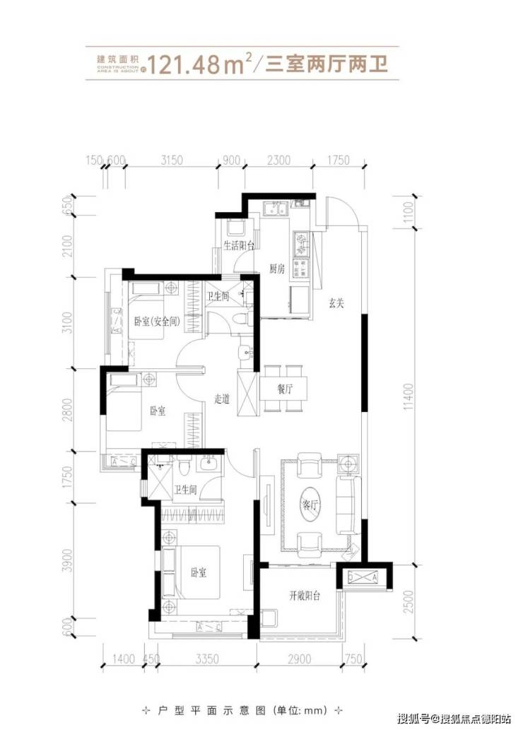
项目即将推出7期77-80#高层产品,建面约121-142㎡,合计496套房源,预计精装价格1.3-1.5w元/㎡起,最快月底就来!
本批次为期房,预计2026年下半年交付!(具体交付时间以售楼部为准哈)
本批次房源为7期最后4栋住宅,产品也有较大升级,居住舒适度更高。总楼层32层,楼栋高度调整为99.6m,同时增加一台电梯,升级为3梯4户!
同时,这四栋住宅取消了底商规划,首层架空公共活动空间有约993㎡,较之前大幅提升。
其次,本批次只有建面约121㎡套三双卫、142㎡套四双卫两个主力户型,更偏向刚改、改善,且相对纯粹!
并且,4栋住宅所有户型的主采光面,均朝西南方向,中高楼层只直接俯瞰府河。
142户型客厅西南,卧室看中庭,实得率90%,套内实得127平。使用空间比较大。户型比121体验好很多。
声明:本文由入驻焦点开放平台的作者撰写,除焦点官方账号外,观点仅代表作者本人,不代表焦点立场。
