成都金地正源荟售楼中心、房源信息、价格、生活圈配套碾压周边:团购优惠-售楼部电话-户型图-房价格最新消息今天-周边配套-交通-优劣势。
扫描到手机,新闻随时看
扫一扫,用手机看文章
更加方便分享给朋友
4001816261

金地·正源荟位于涧槽南街与银河路六段交汇处,出门即享凤栖湖,并连接亚洲最大城市湿地公园——1.5万亩空港中央公园,占据得天独厚的自然优势,生态资源禀赋,享有一线临湖的视野景观。项目自规划之初,便考虑从区域、设计、产品、服务等多方面展示双流人居品质。与金地集团强强联手,聘请世界著名的工程咨询集团林同棪国际为设计项目整体规划,豪宅御用设计单位香港梁黄顾建筑设计公司、上海汇张思建筑设计公司为项目设计。

整体项目规划旨在将世界建筑的经验和本土居住需求完美结合,这或许是正源荟对于建筑艺术和生活需求的极致要求。


正源荟针对不同客群打造建面约110-135㎡湖居美宅、建面约164-177㎡澜屿叠墅,产品类型各有特色,客户选择灵活多样。在生活服务上,正源荟携手中国物业服务质量排行第一的金地智慧服务,以星级服务为标准,为客户提供满意的优质物业服务。
正源荟·艺境的容积率低至1.5,这在双流乃至主城都非常罕见。
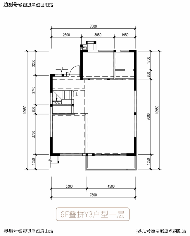
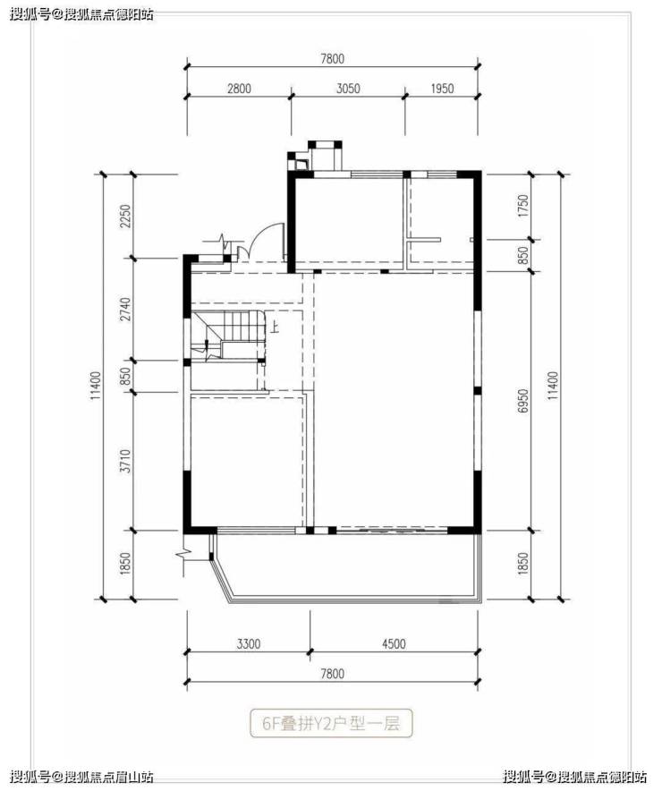
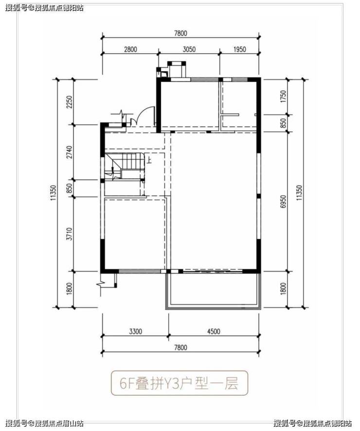
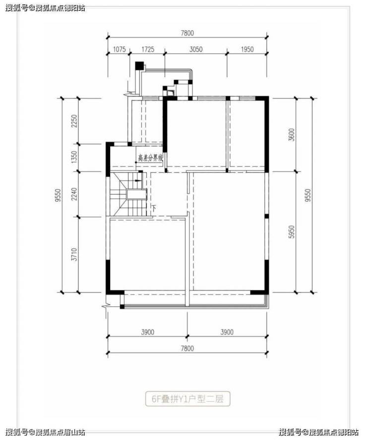
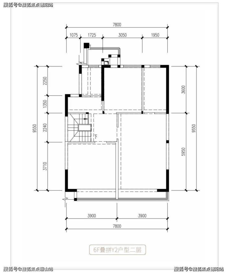
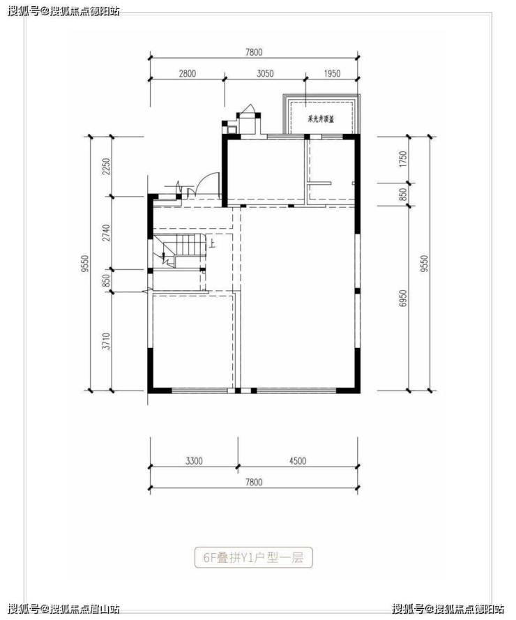
正源荟·艺境针售楼处电话:400-9231-880(预约热线)对不同客群打造建面约110-135㎡瞰湖小高层、建面约172-177㎡澜屿叠墅、艺·墅合院,及首次推出新品建面约164-174㎡澜屿叠墅,在户型分布上,下叠建面约164㎡,中叠建面约165㎡,上叠建面约174㎡,三种户型均为四室两厅三卫。产品类型各有特色,客户选择灵活多样。
下叠
建面约164㎡
四室两厅三卫
在同一区域,居住环境相同的情况下,正源荟减去拥挤嘈杂,进阶纯粹墅居生活。下叠产品拥享独一无二的天地庭院,让庭院既是室内视野的延伸,也是家庭的第二会客厅。
【金地正源荟】售楼处电话:400-9231-880(预约热线)
实景图
在空间上,满足舒适改善生活需求,客餐厅相连,从视觉增加客厅尺度感和开阔感。独立阔尺餐厨空间,美食犒赏,幸福陪伴,周末休闲,可以来一场精心家庭烘焙。
实景图
同时,约5米挑高地下室承载全龄段的家庭休闲功能,后期业主可随心打造私家影院、健身空间、儿童活动区、工作室,或者收藏间、储物间等。自带天地庭院和多功能地下空间的下叠产品更重生活体验,从空间上为业主缔造完美墅居生活。
实景图
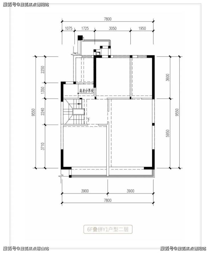
中叠
建面约165㎡
四室两厅三卫
对于高端私宅而言,居住体验是人居生活考量的重中之重。
正因如此,中叠产品配备尊享电梯,地下室与电梯直连入户,充分保障了业主生活的私密度。从生活空间来看,阔绰生活尺度也有了进一步的提升,约7.8米超大开间、约1.85米进深的超大景观阳台赋予了整个空间通透感。
科学配比的阔尺餐客厅,空间利用率增加,竖厅设计延展奢阔视野,带来更优越的风光尺度。
建面约31㎡主卧是整个家中功能最完备,且体验升级的私享空间。正源荟采用套房式设计,步入式衣帽间,产品空间布局合理,在功能性上,远超同类产品,创造独属业主的私人境界。
实景图
次卧可打造为专属儿童房,在空间设计完全满足孩子各项独立需求,同时卧室保证了良好的采光面,每天阳光洒进屋内,对儿童成长发育大有益处。
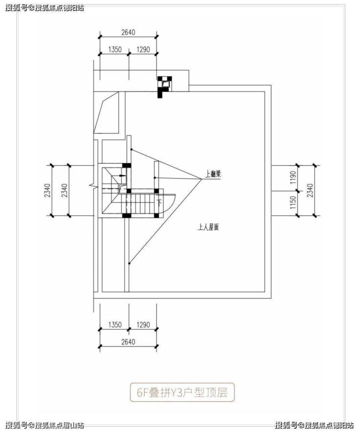
上叠
建面约174㎡
四室两厅三卫
在产品力的进阶上,正源荟强调“生活的舒适状态”,为追求“生活舒适”,在设计之初就会特别关注业主的入住生活体验。
在这一方面,上叠产品尤为亮眼,正源荟打造建面约174㎡上叠产品客餐厨相连,南北通透,开阔大气;向外视线与景观联通,环顾视野收揽城市繁华盛景。

同时户户自带屋顶观景露台,这样的设计在双流是十分少见的,270°的环景视野,多面景观随心打造。在后期功能使用上,可让业主实现了真正意义上的露天花园,阳光、花草、烧烤……让品质生活随心所欲。
声明:本文由入驻焦点开放平台的作者撰写,除焦点官方账号外,观点仅代表作者本人,不代表焦点立场。
