成都人居江岸林语楼盘详情 人居江岸林语售楼中心 资深顾问揭秘现房销售丨-交通-优劣势-位置-未来发展-小区解售楼热线丨项目情况丨户型图
扫描到手机,新闻随时看
扫一扫,用手机看文章
更加方便分享给朋友
4001816261
o 郫都区红光街道地块由正成竞得,溢价率10.87%。
o 新都区新都街道地块由邦泰竞得,溢价率1.85%。
一、基础信息
占地面积:400亩
容积率:2.5
绿化率:30%
交房时间:82亩:2024年底 99亩:2025年10月
物业公司:82亩蜀川物业/99亩万科物业
物业费:2.60元
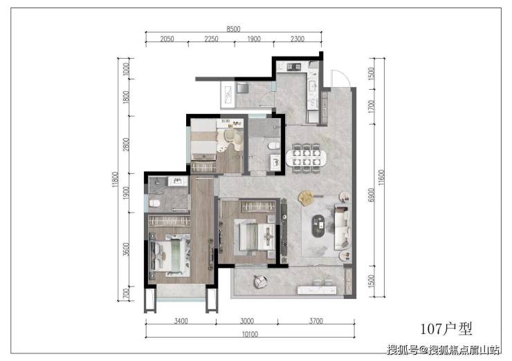
面积:107/128/143/175㎡
梯户比:107㎡,128㎡:2T4户 143㎡:2T2户 175㎡:1T2户
公摊面积:16%-20%
总层高:10层/14层/16层/17层/18层
车位比:1:1.38
82亩地块江沄阁4#、5#、7#
?小高层: 107 ㎡、128 ㎡
✅ 梯户比:2T4
✅ 总层:14层、16层、18层首开82亩地块江浔阁5#
?小洋房:143 ㎡
✅梯户比:2T2
✅总层:13F82亩地块江浔阁7#、8#
?小高层: 107 ㎡、128 ㎡
✅ 梯户比:2T4
✅ 总层:17层、18层
99亩地块江湾阁7#、8#、9#、10#
?小洋房:143 ㎡
✅梯户比:2T2
✅总层:15F、16F
?小洋房:175㎡
✅梯户比:1T2
✅总层:10F
项目位置:项目位于成都市温江区,地处温江区和青羊区交界处,距地铁4号线马厂坝TOD约1.3公里,毗邻青羊新城中心生活圈。
品牌价值:兴城人居坚定服务成都城市战略,业务涵盖城市开发、城市运营、数字地产、民生服务四大板块,布局成都19个区(市)县和上海、广州、西安、明斯克4个国内外城市,储备开发用地6000余亩,承担了片区开发、TOD综合开发、人才公寓、保障房等战略支撑项目,以年均开发500-700万平米、供应住宅150-200万平米、销售170亿元的实力进入成都第一梯队。凭借突出的市场表现和开发能力,多次荣获中国房地产业综合实力100强、中国房地产公司品牌价值TOP10、四川房地产品牌十强、成都楼市“十大名企”、成都企业100强等称号,截至2021年12月底,公司资产规模797亿元,累计开发项目3000余万平方米,综合实力居成都市属国有城市开发企业首位。
区域价值:承青羊,西贵一脉传承,尽享青羊新城中心规划红利,横跨成都“西控、中优”两大发展战略区域,既拥有西控带来的优越生态资源本底,又享受中优完善的交通及生活配套,双区战略规划的门户价值显著。
区域规划热点:本项目所在的红桥未来公园社区作为成都市十四五规划环城生态带未来美好公园社区的首批次示范区,践行“大成”公园城市发展理念,土地价值拉高,改善属性极速提升。
区域配套介绍:交通配套四横:成名高速-日月大道、花都大道、光华大道、光华8线四纵:骑士大道、凤凰大街、土龙路、绕城高速双轨(双TOD):地铁4号线(马厂坝TOD)、地铁28号线(规划-红桥TOD)
教育配套4所幼儿园:金苹果幼稚园、伊顿双语幼儿园、红桥幼儿园、金太阳幼儿园3所小学:江安路小学、花都小学、温江光华实验小学6所中学:光华实验中学、温江中学实验学校、温江中学、成都东辰外国语学校、嘉祥外国语学校、成都七中实验学校
商业配套0公里商圈:前海购物中心3公里TOD、光华商圈:珠江广场、新光天地、天来国际广场、丰隆商业综合体、花沐里广场10公里青羊、双楠商圈:青羊万达、鹏瑞利广场、西单商场、优品道广场、龙湖金楠天街、双楠伊藤
医疗配套前海医疗综合体(在建)、华西温江分院、省八一康复中心、温江区人民医院、第五人民医院、温江中医医院
自然生态环境江安河、八斗渠、江安河公园、碧落湖公园、花悦湾公园、国际非遗博览园
【户型鉴赏】
声明:本文由入驻焦点开放平台的作者撰写,除焦点官方账号外,观点仅代表作者本人,不代表焦点立场。
