【金融街融御】最新房价-预约热线-在售户型|价格-营销中心
扫描到手机,新闻随时看
扫一扫,用手机看文章
更加方便分享给朋友
金融街融御【营销中心】:028-84385818(预约看房)
【置业顾问】:18613205563(微信同步)
温馨提示:专业一对一热情服务,为了节约您的等待时间,看房请提前致电预约!!!
你敢信?成都5年人口暴涨了近500万!
2025年,一组成都统计局发布的数据引发了热烈讨论:
2024年成都常住人口约为2147.4万人,比2019年的1658.1,飙升了490万人,增幅高达30%;城镇化率80.8%,首次突破80%大关。
更震撼的是,当北京、上海、重庆因主动控规模或区域调整出现人口负增长(北京减1.8万、上海减13.1万、重庆减21.9万)时,成都却逆势抢人。
这不仅是2000万级城市中的独一份,更标志着成都正从西南中心向全国人口第三城发起冲刺。
【金融街·融御】173米总府路地标 矗立成都中芯繁华
总府造极建面约149-324㎡6.3米跃层住宅
致敬城市极少数中国·成都·锦江·春熙太古旁

金融街·融御价值:
1、地段价值(主城Zui中心173米超高层纯住宅、稀缺性)2、产品价值(市面上绝对稀缺的6.3米跃层 三通超高层住宅)3、圈层价值(纯粹客群:贵胄圈层、顶级政商高干人群、营销圈、一线城市)成交客户分析:1、50%的外地客户(关联成都、浅居、增值、喜好卖点、足够支付能力)2、50%的本地客户(改善居住体验深居客群、享受优质学区配套资源、具有较强的主城情节

项目基础信息:
主力面积:149-162-175-182-324㎡(少量99㎡)
总价区间:370万-1250万
总 户 数:仅144户
总 栋 数:1栋
车 位:365
车 位 比:1:1.1
物 业 费:4.95元/㎡
梯 户 比:低中高区6-44F 4T7、顶跃320平米46层 4T4
交房时间:2024年12月30日

选择金融街·融御、选择品质生活千亿国企中国500强金融街控股春熙路商圈太古里旁、中国西部第一大商业街,继香港铜锣湾、上海南京路中国第三大商业街,贵胄圈层,王侯将相,顶级政商高干人群聚集之地顶尖设计团队基准方中、郑树芬、陈海辉、因澈思明物业管家金融街控股物业公司+管家式服务、顾问定制伺服圈层管家礼宾酒店式配套服务,高端业主圈层社交俱乐部、健身房、瑜伽室。成熟配套交通:4条地铁环绕,公交3路、8路、45路、52路、53路、98路、138路医疗:华西医院、成都军大医院、四川省第四人民医院、成都市第二人民医院商业:王府井百货、IFS、太古里、群光广场、春熙路学校:锦1学区百年名校和平街小学,成都前十天涯石小学、成都盐道街中学、成都七中育才(水井坊校区)、成都十七中。




项目总平图:

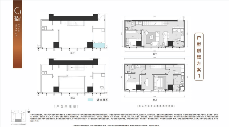
楼层平面图:1、7号—149㎡2、6号—162㎡3、5号—182㎡4号—175㎡

C1-149㎡:


C2-162㎡:


C3-182㎡:


C4-175㎡:



金融街融御【营销中心】:028-84385818(预约看房)
【置业顾问】:18613205563(微信同步)
温馨提示:专业一对一热情服务,为了节约您的等待时间,看房请提前致电预约!!!
免责声明:
以上内容仅作为邀约邀请,涉及的图片为部分区域实拍图和美学畅想图,具体内容请以现场公示和合同约定为准;本文部分资料、部分图片来源于网络,如有侵权请联系我们删除。
声明:本文由入驻焦点开放平台的作者撰写,除焦点官方账号外,观点仅代表作者本人,不代表焦点立场。
