雍景致臻天府值得买吗-楼盘详情-房贷咨询-在售房源查询
扫描到手机,新闻随时看
扫一扫,用手机看文章
更加方便分享给朋友
雍景致臻天府【营销中心】:028-84385818(预约看房)
【置业顾问】:18613205563(微信同步)
四川住宅新规落地!
要求:
住区应保障义务教育资源的衔接,15分钟生活圈范围内应有初中,5-10 分钟生活圈范围内应有小学、幼儿园的教育设施配置。
住区 15分钟生活圈内应至少有1处社区级医疗机构,宜靠近大型医院。
宜尽新建住区配套公共绿地,应可能临近公园、广场、绿地等区域,实现居民出行300m见绿、500 m见园。
住区用地容积率不应大于 3.0,不宜大于 2.8。
与此同时,住区建筑高度应与消防救援能力相匹配,城镇新建住宅高度不应大于 80m,县城新建住宅最高不宜超过18层。
住宅层高不应低于 3.00m,设有中央空调和集中新风系统或地暖的住宅,层高不宜低于 3.10m。
每套住宅应至少有一个居住空间能获得冬季日照,套型内居室数量不少于4个时,宜有不少于2个居住空间满足日照标准的要求。
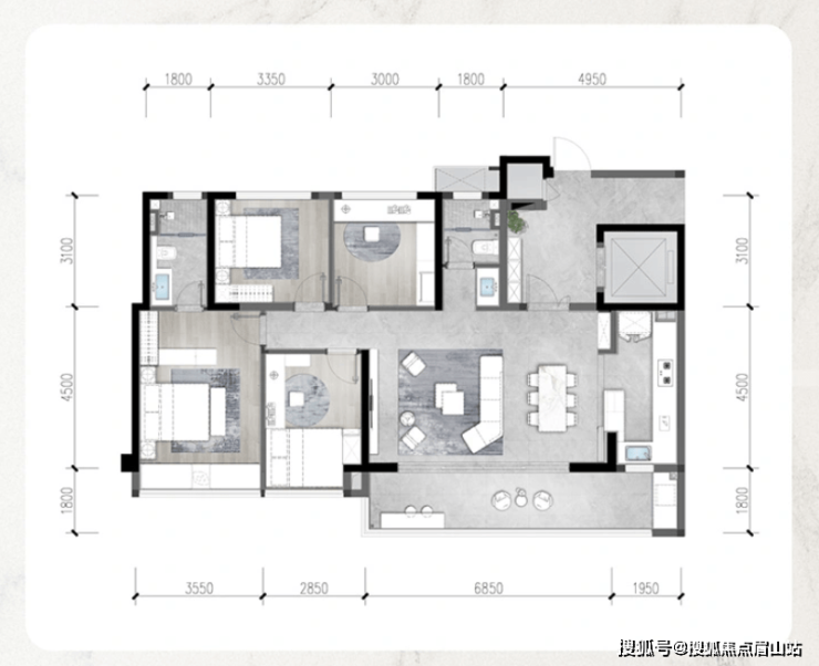
西三环内·天府艺术公园旁·低密人文宽居国宾茶花交界·天府文化景观轴核芯·千亩公园环抱一轴双区·湖园头排143㎡2T2板式舒居
💫雍景·致臻天府择址“天府文化景观轴”核芯 敬献主城更新
💫步行公园集群:天府艺术公园、新金牛公园、金牛公园、丝路云锦
💫品质商业集群:配套金牛大悦城(建设中)、天府111水街、山姆会员店、龙湖西宸天街、金牛凯德广场等
💫品质教育集群:成都四幼、成都七中八一学校、成都实验中学(行知校区)、成都行知小学、成都二十中全龄教育覆盖
💫立体交通枢纽:两轴交汇-金牛大道&三环、四地铁串联-27号线(100米)、2号线(1.1km)、6号线(1.2km)、7号线(1.2km)
💎|项目参数|占地面积:约63亩容积率:2.5楼栋总数:8栋推售面积:建筑面积约128/143㎡(三房/四房)楼层状况:15-25F梯户比:2T2
💎品牌价值//实力国企,匠心营造港投集团:四川省港航投资集团有限责任公司,作为四川省管一级国有资本投资公司承担四川省委省政府赋予的”为四川开放和一带一路”而生,集团控股泸州港、宜宾港、乐山港、南充港、广安港,与“一带一路”沿线130余个政府、机构、企业形成紧密合作机制,搭建了四川—欧洲、四川—东盟全程物流服务体系,可提供至法国、意大利、马来西亚、泰国等100多个国家或地区的国际物流贸易服务。雍景投资:四川省雍景投资集团有限责任公司,作为港投集团直属一类平台公司致力发展成效益领先、行业知名的现代产业投资运营商和城市综合开发运营商。产业主要布局于南充、广安、广元等沿江城市,2020年随着公司战略布局的调整,公司城市产业及地产板块业务正式回归一线城市,目前已布局海南海口和成都本土,为产业及城市发展贡献自己的力量。
💎主城价值//回归主城 城心崛起 政策导向:2022年初,成都提出“三个做优做强”,排在首位的就是要做优做强中心城区,城市由“外延式”向“内涵式”转变。重塑中心城区,就是成都作为超大城市再进化的最新趋势。楼市表现:2022年至今,中心城区新房成交量占比80%,中心城区二手房成交量占比85%;2022年至今主城住宅土地成交69宗,清水限价29000元/㎡以上32宗,占比46%;楼市的表现很好的回应了回归主城的讯号和趋势。(数据来源:购房通成交数据)主城金牛:金牛区位于主城区上风上水的西北面,世界第一张纸币诞生地,2022年GDP1499亿元,连续33年主城区第一,企业增长全成都第一 聚焦“天地人”,打造千亿级产业集群,卫星互联网(天):发挥四川卫星资源中心平台优势和中电科10所、29所等链主优势,打造卫星互联网产业,轨道交通(地):发挥“一校一总部”的平台优势和西南交大、中铁二院等链主作用,做优做强轨交产业,无人机(人):发挥中航智、腾盾科创等链主作用,着力发展无人机飞控及动力系统研制产业链细分领域。
💎规划价值//一轴两区,湖园头排一轴:天府文化景观轴,全长5.8公里,串联了成都最具代表性的文脉资源,历史与现代在此相会,古风蜀韵与公园城市在此交融,成为主城及老城西价值回归的不二门面,轴线串联了永陵博物馆、宽窄巷子、金牛宾馆、天府艺术公园、新金牛公园等城市地标,同时因为金牛宾馆的坐镇,轴线也成为了成都头号礼宾轴线,是成都迎接世界的形象面。雍景致臻天府正位于轴线核芯位置,拥有主城厚重历史文化积淀与城市全新界面。
两区:天府艺术公园片区&茶花新界片区,本案位于两区交汇处,尽享双区资源与利好。
天府艺术公园片区:打造代表四川开放新高度的“一带一路”对外交往中心,规划面积12.6k㎡,以金牛国宾馆和天府艺术公园为核心建设扬天府神韵、放金牛异彩的”蜀都之窗“。
茶花新界片区:规划面积约10.1k㎡,以生态价值转化提升片区整体效益,打造公园要素高度集聚、四态合一率先呈现、生态美学价值彰显的公园式TOD商圈典范。
——两大龙头片区引领 助推城市界面更新,雍景致臻天府位于“国宾—茶花”两大片区交汇的中心位置,享两大片区政策发展红利,依托科创服务、生态人文等布局,赋能区域发展,助推打造高品质城市界面,升值潜力大。湖园头排:自成都提出“公园城市”概念以来,先后于主城打造三大天府级公园,分别是天府广场的天府文化公园、天府新区的天府中央公园及城西国宾板块的天府艺术公园。作为省市级重点工程、第31届世界大运会配套项目的“文旅高地”,天府艺术公园片区规划面积约3033亩,以金牛宾馆为核心,结合片区“三湖三坊三地标”建设,重现川西院落林环水绕的“蜀风揽胜画卷”,打造集艺术、文化为一体的城市新地标。雍景·致臻天府位于天府艺术公园头排位置,尽享片区丰富生态、文化、艺术、产业资源,打造品质人文社区。主城臻稀观景台,与国宾所望略同,凭借绝佳落位, 一览天府艺术公园全貌,与金牛宾馆天府楼观景台对湖相望
💎配套价值//一面艺术,一面烟火气——千亩公园环绕,生态高地雍景·致臻天府自然融入三大城市公园集群之中,畅享高品质公园城市生活,天府艺术公园、金牛公园和新金牛公园组合而成的公园生态群总占地面积超3500亩,是三环内屈指可数的超级公园群。
——阡陌纵横交错,交通便捷已开通地铁2/6/7号线、27号线金牛公园站(在建,约100m)家门口的地铁站;四地铁贯穿全城,与城市主干道,三环路、金牛大道等黄金轴线接驳全城。
——百万方城市级繁华商业项目周边拥有龙湖西宸天街、天府艺术公园天府111商业水街、OCT华侨城生活广场、山姆会员、成都第三座大悦城(在建中)等繁华商业,构建城西品质商圈。
——一站式全龄教育资源成都四幼、成都七中八一学校、成都实验中学(行知校区)、成都行知小学、成都二十中,3-18岁多龄教育覆盖。
——优质医疗护航家人健康项目附近配套有包括四川省人民医院金牛医院、成都西区医院、四川大学华西医院老年医学中心(规划中),为家人健康保驾护航。
💎项目价值//主城高定,低密人文宽居——整体规划理念:与千亩公园相融合,以”先建公园,再建房子“的理念,在63亩的土地上,结合2.5低容积率、12%低建筑密度(住宅区),打造8栋、绿地率35%的臻稀住宅,8栋住宅一楼全架空,为业主的户外活动提供更充裕的空间,产品上打造全板式两梯两户的宽居户型(128㎡三房/143㎡四房)。
——建筑美学理念:深度融入艺术公园的人文气场,以现代美学为基调,设计化繁为简,打造简约气质与高端材料相结合的现代雅致建筑,为公园城市的天际线贡献有一座美学地标
——园林规划理念:项目以空间延伸生活场景,延续天府艺术公园气质打造开放式休闲街,以流年花境为名,营造每日归家的第一印象。以不同特性的绿植,构建花树、草木、廊亭等各具特色的主题园林,营造出疏影游廊、溯光回廊、沐光云庭、花语秘境、暖阳花境、木下拾光等六重盛景,安放亲近生态的理想生活。
——空间设计理念:在户型设计上,充分考量每一种家庭结构、每一位家庭成员,完善的通风、采光、空间尺度之外,我们更希望住在这里的人相亲相爱,平稳过渡每一段家庭模式。
——中海物业,守护居家幸福:中海物业,物业行业内的先驱及领军者,国家一级物业资质,管理面积破亿、客户满意度连续三年蝉联TOP3,物业服务以智慧物业为理念,为业主定制尊崇礼遇,以“慧心科技、衷心安管、悦心活动、贴心客服、匠心工程、舒心环境”为六心品质服务,全方位为业主服务美好生活。
【户型鉴赏】
云境-128㎡-宽境三房

云玥-143㎡-湖景四房

雍景致臻天府【营销中心】:028-84385818(预约看房)
【置业顾问】:18613205563(微信同步)
温馨提示:专业一对一热情服务,为了节约您的等待时间,看房请提前致电预约!!!
免责声明:
以上内容仅作为邀约邀请,涉及的图片为部分区域实拍图和美学畅想图,具体内容请以现场公示和合同约定为准;本文部分资料、部分图片来源于网络,如有侵权请联系我们删除。
声明:本文由入驻焦点开放平台的作者撰写,除焦点官方账号外,观点仅代表作者本人,不代表焦点立场。
