【城南美地中心】网站首页-房源统计-优惠申请-城南美地中心置业咨询
扫描到手机,新闻随时看
扫一扫,用手机看文章
更加方便分享给朋友
城南美地中心【营销中心】:028-84385818(预约看房)
【置业顾问】:18613205563(微信同步)
温馨提示:专业一对一热情服务,为了节约您的等待时间,看房请提前致电预约!!!
“金三银四”是房地产的传统旺季,在已经过去的3月里,全国不少城市出现了“独立行情”。
聚焦于成都来看,3月二手房总计成交25660套,全国第二;房价环比微涨0.1%。
有没有发现2025年,网上认为成都房价会涨和认为房价会跌的声音,都异常活跃?
前段时间金融城三期土拍地价破四万,以及年初新房、二手房成交量上涨,就有人嚷嚷成都房价要涨。
而这期间,时不时爆出来破发降价成交的二手房,又有人大呼成都房价会跌。
说成都房价会涨的,会降的,都有自己的理由。
在我看来,今年成都楼市,市场没有上涨预期,也没有下跌预期,2025年会是无趋势的一年!
项目位于空港双地铁旁,繁华中心地段,商圈环绕,高校环伺,30万方沉浸式创享生活城!小户型见证城南大风云!融合多元业态,共享立体空间,一层一主题,一户一世界!

这里有现代感的商务活力城,有“成都之翼”之称甲级写字楼,有宜商宜居的时尚青年城,有集世界各大零售消费的魅力生活城。无论是风情商业街、LOFT创意空间、集中商业体,还是SOHO公寓、独立私享办公区,任何企业和个人都可以找到与之匹配的。
交通:二条高速 二条地铁 三条干道!
二条高速:机场高速、成雅高速。
二条地铁:地铁8号线(已运行)机场快速路口站离项目只有800米;30号线(在建)谢家渡站最近。
三条干道:天府大道、大件路、机场路,无缝接驳神仙树、高新生活圈。
多条公交线路816路、804B路、846路等 其中91路公交直达成中心天府广场。
商业:蓝光260万方航母级配套,花天锦地美食城,韩国城商业中心,乐天玛特大型购物商场800米,CGV影院,周边:北京华联购物中心1.3公里。

水电气:水电气三通
梯户比:3梯27户
总高:17-18层
装修:清水交房
贷款:首付最低5成
套三建面积约:95㎡
标间、套一建筑面积约:45-57/㎡
均价约:8500-9000元/㎡
公摊约20%,层高约3米。
物管费2.38元/㎡
容积率约5.1
自带商业街,二楼5000平超市。


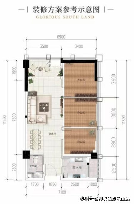
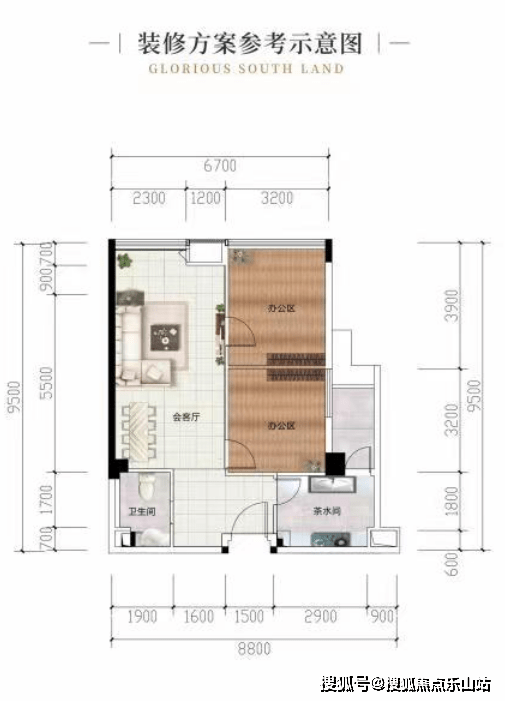
【户型鉴赏】
A户型:104㎡阔尺套三

B户型:82㎡舒适套二

C户型:59㎡百变套二

D户型:51㎡豪华套间

城南美地中心【营销中心】:028-84385818(预约看房)
【置业顾问】:18613205563(微信同步)
温馨提示:专业一对一热情服务,为了节约您的等待时间,看房请提前致电预约!!!
免责声明:
以上内容仅作为邀约邀请,涉及的图片为部分区域实拍图和美学畅想图,具体内容请以现场公示和合同约定为准;本文部分资料、部分图片来源于网络,如有侵权请联系我们删除。
声明:本文由入驻焦点开放平台的作者撰写,除焦点官方账号外,观点仅代表作者本人,不代表焦点立场。
