成都城投置地国宾璟园怎么样丨国宾璟园值得买吗丨房价资深顾问揭秘现房销售丨-交通-优劣势-位置-未来发展-小区解售楼热线丨项目情况丨户型图
扫描到手机,新闻随时看
扫一扫,用手机看文章
更加方便分享给朋友
4001816261
· 人才补贴:中级职称或区级以上荣誉人才购新房,140㎡以下补2万元、140㎡及以上补3万元消费券;
· “以旧换新”支持:出售旧房半年内购新房,140㎡以下补2万元、140㎡及以上补3万元;
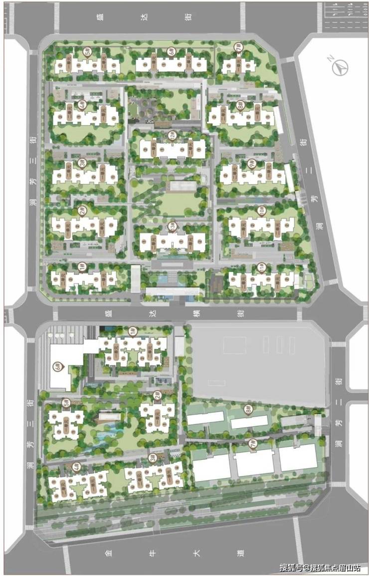
项目总占地约109亩,容积率2.5,分南北两个地块打造。
在规划上,城投置地把T4小户型和T2大户型放到不同地块,保持纯粹性也避免了小区鄙视链。
项目总平面图
北侧国宾璟园占地约70亩,主打纯改善。
这组团占地面积大、定位纯改善,居住舒适度很高。
由13栋13-17层2T2纯板式套四组成,阵列布局,坐北朝南,主力户型建面约131-169平四房。
中间的楼王169㎡户型我铁别喜欢,楼间距宽、中庭大、端头客厅还是两面采光的端厅户型!
国宾璟园意境图
南侧国宾璟怡园占地约39亩,主打200万也买得到主城新房。
住宅由5栋2T4建面约88-109㎡三房组成,另外还有2栋商业和1栋商办公寓。
国宾璟怡园意境图
外立面受片区的规划要求要展现出川西建筑风格。
色调以灰色为主,局部配以中式挑檐和竖向装饰纹样,现代的质感带了传统的味道,很符合板块调性。
国宾璟园意境图
国宾璟怡园意境图
总的来说项目情绪比较稳定,现场看了可能不会有撕心裂肺的惊喜,也不会有翻到天上的白眼儿表情,很正常,两万五买这种高能级板块未必还想叼一坨龙肉走。
户型和装修
项目的户型有点多,一共有挨边26种。
整理了一下,套四户型主要有131、144和168平米;套三户型主要有88、104和109平米,两个地块都有少量底跃。
国宾璟园户型特点:
2T2全南北朝向布局;每户有个可利用电梯厅;层高达到约3.15米;景观阳台大,144㎡的有约7.7米;楼王168㎡端头户型做的端厅,客厅两面采光,并且莫得暗卫!!
部分户型图:
国宾璟怡园户型特点:
部分户型赠送很大,比如88㎡G1户型有接近半个房间都是送的;阳台延续了改善路线做得大,比如109平套三的阳台都有6.8米长。
部分户型图:
声明:本文由入驻焦点开放平台的作者撰写,除焦点官方账号外,观点仅代表作者本人,不代表焦点立场。
