成都新房双流区-正源荟艺境怎么样值得买吗?区域配套/项目情况/实地探盘
扫描到手机,新闻随时看
扫一扫,用手机看文章
更加方便分享给朋友
早在2018年《成都城市总体规划(2016-2035年)中指出,将构建成都“一心两翼一区三轴多中心”的城市空间格局,双流区杨柳湖版块与龙泉驿皇冠湖中心成为成都唯二的综合性副中心。
放眼望去,杨柳湖版块铆足干劲,依政策为背景构建“一核一轴两翼”的城市空间布局。同时,双流在杨柳湖作为副中心规划之下,将生态资源、产业资源、TOD交通资源,文化资源向该区域倾斜,重心逐步南移,享受极致资源的“私有化”。
众所周知,每一个城市“富人区”都离不开对资源的掌控,这些绝对资源不仅是权力,还是土地以及生活资源。
作为双流生活向南的繁华新原点,杨柳湖版块构建公园城市生活场景,提升完善五大组团功能,凤栖湖国际社区作为该版块唯一的高端生活服务组团,在此脉络之下,成就双流“富人区”土地资源的第一占有。
同时,凤栖湖国际社区以凤栖湖生态资源为依托,以国际生态住区和丰富特色业态为表达。涵盖高效便捷交通体系、开放多元的绿色格局、共享交互的国际生活。
| 凤栖湖国际社区规划图
区域上,凤栖湖国际社区位居双流新中心腹地,享受道路-轨道-航空立体交替畅达。双流西站TOD综合开发项目具有良好的产业发展前景和公园城市建设优势,除构建独具双流文化特色的区域交通枢纽中心外,还将成为高端服务与品质生活的双重承载区,助力双流临空经济的产业发展,实现双流公园城市示范区建设。同步加快公路网建设,促进航空及运输结构调整,构建多层次的立体交通运输体系,双流西站TOD与国际接轨,打造成都国际性综合交通枢纽第一出口。
| 双流西站TOD意境图

GLORY CITY
醇熟配套,解锁更多生活可能
l 多维立体交通,畅享城市繁华
凤栖湖国际社区畅连双楠大道与成新蒲大道等主干线,在成都5环路规划区域范围之内,强化区域快速交通功能,预计未来2023年12月前将正式完工。同时,凤栖湖国际社区约1.5公里内拥享3号线三里坝站、10号线应天寺站、15号线棠湖中学站(规划中)、17号线板桥站(规划中)4个地铁站,近距离到达成都双流国际机场,领航享受陆轨空多栖交通路网带来的国际化便捷生活。而从目前成都轨道交通规划来看,也只有成都市中心享受着超4条以上的地铁线路无缝衔接。未来,轨道交通动脉拉大双流城市骨架,区域地位不彰自显,升维真正“富人区”交通资源。
| 图片来源于网络
l 醇熟商业配套,营造富人生活氛围
凤栖湖国际社区除无缝衔接双流老区醇熟生活配套,双流万达广场、城南优品道、海滨城、时代奥特莱斯等多个商业资源,自身还 规划了高品质国际人才社区,高规格会议酒店中心,高档次商务商业集群三大功能板块。包含生态居住、潮流商业、特色酒店、行政公寓、活力公园等丰富业态,执掌城市都会繁华生活。
| 图片来源于网络

| 凤栖湖国际社区效果图
l 优质文化教育,呵护家族下一个起点
同时,凤栖湖国际社区还享受双流体育中心、青少年活动中心(规划)、双流图书馆、双流博物馆(规划)、国际网球中心、国家重点中学-棠湖中学(新校区)等优质文化教育资源。在此生活,书香氛围浓厚,帮助下一代赢在起跑线。区域内,医疗配套完善,三甲医院环伺守护全家健康。
| 图片来源于网络
这些配套资源共同缔造了独一无二的“富人区”生活氛围,繁华程度可见一斑。

生态上,双流规划着亚洲最大湿地公园——空港中央公园。公园总体规划为一个井字形的绿色生态廊道,由绿道串联众多景点组成的公园群。规划总面积达15000亩,是麓湖生态湖域的7倍,其中包括东片区“五湖四海”公园8000亩、西片区杨柳湖公园7000亩。杨柳湖公园和“五湖四海”是串联公园城市标杆的重要生态价值符号,影响着城市与人的关系。
|双流实景图
而其中与我们息息相关的凤栖湖便是“五湖”中不可复制的城市绿洲,优化着凤栖湖国际社区城市一线湖景的视野。一系列环湖绿道、智慧生态设施沿湖而起,构建出大型城市生态圈,激活着一幕世界向往的湖居封面活力,也更匹配高端人士的生活需求。未来这里将是集生态居住、生活购物、休闲旅游商务会议等为一体的超大城市“富人”社群圈层。
|双流实景图
凤栖湖国际社区居于繁华中心、占据稀缺自然资源、浸润丰厚生活底蕴,三者缺一不可成就双流“富人区”地位。而在此生活组团主轴之上,仅有一个项目能够完美契合以上逻辑,这就是刚刚取证的正源荟·艺境。
|凤栖湖生态墅区规划图
而这次,备受瞩目的新推产品又有哪些让人值得期待的地方呢?
每一席全城争抢的美宅,皆携高端产品而来。作为成都芯谷杨柳湖版块唯一生活组团引领者——正源荟·艺境的容积率低至1.5,这在双流乃至主城都非常罕见。
|实景图
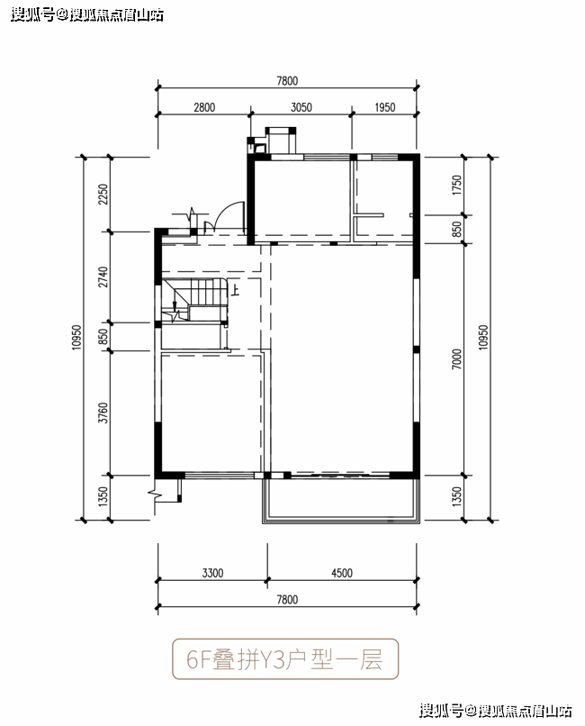
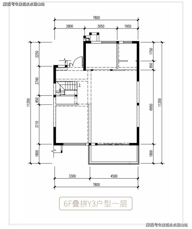
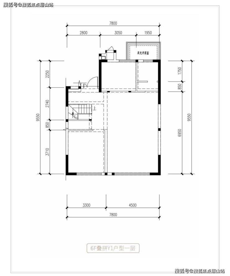
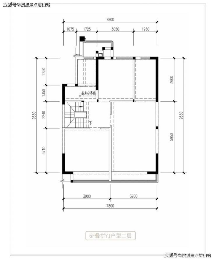
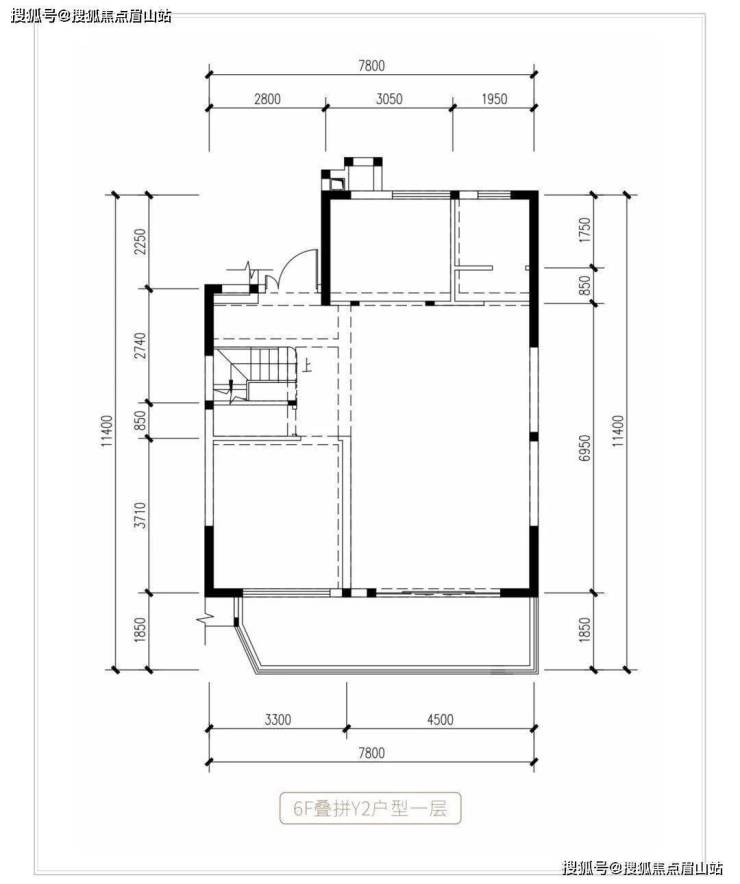
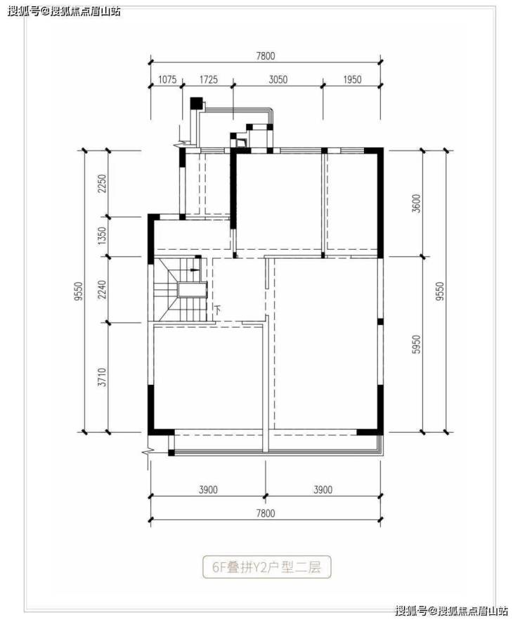
正源荟·艺境针对不同客群打造建面约110-135㎡瞰湖小高层、建面约172-177㎡澜屿叠墅、艺·墅合院,及首次推出新品建面约164-174㎡澜屿叠墅,在户型分布上,下叠建面约164㎡,中叠建面约165㎡,上叠建面约174㎡,三种户型均为四室两厅三卫。产品类型各有特色,客户选择灵活多样。
|实景图
在同一区域,居住环境相同的情况下,正源荟减去拥挤嘈杂,进阶纯粹墅居生活。下叠产品拥享独一无二的天地庭院,让庭院既是室内视野的延伸,也是家庭的第二会客厅。
|实景图
在空间上,满足舒适改善生活需求,客餐厅相连,从视觉增加客厅尺度感和开阔感。独立阔尺餐厨空间,美食犒赏,幸福陪伴,周末休闲,可以来一场精心家庭烘焙。
|实景图
同时,约5米挑高地下室承载全龄段的家庭休闲功能,后期业主可随心打造私家影院、健身空间、儿童活动区、工作室,或者收藏间、储物间等。自带天地庭院和多功能地下空间的下叠产品更重生活体验,从空间上为业主缔造完美墅居生活。
|实景图
对于高端私宅而言,居住体验是人居生活考量的重中之重。
正因如此,中叠产品配备尊享电梯,地下室与电梯直连入户,充分保障了业主生活的私密度。从生活空间来看,阔绰生活尺度也有了进一步的提升,约7.8米超大开间、约1.85米进深的超大景观阳台赋予了整个空间通透感。
|实景图
科学配比的阔尺餐客厅,空间利用率增加,竖厅设计延展奢阔视野,带来更优越的风光尺度。
建面约31㎡主卧是整个家中功能最完备,且体验升级的私享空间。正源荟采用套房式设计,步入式衣帽间,产品空间布局合理,在功能性上,远超同类产品,创造独属业主的私人境界。
|实景图
次卧可打造为专属儿童房,在空间设计完全满足孩子各项独立需求,同时卧室保证了良好的采光面,每天阳光洒进屋内,对儿童成长发育大有益处。
在产品力的进阶上,正源荟强调“生活的舒适状态”,为追求“生活舒适”,在设计之初就会特别关注业主的入住生活体验。
在这一方面,上叠产品尤为亮眼,正源荟打造建面约174㎡上叠产品客餐厨相连,南北通透,开阔大气;向外视线与景观联通,环顾视野收揽城市繁华盛景。

同时户户自带屋顶观景露台,这样的设计在双流是十分少见的,270°的环景视野,多面景观随心打造。在后期功能使用上,可让业主实现了真正意义上的露天花园,阳光、花草、烧烤……让品质生活随心所欲。
免责声明:
以上内容仅作为邀约邀请,涉及的图片为部分区域实拍图和美学畅想图,具体内容请以现场公示和合同约定为准;本资料部分图片来源于网络,如有侵权请联系我们删除。
声明:本文由入驻焦点开放平台的作者撰写,除焦点官方账号外,观点仅代表作者本人,不代表焦点立场。
