金融街融御-实地探盘-团购优惠-户型-学校-价格-金融街融御售楼处
扫描到手机,新闻随时看
扫一扫,用手机看文章
更加方便分享给朋友
金融街融御【营销中心】:028-84385818(预约看房)
【置业顾问】:18613205563(微信同步)
温馨提示:专业一对一热情服务,为了节约您的等待时间,看房请提前致电预约!!!
2025年的成都楼市,已经分化到了极致。
首先是新房和二手房之间的分化,目前新房和二手房成交比例大致是1:2.5,随着供地的减少以及总价的提升,新房的规模还会锐减。
未来的新房,与绝大多数人没有关系。
未来的新房,贵并且也是受欢迎的。
自从新房市场产品迭代之后,和二手房市场实现了价格分层,但到现在,这种价格区分越来越夸张。
然后是新房和新房之间的分化。
同一个地段,一街之隔,相同配套,迭代新房卖3.6万/㎡,未迭代新房2.7万/㎡,差价9千/㎡,10年左右的二手小区则只能卖1.8万/㎡,价差50%!
二手房无限贬值,迭代新房无限哄抢。
【金融街·融御】173米总府路地标 矗立成都中芯繁华
总府造极建面约149-324㎡6.3米跃层住宅
致敬城市极少数中国·成都·锦江·春熙太古旁

金融街·融御价值:
1、地段价值(主城Zui中心173米超高层纯住宅、稀缺性)2、产品价值(市面上绝对稀缺的6.3米跃层 三通超高层住宅)3、圈层价值(纯粹客群:贵胄圈层、顶级政商高干人群、营销圈、一线城市)成交客户分析:1、50%的外地客户(关联成都、浅居、增值、喜好卖点、足够支付能力)2、50%的本地客户(改善居住体验深居客群、享受优质学区配套资源、具有较强的主城情节

项目基础信息:
主力面积:149-162-175-182-324㎡(少量99㎡)
总价区间:370万-1250万
总 户 数:仅144户
总 栋 数:1栋
车 位:365
车 位 比:1:1.1
物 业 费:4.95元/㎡
梯 户 比:低中高区6-44F 4T7、顶跃320平米46层 4T4
交房时间:2024年12月30日

选择金融街·融御、选择品质生活千亿国企中国500强金融街控股春熙路商圈太古里旁、中国西部第一大商业街,继香港铜锣湾、上海南京路中国第三大商业街,贵胄圈层,王侯将相,顶级政商高干人群聚集之地顶尖设计团队基准方中、郑树芬、陈海辉、因澈思明物业管家金融街控股物业公司+管家式服务、顾问定制伺服圈层管家礼宾酒店式配套服务,高端业主圈层社交俱乐部、健身房、瑜伽室。成熟配套交通:4条地铁环绕,公交3路、8路、45路、52路、53路、98路、138路医疗:华西医院、成都军大医院、四川省第四人民医院、成都市第二人民医院商业:王府井百货、IFS、太古里、群光广场、春熙路学校:锦1学区百年名校和平街小学,成都前十天涯石小学、成都盐道街中学、成都七中育才(水井坊校区)、成都十七中。




项目总平图:

楼层平面图:1、7号—149㎡2、6号—162㎡3、5号—182㎡4号—175㎡

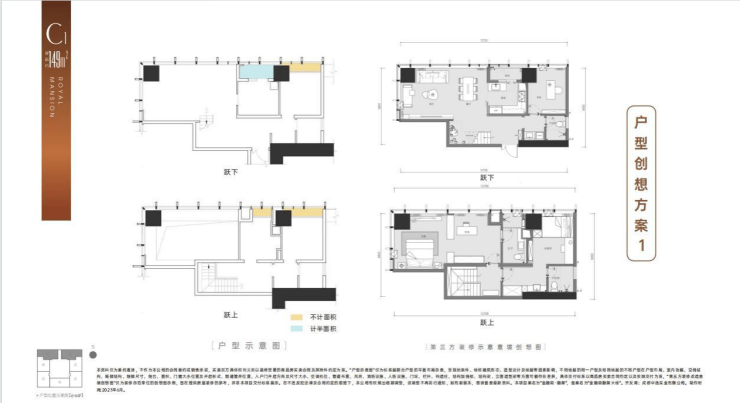
C1-149㎡:


C2-162㎡:


C3-182㎡:


C4-175㎡:



金融街融御【营销中心】:028-84385818(预约看房)
【置业顾问】:18613205563(微信同步)
温馨提示:专业一对一热情服务,为了节约您的等待时间,看房请提前致电预约!!!
免责声明:
以上内容仅作为邀约邀请,涉及的图片为部分区域实拍图和美学畅想图,具体内容请以现场公示和合同约定为准;本文部分资料、部分图片来源于网络,如有侵权请联系我们删除。
声明:本文由入驻焦点开放平台的作者撰写,除焦点官方账号外,观点仅代表作者本人,不代表焦点立场。
