成都工程抵款房出售! 买工抵找肖雨,卖工抵找肖雨 万科高线公园工程抵款房出售!现房,精装房,新房!地铁/商场/学校/地段/公园全部呈现
扫描到手机,新闻随时看
扫一扫,用手机看文章
更加方便分享给朋友
(成都)买工抵找肖雨,卖工抵找肖雨
四川成都-营销中心(已认证)
售楼部热线:4001816261(已认证)
工程建筑方:19380761021(微信同号)
温馨提示:为了给您提供更好的服务质量,看房请提前致电售楼部预约!
42个项目!2025年6月6日第一批成都市住建领域城市机会清单出炉!城市基建进一步推动发展。
成都市住建局梳理形成了2025年第一批住建领域城市机会清单,并正式对外发布。
2025年第一批住建领域城市机会清单(项目共42个,总投资额66.8亿元),其中市政基础设施项目共27个,总投资额12.2亿元;公建配套设施项目共10个,总投资额25.4亿元;城市有机更新项目共1个,总投资额1.4亿元;住房保障类项目共4个,总投资额27.8亿元
万科高线公园是位于从东大街一直延伸到驿都大道的龙泉和锦江交界的一个龙泉驿项目。高耸入云的468就在旁边,万科一直秉承着大而细腻的售楼部设计风格,对应着这个大盘,的确是一个专业而不压抑的开发商。项目虽然是靠近锦江的区域,但配套的天然瑕疵,导致如何实现产品的高溢价成为难题,只能做对配套不敏感的客群的生意,因为这部分客群在成华区或者毗邻的锦江区买不到大户型,高线公园基本都是160以上的大户型或者叠拼别墅,自从三圣乡和白鹭湾的别墅和大平层出现之后,锦江区的优势使得大平层去化量迅速,并且比高线公园这个地方的同类型产品价格高出至少5000的单价,甚至个别时间段是一万的价差,虽然只有几公里的距离,高线公园对面的龙湖光年立了个大牌子就是23800的价格。

从城市形象来看,高线公园所处的区域要比十陵要好一些,十陵的价格基础是在城区市场高涨的时候拉升的,但高线公园拿地是在那个时候,拿地后的销售却没有赶上十陵的好日子,现在十陵的均价比高线公园这个位置要低2000-3000左右。
。所以,在这个方向上,客群需求这么大的户型,且配套不敏感,所以客群的集聚力就比较一般,走量肯定松松垮垮,但对于大盘而言,这种走量的压力肯定更大,因为地大,所以土地款的压力比例就大。并且,从TOD项目的成本而言,地价不便宜,所以目前的售价应该是贴地飞行的,就是没啥利润,所以这个价格的往下走的空间不大,因为从开发商本身来讲还能撑得住。如果撑不住的话,我的判断是从25000-26000的市场价格还是略高于市场价值的,保证理想的走量,譬如月均达到30-40套,价格应该在23000-25000之间,总价以198户型为例,就是450-500万的水平。龙湖的高层一度压到22000在买,龙湖那个商业比例大,总地价便宜,所以从税务筹划的角度以及现金流的角度反而价格下探换量更有空间,按照匹配的市场价值来买,能达到理想的走量。
发展的基础不一,城东底子薄
南门的发展从04、05年开始发力,西门的发展从07、08年发力,而同环域的东门发力则是11年、12年,所以发展的基础不一样,成都10年间常住人口从1500万变成2200万,人群的分布是不一样的,城东的写字楼和城南的写字楼没法比,城东的供地量远远超过城西,城西的高购买力集聚能力远超过城东,所以这个价差、发展基础一目了然。相对于其他同能级企业而言,万科比较喜欢在东门搞,诸如城市花园、魅力之城等,习惯性地在东门搞大盘,龙湖也是。虽然他们在南门也有一定的建树,东和南的差异容易导致定位错乱。所以从投资的角度、自住的角度,我们不能只是看控规的愉悦性,还是要从客群的定位出发去判断一个区域、一个项目的市场价值,正如客户用脚投票的结果一样,但是我们在市场悲观或者乐观的时候,都要有一个长周期的预见性。还是那句话,考卷简单的时候,都能考100分,当初这个项目的匹配土地价格预测,很多开发商房价都预测到接近3万的单价,所以比着这个价格做的拿地测算。
本来是刚需的地盘,跨越式发展。
这个区域是跳跃式发展了,周边都是刚需楼盘和安置房为主,甚至绿地468也是以刚需、刚改为主,当然那是接近10年前的产物了。万科和龙湖这两个定位高端的大盘,拉升了整个客群需求的跨越式发展,中间少了一个发展阶段就是刚改客群的集聚度作为基础,但定位高端的客群又不能形成大量客群集聚,被东南向三环外锦江区竞争楼盘截胡
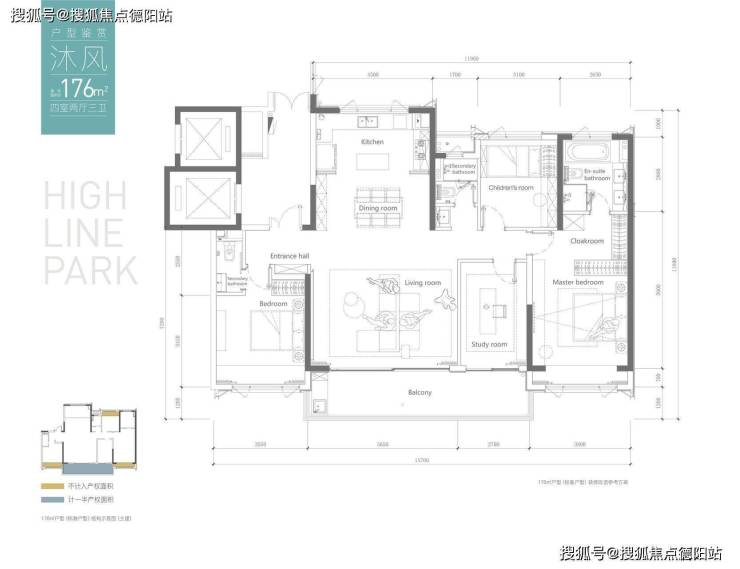
产品户型
稀缺小高层、南北通透、2梯2户
东南亚热带度假风情园林+酒店体验感大开间800库阔尺舒居
“老江湖”万科当然懂得,这样的位置上,该匹配什么样的居住物业。
万科高线公园项目案名源自纽约曼哈顿城市西侧的线型空中花园。原本的货运专用线改建成了独具特色的空中花园走廊,成为曼哈顿的必打卡地之一,为纽约赢得了巨大的社会经济效益,成为国际设计和旧物重建的典范。
万科高线公园占地约212亩,包含小高层、高层、叠拼、商业写字楼、商业街等多种产品。另外多片公园、幼儿园、邻里中心、LINK剧场等公建配套将融于社区之中。项目参照曼哈顿高线公园的建设灵感,打造出了空中花园连廊,串联多个组团,不仅增加了人们的出行便捷度,也丰富了“出行路”的景观体验。
无论是从项目案名、体量还是各项产品、配套来看,万科的“野心”已有所显露:打造成都“东进”要塞处的标杆项目。
想要深入理解万科高线公园这个项目,提前看到它的“未来”,还可以参照万科在上海打造的另外两个项目。一个是TOD项目万科天空之城,另一个是上生·新所城市更新项目。
万科在上海打造的这两个项目,一个有“广度”,一个有“深度”,都十分考验开发商的产品力和城市运营能力。从两个项目目前的呈现情况来看,上生·新所已成为上海虹桥高人气“网红”打卡地,辐射影响着周围区域。而天空之城虽然还未完全呈现,但前期的住宅产品已在周边市场脱颖而出。
现在回过头来看行政学院TOD的万科高线公园这个两百亩的项目,在项目组团配套以及“空中走廊”、“慢行系统”的打造上,均与天空之城相似,后期,项目还将与行政学院地铁站“无缝”接驳。可以想象,未来从地铁站出来,就可以直接开启“逛街模式”,再通过空中走廊欣赏沿途风光,这样的回家之路不是一段路程,而是一段“旅程”。
在项目的整体布局上,万科高线公园住宅外围基本被公园包围,社区则像“藏”在公园里;南侧的写字楼、高线客厅等商业配套迎接行政学院TOD地铁站的人流;沿楠木街分布的商业街和中心位置的高线邻里中心、LINK剧场则将合力营造有“烟火气”的社区,并解决业主的日常商业购物需求。
目前,万科高线公园部分商业配套已有所呈现,北侧的银杏公园以及东侧的高线运动公园也已经投入使用,已吸引了不少周边居民和小孩在其中游憩。先打造公建配套聚拢人气,为后续项目发展做“铺垫”,也体现了万科在运营这种大型城市级项目上前瞻性的运营思路。
这样看来,万科高线公园带来的不仅是住宅,万科的TOD打造能力和城市运营能力,以及通过对公共空间打造聚集人气的能力,再加上对面龙湖的“加盟”,更值得大家期待的是成都TOD的一个范本和一种全新的人居生活方式。
撇开项目本身的优势不说,万科高线公园周边的城市配套,如生态、交通、医疗等城市资源也有较大的优势。
与项目步行距离仅700米左右的上万亩三圣乡旅游生态区,不止有大面积的生态园区,还有大量生态田园场景小店,可满足休闲、娱乐需求。
在医疗资源上,项目距离三甲医院华西第二医院(锦江院区)约2.5公里;与项目距离约3公里的华西医院(锦江院区)也于去年开始建设,占地约169亩,计划在2023年年底完成竣工验收。两大“华西系”的高水平医院也是项目城市配套的加分项。
在教育资源上,项目周边2公里范围内有川师附属常春藤幼儿园、洪柳东小学、大面中学等学校,与锦江区成都树德中学(外国语校区)的距离约3.3公里,另外万科高线公园项目也将配建2个幼儿园。不过,与紧邻的锦江区相比,教育资源仍显得要弱一点。
整体来看,项目所在区域商业能级高,周边城市配套较有优势,且交通、生态、商业配套与项目距离较近,后期居住氛围较好,生活便捷度高。
四川成都-首页网站-线上营销中心
售楼部热线:4001816261(已认证)
工程建筑方:19380761021(微信同号)
温馨提示:为了给您提供更好的服务质量,看房请提前致电售楼部预约!
免责声明:以上内容仅作为邀约邀请,涉及的图片为部分区域实拍图和美学畅想图,具体内容请以现场公示和合同约定为准;本文部分资料、部分图片来源于网络,如有侵权请联系我们删除。
声明:本文由入驻焦点开放平台的作者撰写,除焦点官方账号外,观点仅代表作者本人,不代表焦点立场。
