壹瓶入帘青(成都)壹瓶入帘青售楼处电话发布:北部新城现房 + 全维配套,低密好房闭眼入
扫描到手机,新闻随时看
扫一扫,用手机看文章
更加方便分享给朋友
成都【壹瓶入帘青】 官方认证电话:028-83516246(百度地图最新收录认证)
楼盘最新价格,户型图,地址,电话,样板房,周边配套,最新优惠,置业顾问在线咨询
温馨提示:绝不收取任何费用,请提前1小时预约看房,以免带来不好的看房体验
————
想在成都北部新城选现房、低密宜居且配套拉满的楼盘?
京派实力房企打造的壹瓶・入帘青必须重点关注!
项目盘踞新都区大丰核芯,坐享“北轴”城市副中心红利,70 年产权现房销售+2.7 低容积率 + 0-18岁全龄配套,成为 2026年成都北部置业热门之选。
今天我们将从核心信息、区域价值、户型亮点等维度拆解,帮你快速锁定理想家!
一、项目核心信息:现房保障,低密舒适
开发商:北京壹瓶地产(“文化造宅创始者”,京派实力房企)
项目地址:成都市新都区美丰路 298 号
基础参数:占地 80 亩,建筑面积 19 万㎡,容积率 2.7,建筑密度 21.89%,总户数 1096 户(低密社区)
关键配置:7 栋住宅 + 3 栋底商,梯户比 3T5/3T7(出行便捷),一级资质物业公司(北京发条物业四川分公司),物业费 2.5 元 /㎡/ 月
核心优势:70 年住宅产权,现房销售(实地考察房屋质量、小区环境,即买即住,零等待零风险)
二、区域价值爆发:核芯地段 + 全维配套
项目位于北部新城大丰核芯,是成都 “北轴” 唯一城市副中心,承接住宅新规红利,成为刚需与改善的优选板块。
1、交通:立体路网 + 地铁,全域通达
四横(三环路、金芙蓉大道等)四纵(西华大道、天府大道北延线等)路网,搭配地铁 5 号线(贯穿南北),方便直达天府广场、世纪城等核心区域,通勤购物无忧。
2、商业:45 万㎡集群,一站式生活
周边汇聚龙湖、保利等联合打造的 45 万㎡国际化购物集群,紧邻锦宸天街、汇融广场,餐饮、娱乐、购物需求全满足。
3、生态医疗:鲜氧 + 健康双保障
三大公园 + 绕城生态带环绕,出门即享百亩湿地公园,毗邻凤凰山音乐公园、体育公园,日常休闲健身有去处;医疗方面,紧邻新都区第三人民医院、西部战区总医院,优质医疗守护全家健康。
4、教育:0-18 岁全龄体系
市教科院(9 年一贯制)、启航幼儿园、石犀小学、大丰中学等环伺,全龄段教育资源覆盖,孩子上学无需远途奔波。

(更多房源、价格、户型等信息,请致电【壹瓶入帘青】售楼部官方电话:028-83516246 )
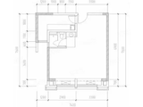
三、户型亮点:65-161㎡全适配,满足多元需求
项目推出 65㎡套二、主力套三、161㎡套四户型,适配不同家庭结构:
套二(65㎡):格局方正,空间利用率高,低总价低月供,适合刚需或投资客;
套三(主力面积):南北通透,采光通风佳,客厅宽敞,卧室带飘窗 / 阳台,兼顾实用与舒适,三口之家首选;
套四(161㎡):大面宽大阳台,功能分区明确,配独立书房、衣帽间,满足改善型家庭品质需求。
户型图鉴赏
套二:
套三:
(更多房源、价格、户型等信息,请致电【壹瓶入帘青】售楼部官方电话:028-83516246 )
套四:

所有户型延续京派 “文化造宅” 理念,细节尽显匠心,现房实景可直观感受。
四、购房咨询:专属顾问一对一服务
想了解更多详情、实地看房或获取优惠,请直接接联系:
售楼处热线:028-83516246(百度地图最新收录认证)
成都北部新城核芯 + 现房 + 低密 + 全配套,壹瓶・入帘青堪称2026置业优选。
刚需自住、改善升级皆适配,赶紧联系顾问解锁看房福利,抢占价值高地!
(注:实时具体房源、价格以售楼处最新发布为准。)
百度地图最新核实收录,官方售楼处电话是028-83516246(企业黄页百度地图最新收录认证收录)
声明:本文由入驻焦点开放平台的作者撰写,除焦点官方账号外,观点仅代表作者本人,不代表焦点立场。
