成都新盘【高投铂郡】房价-优惠|交通|学校|配套详情-销售部电话
扫描到手机,新闻随时看
扫一扫,用手机看文章
更加方便分享给朋友
高投铂郡【营销中心】:028-84385818(预约看房)
【置业顾问】:18613205563(微信同步)
温馨提示:专业一对一热情服务,为了节约您的等待时间,看房请提前致电预约!!!
四川住宅新规落地!
要求:
住区应保障义务教育资源的衔接,15分钟生活圈范围内应有初中,5-10 分钟生活圈范围内应有小学、幼儿园的教育设施配置。
住区 15分钟生活圈内应至少有1处社区级医疗机构,宜靠近大型医院。
宜尽新建住区配套公共绿地,应可能临近公园、广场、绿地等区域,实现居民出行300m见绿、500 m见园。
住区用地容积率不应大于 3.0,不宜大于 2.8。
与此同时,住区建筑高度应与消防救援能力相匹配,城镇新建住宅高度不应大于 80m,县城新建住宅最高不宜超过18层。
住宅层高不应低于 3.00m,设有中央空调和集中新风系统或地暖的住宅,层高不宜低于 3.10m。
每套住宅应至少有一个居住空间能获得冬季日照,套型内居室数量不少于4个时,宜有不少于2个居住空间满足日照标准的要求。
108㎡低密洋房➕区域赠送最大跃层产品区域内准现房项目
基本信息:占地:32亩,总建面约7万㎡,容积率:2.0,绿地率:30%,车位比:1:1.6,物业费:3.1元/㎡(万科物业),交房时间:2023年12月30日,装修情况:精装(洋房装标2300, 跃层装标1500),在售楼栋:东区1栋,西区1-5栋,可售套数:200+,单价:3.2-3.7万,公摊:洋房20-21% 、跃层25%,层高:洋房3m、跃层约6m,产品面积:洋房10F:1梯2户,南北通透,建面约108㎡、总价约370-390万,跃层19F、25F: 2梯2户,南北通透,建面150-163㎡(实得约200-240㎡),总价约480-600万
项目总平图:
户型鉴赏:
B1建筑面积约163㎡,实得面积约230㎡客厅6米挑高,超大空间分区配置,跃层独立私密主卧豪华套房,南北双阳台通透采光,近8m双观景阳台享无敌视野。
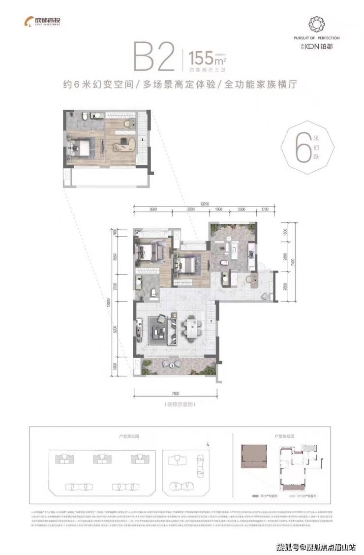
B2建筑面积约155㎡,实得面积约210㎡客厅6米挑高,超大空间分区配置,跃层独立私密主卧豪华套房,南北双阳台通透采光,近8m双观景阳台享无敌视野。
A1 建筑面积约108㎡ 10层低密度洋房平层,1梯2户南北通透,动静分区,双阳台设计,高端精致三房。
免责声明:
以上内容仅作为邀约邀请,涉及的图片为部分区域实拍图和美学畅想图,具体内容请以现场公示和合同约定为准;本文部分资料、部分图片来源于网络,如有侵权请联系我们删除。
声明:本文由入驻焦点开放平台的作者撰写,除焦点官方账号外,观点仅代表作者本人,不代表焦点立场。
