成都昊园阳光壹品值得买吗?昊园阳光壹品多少钱一平资深顾问揭秘现房销售丨-交通-优劣势-位置-未来发展-小区解售楼热线丨项目情况丨户型图
扫描到手机,新闻随时看
扫一扫,用手机看文章
更加方便分享给朋友
4001816261
· 首付比例:二套房公积金贷款首付由30%降至20%,为全国首个执行该比例的省会城市;
· 额度计算:单位职工贷款额度=账户余额×25倍,灵活就业人员按6个月日均余额×25倍(新公式征求意见中);
· 使用范围扩大:住宅老旧电梯更新可提取公积金支付个人承担部分36。灵活就业人员缴存时长要求从12个月缩短至6个月,无贷款余额时可自由提取
昊园阳光壹品项目迎来首批次192套清水房源取证,推售楼栋7#,推售建面86-116㎡,单价均价8800元/㎡,目前首批次房源开盘时间预计9月,更多详情咨询售楼部。



均价8800元/平 全新住宅已开盘
开盘特惠:总价约70万起,首付约11万起 买东四环旁 近地铁
建面约86-116㎡全双卫公园城熟三房
青龙湖东·西江河岸·全配套公园城市悦活圈
项目以日常生活轨迹为半径,将美好生活浓缩成一个圈,举步之间尽享繁华与悠然的平衡。项目集萃交通、生态、商圈、医疗、教育、居住等城市万千美好,让美好生活值得期待。
🛣「交通网」——项目紧邻成洛大道,西江大道;近临四环路,成安渝高速,驾车可快速抵达万象商圈、东郊记忆、建设路商圈等,实现与主城的无缝连接。距地铁4号线西河站约2公里,毗邻4号线东延线(规划中)、17号线(规划中),出行快人一步。
*温馨提示:距离数据来源于百度地图,4号线东延线规划、17号线规划,来源于成都市规划和自然资源局《成都市城市轨道交通线网规划》(2021版)
「自然里」——近临青龙湖湿地公园、出门即享西江河约1.5公里河岸线;环城生态带、龙泉山城市森林公园、蔚然花海等,湖光山色交织于日常,居于此,俯仰之间皆是诗意,咫尺尽享天然氧吧。
*温馨提示:距离数据来源于百度地图
意境图 图片来源于网络
「书香境」——新智慧幼稚园、西河小学、西河中学等优质教育资源在旁,护航孩子成长。
*温馨提示:以上学校信息仅为本项目周边教育环境的客观介绍,并不意味着本项目为学区房,学校就读等信息,均以当地教育主管部门及校方发布为准。
西河小学 图片来源于网络
「健康圈」——四川省人民医院(东院)、成都市中心医院(规划中)、华桥医院等形成健康服务圈,健康生活有保障。
四川省人民医院 图片来源于网络
「生活场」——叶波大润发(本项目已签约装修中)、龙悦中心购物广场、万达广场成都西河店(规划中)、博林广场等,吃喝玩乐购一站式集成。
意境图 图片来源于网络
🏡河岸舒居美宅 自然更亲密
项目匠筑约3万㎡景观面积,约1.4万㎡中庭盛景,采用新古典主义风格,环轴建筑落位,营造共享森林式社区。联动西江河滨河景观,打造专属后花园,领略自然大境。
全龄陪护园林 生活更有温度🎠
布局多功能园林空间,儿童乐园、中庭会客厅、林下休闲空间、阳光草坪等,营造丰富多彩、全龄共享的理想生活场景。
🏗生活的高级表达 从空间尺度开始
建面约86-116㎡全双卫三房户型,户型方正,功能分区明确,轻松满足二胎家庭的居住需求,让室外的自然与室内的生活相生相融,自成一方美境天地。
🪐项目基本信息🪐
总 占 地:约192亩
三期占地:约78亩
产品类别:高层 25层(一楼全架空)
建面信息:建面约86 / 91 /116㎡ 套三双卫
公 摊:约16.67%
总 户 数:共7栋 1628户
层 高:2.9米
物 业:和盛茂物业
物 业 费:2.18元/㎡
梯 户 比:3T8户
交房时间:预计时间2026年底
推盘楼栋:7号楼 共192户
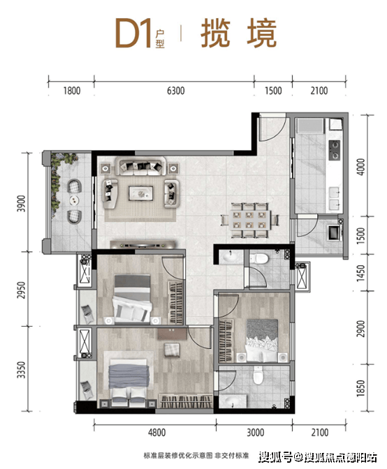
【明星户型推荐】
D1户型 揽境
建筑面积约114.4-115.92㎡三室两厅两卫
全生命周期户型设计,家庭生活一步到位
约50㎡客厅、餐厅、厨房、阳台一体化空间
双阳台设计,厨房步入生活阳台,客厅连接观景阳台
套房主卧,配置独立卫生间、飘窗、衣帽间

☘D2户型 观园
建筑面积约90.87-90.93㎡三室两厅两卫
双阳台户型设计,一面放生活,一面享美景
三房两卫空间,装得下孩子、父母生活所需
约1.8米进深观景阳台,自在一片天地
户型直面中庭景观,推窗即享自然诗意

D3户型 悦景
建筑面积约85.87-85.93㎡三室两厅两卫
三房双卫实用户型
小面积多功能设计
客厅赠送飘窗,拓宽生活空间
客餐厅一体,收藏一家人的惬意时光

声明:本文由入驻焦点开放平台的作者撰写,除焦点官方账号外,观点仅代表作者本人,不代表焦点立场。
