【武侯西派御府】_武侯四大TOD环绕高端改善_武侯西派御府开盘时间|待售房源|户型图|周边规划|售楼部电话
扫描到手机,新闻随时看
扫一扫,用手机看文章
更加方便分享给朋友
【武侯西派御府】 官方认证电话:028-83516246(中介勿扰)
楼盘最新价格,户型图,地址,电话,样板房,周边配套,置业顾问在线咨询
温馨提示:绝不收取任何费用,请提前1小时预约看房,以免带来不好的看房体验
————
【武侯西派御府】是由中国铁建地产参与打造的高端改善住宅项目,位于成都武侯新城核心区,主推128-188㎡精装四房,凭借低密规划和地铁配套成为区域热点楼盘。

占地面积: 约54亩
总户数 :634户
产品面积:建面约128/143/188m²精装四房
楼层情况:16/17/20F
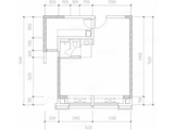
建面约128㎡功能四房
光厅入户,灵动空间享更多生活可能。独立储物空间,收纳更自如;约51m²宽幕横厅,约15.4m超长采光面。

建面约143㎡阔尺四房
光厅入户,灵动空间;双套房设计,约30m²奢阔主卧;阔景大横厅,约10m²厨房空间,居家好用。

黄金3.5环-武侯新城串联主贼高能板块
3.5环串联金融城、武侯新城、青羊新城楼市核芯,地铁9号线一脉贯通。新兴产业、TOD交通网格等构建繁华城市蓝图,板块高端能级再进阶。
武侯西派御府,占位武侯新城改善居住区,集商业、教育、交通、公园多维醇熟生活资源。
四大TOD环绕 9号线/17号线毗邻帷幄畅达
机投桥TOD(规划中)、白佛桥TOD(建设中)、双凤桥TOD (建设中)、武青南路TOD(规划中)共同形成TOD闭环,打造武侯繁华新焦点。
地铁9号线串联金融城、青羊新城;地铁17号线联通成华,完善路网,畅达全城。
近距离机投桥TOD约20万㎡商业综合体旁(规划中)、山姆会员商店,更有武侯星悦荟、大悦城、金楠天街等,邂逅缤纷繁盛。

川大附小、成都七中领办 赋能区域教育能级跃升
四川大学附属实验小学明德学校
距离项目直线距离约750米,川大附小直接领办,高起点办学体系。
成都七中墨池书院中学
距离项目直线距离约700米,成都七中领办,专业教育体系,多龄教育护航成长。

▶约4000㎡法式会所,24大生活场景
以巴黎歌剧院为设计蓝本,让西派经典法式生活升级回归。
约4000㎡法式奢雅会所,囊括健身空间、私宴厅、女王下午茶等24大生活场景,将法式生活哲学与艺术美学,融入西派日常。
▶武侯新城新规作品,建面约128-188㎡全四房
西派新规产品,以奢尺空间享受,续写武侯高端的西派传奇。
【武侯西派御府】 官方认证电话:028-83516246(中介勿扰)
楼盘最新价格,户型图,地址,电话,样板房,周边配套,置业顾问在线咨询
温馨提示:绝不收取任何费用,请提前1小时预约看房,以免带来不好的看房体验
百度地图最新核实收录,官方售楼处电话是028-83516246(企业黄页百度地图最新收录认证收录)
声明:本文由入驻焦点开放平台的作者撰写,除焦点官方账号外,观点仅代表作者本人,不代表焦点立场。
