2025【中铁卓著】售楼处电话-预约热线-楼盘详情
扫描到手机,新闻随时看
扫一扫,用手机看文章
更加方便分享给朋友
中铁卓著【营销中心】:028-84385818(预约看房)
【置业顾问】:18613205563(微信同步)
温馨提示:专业一对一热情服务,为了节约您的等待时间,看房请提前致电预约!!!
你敢信?成都5年人口暴涨了近500万!
2025年,一组成都统计局发布的数据引发了热烈讨论:
2024年成都常住人口约为2147.4万人,比2019年的1658.1,飙升了490万人,增幅高达30%;城镇化率80.8%,首次突破80%大关。
更震撼的是,当北京、上海、重庆因主动控规模或区域调整出现人口负增长(北京减1.8万、上海减13.1万、重庆减21.9万)时,成都却逆势抢人。
这不仅是2000万级城市中的独一份,更标志着成都正从西南中心向全国人口第三城发起冲刺。
可能很多人还不知道,中铁·卓著其实是由中铁和龙湖合作打造的成都首个龙湖龙智造项目——中铁拿地开发,龙湖代工代建,另外物业也将使用龙湖物业最高端的“尊享版”服务。
两大品牌的强强联合,造就了中铁·卓著优秀的产品力,也给购房者提供了双重信心保证。
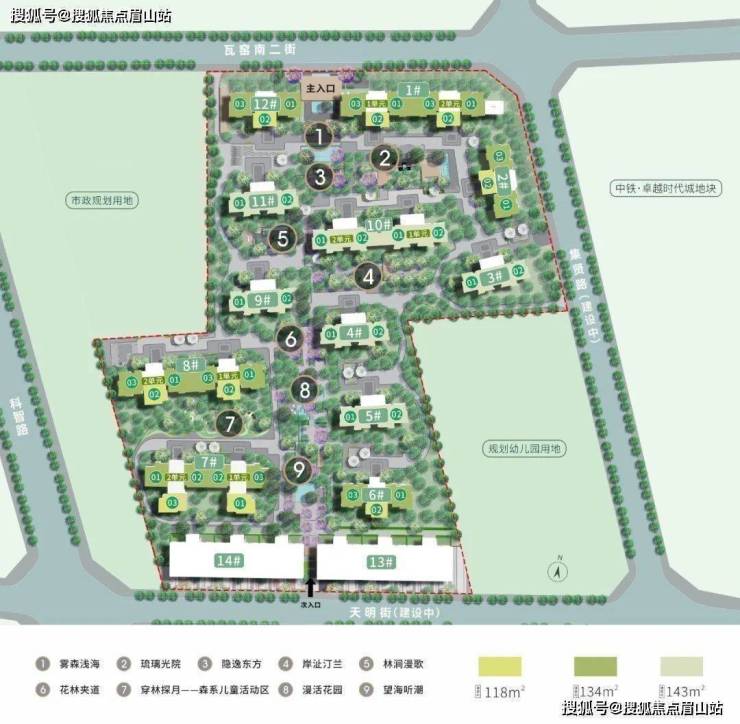
⫸项目基本信息 ⫷
⫸区域价值⫷

从区位图可以看到,项目位置属于【科学城】版块。科学城是天府新区这么多年投入资金和资源最多的区域之一。根据天府新区的规划,成都科学城除了生态用地之外,产业科研:商业:住宅用地的比例为8:1:1,住宅用地比较稀缺。其中,又仅有4成的住宅用地可对外销售,而这些可对外销售的住宅地块,约45%都位于中铁·卓著所在的这片区域内。因此,项目周边未来将会形成比较浓厚的居住氛围,而目前,可以预见的生活配套已经比较完备。
【交通配套】:三条地铁两条快
道路交通上,项目通过横向的科学城北路可以快速接驳梓州大道、天府大道、益州大道等城市级南北干道。轨道交通上,项目距离地铁兴隆站约600米,该站目前已开通18号线,未来规划为16*18号线换乘站;另外项目北侧约300米处,正在修建地铁19号线蓝家店站,按计划今年就会通车。
【教育配套】方圆800米全覆盖

在中铁·卓著一墙之隔的东侧,为规划的幼儿园用地;一街之隔的北侧,也是教育用地,未来将用于修建天府新区教科院附小和附中的本部新校区。另外,在梓州大道西侧,还有天府教科院附小西区,以及K12的天府中学。在项目周边800米直线距离内,覆盖了从幼儿园到高中全龄段的教育资源。
【医疗资源】天府新区顶配
在兴隆湖的西南角上,四川大学华西天府医院已经开诊,这是由天府新区管委会与四川大学华西医院按三甲标准合作建设的综合性医院,也是天府新区最优质的医疗资源。
户型鉴赏
交通配套:三条地铁两条快
道路交通上,项目通过横向的科学城北路可以快速接驳梓州大道、天府大道、益州大道等城市级南北干道
轨道交通上,项目距离地铁兴隆站约600米,该站目前已开通18号线,未来规划为16*18号线换乘站;另外项目北侧约300米处,正在修建地铁19号线蓝家店站,按计划今年就会通车。
商业配套:一站直达“市中心”
中铁·卓著自带一定体量的社区商业,再加上相邻的小区也都有社区商业,可以提供日常生活的便利性消费。
大型商业方面,近期最值得期待的就是天府总部商务区东区的天府大悦城。目前天府大悦城已经封顶,按计划将于今年开业,从中铁·卓著到天府大悦城坐地铁仅需1站。
教育配套:落地的5所“名校”外,此前,成都科学城已经布局有四川天府新区第一小学、成都天府中学及成都天府中学附属小学、成都天府新区教科院附小(含西区)、四川天府新区十一学校、四川天府新区湖畔路中学、科学城幼儿园等学校。
中铁卓著【营销中心】:028-84385818(预约看房)
【置业顾问】:18613205563(微信同步)
温馨提示:专业一对一热情服务,为了节约您的等待时间,看房请提前致电预约!!!
免责声明:
以上内容仅作为邀约邀请,涉及的图片为部分区域实拍图和美学畅想图,具体内容请以现场公示和合同约定为准;本文部分资料、部分图片来源于网络,如有侵权请联系我们删除。
声明:本文由入驻焦点开放平台的作者撰写,除焦点官方账号外,观点仅代表作者本人,不代表焦点立场。
