成都人居云缦林语楼盘详情 人居云缦林语在售产品 资深顾问揭秘现房销售丨-交通-优劣势-位置-未来发展-小区解售楼热线丨项目情况丨户型图
扫描到手机,新闻随时看
扫一扫,用手机看文章
更加方便分享给朋友
4001816261
成都出台房产新政(2025年7月21日):成都市住房和城乡建设局等6部门联合发布《关于促进房地产市场平稳健康发展若干措施的通知》,推出17条具体措施。核心包括:
o 分批取消住房限售:规定2024年10月14日前购买的商品住房,取得《不动产权证书》后即可上市交易;2026年1月1日起,此前取得产证仍处于限售期的二手住房取消转让限制(特殊限售要求的楼盘除外)。
o 降低公积金购房门槛:购买第二套住房的公积金贷款最低首付款比例由30%降至20%。同时优化贷款额度计算公式,拟按缴存余额的25倍计算,以提高可贷额度。
o 扩大公积金使用范围:支持职工提取住房公积金用于住宅小区老旧电梯的更新(个人支付部分)。

【基础信息】项目占地:约102亩开发商:成都人居交子置业有限公司
面积区间:113-119-128-143平 169平~197平跃层
在售房源情况:
? 5栋 2T4 小高层 119平 总高18层
?4栋 2T4 小高层 113平 119平 总高18层
?6栋 1T2 洋房128平 总高8+1售罄
?7栋 1T2 洋房128平 总高10+1F
?11栋2T2 小高层143平 总高17➕1
?12栋 2T2 小高层 143平 总高17+1
跃层:169平 总价372万左右
跃层:197平总价432万左右
均价:1.9万~2.1万总价:213万-420万
公摊:119㎡-15% 143㎡-17% 128㎡-13%
户数:1284户
楼层:9-18F楼栋总数:20栋
层高:2.95-3米梯户比:2T4/2T2/1T2
绿化率:35%
停车位:1975个(车位比1:1.5)
交付标准:精装2330元
装修呈现:中央空调,地暖,新风一线品牌
物业费:2.9元
容积率:2.42
交房时间:2025年6月30日

开发商背景
兴城人居,2022中国房地产公司品牌价值TOP10(国企)
兴城集团,第一家进入世界500强的成都市属国企,旗下地产开发运营板块兴城人居荣获“2022中国房地产公司品牌价值TOP10(国企)”奖项。是成都规模最大的国有企业。
人居择址观
主城北中轴 资产价值制高点
2022年7月,在《成都市中优“十四五”规划》中,北部新城升级为「城市副中心」。
主城北中轴,作为城北南北大动脉,更是聚合了“文商体旅”等多重优质资源,产业规划势头正猛,形成天回、大丰等高端核心居住板块,未来城市价值及资产价值,不可估量。
千亿级产业集群
国际商贸城、中铁轨道产业园、西部北斗地理信息产业园、人工智能产业园等,促成北部新城产业迭代,完成城市升级焕新;

第31届世界大学生夏季运动会核心场馆之一,也是2023年第18届亚洲杯球赛成都赛区主场馆。赛事经济红利,预计一年可引流超50万人次;
举办了2021中国足球协会杯决赛、2022年中超联赛等重大赛事,也是2023中超球队蓉城俱乐部主场,2023年4月中超新赛季开赛在即,人气之火爆可想而知!

人居城市观
林语系首进城北
2023携TOP级产品线“林语系”首进城北,以高配置标准,打造主城“里程碑式”作品。致献城北新贵们的新派生活样本。
楼盘周边配套
交通配套:
1地铁交通:5号线幸福桥站600号米,在建地铁27号线石门坎站300米(明年底通车)
2公路交通:北星大道,凤凰山高架,三环路,天龙大道,绕城高速。
都会商业:悦享汇融广场、龙湖锦宸天街、大都汇、福地广场、爱尚里商业街(在建)等5大核心商业;
教育配套:
幼儿圆:机关三幼,第十六幼儿园(蜀道园区)
小学教育:人民北路小学天北校区/成都实验小学(北新校区)
中学教育:七中万达(已规划)成都铁中,新川外国语学校
公园配套:毗邻两大城市级公园(凰山露天音乐公园、凤凰山体育公园),环城绿道公园、源上湾公园等多个公园环伺;
医疗配套:核心优享三甲医院西部战区总医院医疗资源,金牛区中医医院(在建),为家人健康保驾护航;
人居产品观
以人居林语系、酒店式艺术大宅、113-143㎡全周期洋楼,焕新城市界面,园林景观与生活场景无界相融,为城北打造国际化、艺术化、个性化的美学空间。

对标巴黎半岛酒店,融入全球奢华顶级酒店理念,以「庭院」融合与转换空间质感,入口设置迎宾水幕景墙,营造端庄大气的归家氛围。

公建化外立面、全面屏视野,用轻盈、流畅线条打造一个现代感的大屋檐艺术品级外立面,约8.5米甲板式阳台面、一字板式大宅,最大限度占有窗外视野资源。

以围合式建筑布局,打造对标宝格丽的酒店式雅奢景观,四重归家礼序、林下花园、对景跌水、休憩卡座,一步一景,起承转合,营造独有的生活仪式感。

以丰富的艺术场景化设置,打造云缦林语独特的沉浸式洄游社交链,浮光廊架吧台、CO-HOME泛会所等,打破空间界限,予家人、邻里、友人的社交休闲聚场。

119平套三双卫户型图竖厅如下:

119平套三双卫户型图横厅如下:

128平套四双卫户型图如下:

143平套四双卫户型图如下:

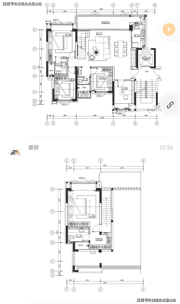
167平顶跃户型图如下:

197平顶跃户型图如下:

总平图:
声明:本文由入驻焦点开放平台的作者撰写,除焦点官方账号外,观点仅代表作者本人,不代表焦点立场。
