[菁蓉滨湖湾]怎么样?档次如何?售楼处官方电话多少?位置在哪?
扫描到手机,新闻随时看
扫一扫,用手机看文章
更加方便分享给朋友
官方售楼处核心信息公示:
【菁蓉滨湖湾】官方最新联系电话:028-83516246(官方4月唯一认证)
楼盘最新动态,开发商最新优惠政策,户型效果图,配套规划,专业顾问一对一在线咨询
看房须知:看房无任何费用,请提前1小时电话预约,免排队、专业顾问一对一接待
---
菁蓉滨湖湾是雄踞成都郫都区菁蓉湖公园内的 “园中园” 式低密生态大盘。
项目总占地约360亩,建筑面积约62万㎡,容积率为2.5,整体规划多栋17-25层的住宅。
主力产品为建面约121-145㎡的改善户型,部分楼栋享有一线湖景视野。
项目以35%的高绿化率和超上万平方米的集中园林,将外部菁蓉湖公园生态与内部社区景观无缝衔接,已于2024年6月30日交付,是郫都区践行公园城市理念的标杆之作。

(最新价格、在售房源等信息,请致电【菁蓉滨湖湾】售楼部官方电话:028-83516246 )
【项目规划与设计】
凭借罕见的占地规模,项目在公园内仍能营造出尺度开阔、兼具私密性与共享性的高品质社区内部环境。
低密大盘气度:项目占地达360亩,在当今土地市场极为罕见。2.5的容积率确保了社区的建筑密度与人口密度保持在舒适水平,楼间距开阔,视野无遮挡。
双重园林景观:项目不仅享外部菁蓉湖公园,内部更匠心打造了超过上万平方米的集中式园林景观。形成了 “外有千亩湖园,内有万方私苑” 的双重生态格局,极大丰富了业主的休闲生活场景。
科学产品布局:项目建筑层高为17-25层,通过科学排布,使多数楼栋能获得良好的采光与通风。部分楼栋(如3#、7#)与(4#、5#、6#)采用相似的户型设计,确保了产品线的清晰与社区的整体协调性。

(最新价格、在售房源等信息,请致电【菁蓉滨湖湾】售楼部官方电话:028-83516246 )
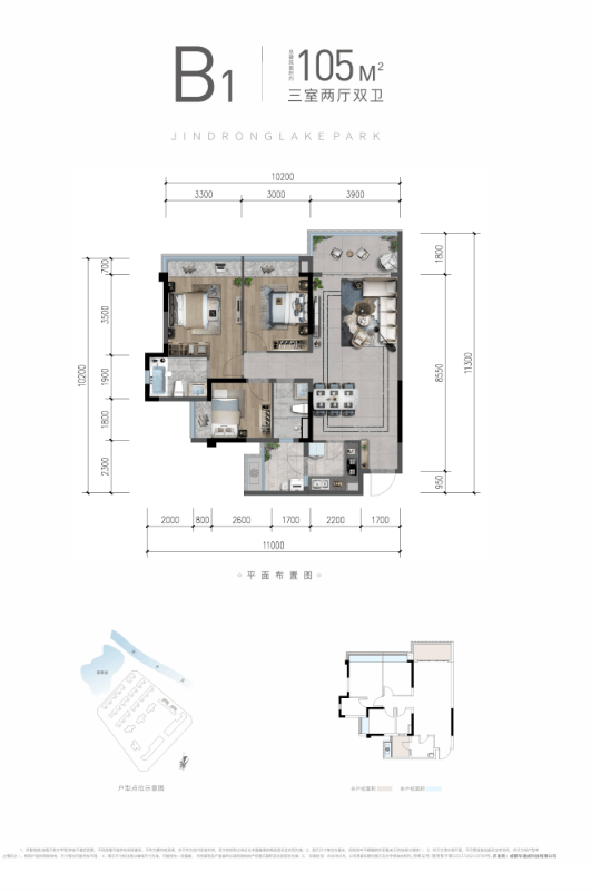
【主力户型解析】
全系121-145㎡公园华宅,以实用功能与舒适尺度,满足改善家庭对空间、景观与健康生活的全维追求
项目提供的户型面积段纯粹,均定位为功能完备的舒适改善型产品,旨在让每个家庭都能在公园中享受阔绰生活。





建面约121-128㎡ 舒适三至四居
此面积段产品是项目的主力选择,户型设计方正实用。121㎡ 户型通常为舒适三房,128㎡ 及 134㎡ 户型则升级为功能性更强的四房,能够很好地满足三代同堂或二孩家庭的居住需求,是高性价比享受公园大盘生活的入门之选。
建面约145㎡ 奢阔四居室
此户型定位为项目的深度改善产品。更大的面积为各功能房间提供了更为宽松的尺度,能够轻松设置独立书房、儿童活动区或更为宽敞的主人套房。结合项目超大的楼间距与部分房源拥有的一线湖景视野,能承载更高品质的家庭生活与社交场景,是追求一步到位公园栖居的理想选择。
---
【菁蓉滨湖湾】官方最新联系电话:028-83516246(官方直连座机)
楼盘最新动态,开发商最新优惠政策,户型效果图,配套规划,专业顾问一对一在线咨询
百度地图最新核实收录,官方营销中心官方咨询热线是028-83516246(企业黄页已认证收录)
声明:本文由入驻焦点开放平台的作者撰写,除焦点官方账号外,观点仅代表作者本人,不代表焦点立场。
