成都天投中海天府合印值得买吗?天投中海天府合印资深顾问揭秘现房销售丨-交通-优劣势-位置-未来发展-小区解售楼热线丨项目情况丨户型图
扫描到手机,新闻随时看
扫一扫,用手机看文章
更加方便分享给朋友
4001816261
成都出台房产新政(2025年7月21日):成都市住房和城乡建设局等6部门联合发布《关于促进房地产市场平稳健康发展若干措施的通知》,推出17条具体措施。核心包括:
o 分批取消住房限售:规定2024年10月14日前购买的商品住房,取得《不动产权证书》后即可上市交易;2026年1月1日起,此前取得产证仍处于限售期的二手住房取消转让限制(特殊限售要求的楼盘除外)。
o 降低公积金购房门槛:购买第二套住房的公积金贷款最低首付款比例由30%降至20%。同时优化贷款额度计算公式,拟按缴存余额的25倍计算,以提高可贷额度。
o 扩大公积金使用范围:支持职工提取住房公积金用于住宅小区老旧电梯的更新(个人支付部分)。
o 区域发展策略:政策强调提升住房供应质量和区域均衡发展。例如,推动龙泉驿、新都、温江等区围绕轨道场站发展高品质住房;推动青白江、简阳等市县完善配套提升品质。
中海品牌优势
进入成都22年,成为最懂成都人的开发商,22年匠心打造30个项目,各个是区域精品!
项目地址:天府新区·利州大道和天津路交界处
【项目概况】
占地:70亩
户型:建面约92-133㎡
单价: 23000均价精装
总高:14-18层精装小高层
楼栋:南北朝向布局
容积率:2.5
产权年限:70年
物业:中海物业
天府前湾•中央法务区·低密纯粹住区
一房一价备案价购买
项目核心价值
天府前湾,天府CBD旁,核心居住区。
天府新区城市副中心,天府新区核心区最后的核心版图。
【核心价值】
天投 中海•天府合印项目位于天府中央商务区旁的中央低迷住区,天府前湾的核心区北靠麓山,西邻麓湖,南至天府中央商务区,东侧紧临中央法务区。
万亩生态公园环绕,真正做到公园中享受生活。
双TOD板块,带来丰富一体化配套。
价格剪刀差优势,我们限价精装2.3万,周边新地限价精装2.8万,项目价值属于价值洼地,现在入手极佳。
项目参数:
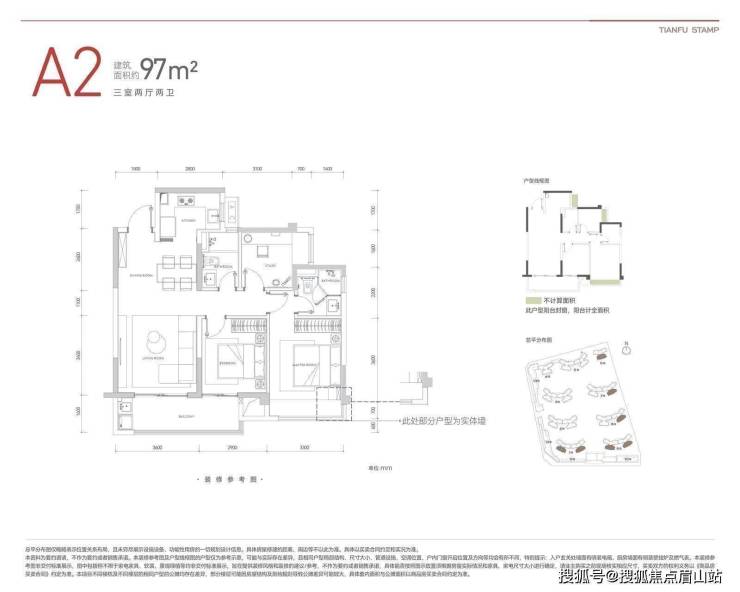
·中海20年三房经典户型
·主力户型97户型:三面宽朝南,南向开间9.8米,三室两厅双卫。
·明星户型113平,坐拥大平层优势,南北通透,8.7m横厅,开放式厨房,45平米LDK厅。
区域价值
天府前湾 国家能级中央法务区 天府新区副中心 价值兑现期呈现新机遇
全国首创,建设天府中央法务区,打造立足四川、影响全国、面向世界的一流法律服务高地。
【周边配套生活】
公园:天府新区作为公园城市的首提地,生态环境尤其优越,享超10000亩城市生态中轴:天府公园、麓湖红石公园、天府森林公园、万安体育公园。且已全部建成投入使用。
交通:青岛路TOD、昌公堰TOD、4条地铁环绕(1、6、18、26号线),200米公交覆盖,四横四纵立体交通路网,畅达全城。
📇商圈:3大文创中心地标,商业综合体,星级酒店群。5分钟到和悦广场(山姆会员店、迪卡侬已入驻)、合能生活广场、麓镇风情商业街,向南6分钟可以到 天府国际保税中心、天府大悦城(2023年开业)、雪莲堂美术馆等。
教育:0-18岁全系教育配套。天府新区划片就读,属于D区,区域重点小学(香山小学、万安小学、天府二小、成都天府新区第三中学小学。重点中学(天府三中、万安中学)。1km内两所幼儿园。 私立学校:光亚学校、成都实验外国语学校。
声明:本文由入驻焦点开放平台的作者撰写,除焦点官方账号外,观点仅代表作者本人,不代表焦点立场。
