成都城投国宾璟园丨城投国宾璟园开盘价格现房销售丨周边配套-交通-优劣势-位置-未来发展-小区解售楼热线丨项目情况丨户型图资深顾问揭秘
扫描到手机,新闻随时看
扫一扫,用手机看文章
更加方便分享给朋友
4001816261
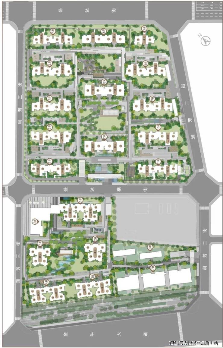
项目总平面图
北侧国宾璟园占地约70亩,主打纯改善。
这组团占地面积大、定位纯改善,居住舒适度很高。
由13栋13-17层2T2纯板式套四组成,阵列布局,坐北朝南,主力户型建面约131-169平四房。
中间的楼王169㎡户型我铁别喜欢,楼间距宽、中庭大、端头客厅还是两面采光的端厅户型!
国宾璟园意境图
南侧国宾璟怡园占地约39亩,主打200万也买得到主城新房。
住宅由5栋2T4建面约88-109㎡三房组成,另外还有2栋商业和1栋商办公寓。
国宾璟怡园意境图
外立面受片区的规划要求要展现出川西建筑风格。
色调以灰色为主,局部配以中式挑檐和竖向装饰纹样,现代的质感带了传统的味道,很符合板块调性。
国宾璟园意境图
国宾璟怡园意境图
总的来说项目情绪比较稳定,现场看了可能不会有撕心裂肺的惊喜,也不会有翻到天上的白眼儿表情,很正常,两万五买这种高能级板块未必还想叼一坨龙肉走。
户型和装修
项目的户型有点多,一共有挨边26种。
整理了一下,套四户型主要有131、144和168平米;套三户型主要有88、104和109平米,两个地块都有少量底跃。
国宾璟园户型特点:
2T2全南北朝向布局;每户有个可利用电梯厅;层高达到约3.15米;景观阳台大,144㎡的有约7.7米;楼王168㎡端头户型做的端厅,客厅两面采光,并且莫得暗卫!!
部分户型图:
国宾璟怡园户型特点:
部分户型赠送很大,比如88㎡G1户型有接近半个房间都是送的;阳台延续了改善路线做得大,比如109平套三的阳台都有6.8米长。
部分户型图:
声明:本文由入驻焦点开放平台的作者撰写,除焦点官方账号外,观点仅代表作者本人,不代表焦点立场。
