成都冠城玲珑湾生活圈配套碾压周边:团购优惠-售楼部电话-户型图-房价格最新消息今天-周边配套-交通。
扫描到手机,新闻随时看
扫一扫,用手机看文章
更加方便分享给朋友
【醇熟配套】10分钟主城生活圈?交通:两纵(三环/蜀王大道)两横(成洛大道/蜀都大道)交通路网,通达全程;地铁4号线来龙,规划道路修好以后800m。
商业:满足日常生活所需有龙泉人家、华润润街、社区底商,娱乐购物有万象城商圈、凯德广场、滨江天街等大型综合体。
教育:龙门幼儿园(480m)、友谊幼儿园(700m);友邻小学(700m)、师大附小临枫小学(1.9km)(“友邻小学”根;成都华川中学(1km)、第三中学(1.8km)区域规划来24所学校:包含13所幼儿园、6所小学、6所中学。
医疗:1.2km有成都五六四医院、1.8km有成都东升医院、2.1公里有成华区第六人民医院,2.8km有省医院东病区
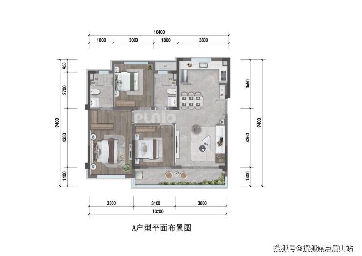
户型鉴赏:
95㎡
131㎡
声明:本文由入驻焦点开放平台的作者撰写,除焦点官方账号外,观点仅代表作者本人,不代表焦点立场。
