成都新希望天屹网站首页-新希望天屹销售中心资深顾问揭秘现房销售丨-交通-优劣势-位置-未来发展-小区解售楼热线丨项目情况丨户型图
扫描到手机,新闻随时看
扫一扫,用手机看文章
更加方便分享给朋友
4001816261
1. 成都出台房产新政(2025年7月21日):成都市住房和城乡建设局等6部门联合发布《关于促进房地产市场平稳健康发展若干措施的通知》,推出17条具体措施。核心包括:
o 分批取消住房限售:规定2024年10月14日前购买的商品住房,取得《不动产权证书》后即可上市交易;2026年1月1日起,此前取得产证仍处于限售期的二手住房取消转让限制(特殊限售要求的楼盘除外)。
o 降低公积金购房门槛:购买第二套住房的公积金贷款最低首付款比例由30%降至20%。同时优化贷款额度计算公式,拟按缴存余额的25倍计算,以提高可贷额度。
o 扩大公积金使用范围:支持职工提取住房公积金用于住宅小区老旧电梯的更新(个人支付部分)。
【经开发展|新希望•天屹】
流水艺术住区东安湖中央居住区 2.0低密纯居洋房
建面约116-143㎡新派隐逸奢宅


🔥🔥🔥【项目十大核心亮点】🔥🔥🔥🌟经开发展/新希望地再联手,第四个作品,交付和品质绝对保障🌟东安湖中央居住区,核心首熟区,15分钟生活圈🌟区域唯一在售2.0低密,纯住宅,纯洋房/小高层小区🌟区域唯一下沉式真会所,宝格丽主题🌟东干水渠滨河绿道穿过小区,双超大中庭园林景观,内外双园🌟区域唯一独立光厅带梯控入户,比肩新希望D10配置🌟区域稀缺116㎡1T2户三室两厅两卫户型🌟区域最大面宽143㎡户型,带入户光厅,超高得房率🌟区域最高装标,中央空调、地暖、新风、净水器四大件、落地式一体马桶、12套洗碗机🌟新希望豪宅物业服务一脉相承,保驾护航

【经开发展】一部经开史,半座龙泉城千亿国企 立足龙泉 服务民生成都经开发展集团注册资本200亿,资产总规模达2500亿元,全资控股经开国投、经开产投、经开资本、经开置业、经开建工5家二级企业,31家三级企业,深耕龙泉驿、匠心筑大城,为龙泉驿城市发展贡献了重要力量。

【新希望地产】精致绿色,让生活更美好世界500强品质,城东品质舒居缔造者新希望集团,2021年荣登世界500强榜单,2024年排名378位。新希望地产为百强房企TOP30,聚焦城市“中高端”住宅产品开发,以天系、锦系享誉全国。于成都龙泉,皇冠湖壹号、锦粼府、锦粼云境、长粼府,以高阶产品力赢得市场的高度认可。

【成都湖居4.0时代】湖居4.0时代,领演成都国际生活东安湖,世界大运会举办地,执掌成渝双城经济圈主轴代表成都对话世界,启幕成都高端湖居新时代;目前驿马河公园以西,桃都大道以北,东安湖以南的中央居住区,可供居住的土地全部出让完毕,作为区域罕有的2.0低密纯住宅地块,天屹更显臻稀。
【核心首熟区】东安湖中央居住区,核心首熟区
【商业】约500米龙湖东安天街,约600米新城吾悦广场,约2.5公里万达广场,尽享湖芯醇熟生活圈
【交通】依靠蜀都大道/驿都大道/桃都大道等四横三纵道路网,通达全城;距地铁2号线书房站约800米,远期规划有11、22、25号线
【教育】比邻向阳桥幼儿园/小学/中学、经开区实验中学(教科院领办)、成都市实验小学(和雅校区)、成都市实验小学(和雅校区、乐雅校区)等全龄优质教育资源,板块内更有四川师范大学成龙校区、四川财经职业学院等高等学府
【医疗】半径为4公里范围内,汇集有四川大学华西医院龙泉医院(距项目约1.6km)、成都中医药大学附属医院龙泉医院(距项目约3.5km)、龙泉驿妇幼保健院(距项目约2km)、四川省第三人民医院(距项目约3.9km)等三甲医院
【公园】近邻东安湖公园、驿马河公园、龙泉山城市森林公园,构建优质生活圈

【实力品质,低密纯居】2.0低密纯居,新希望地产实力品质保障天屹2.0低容积率,居住舒适度更高,全T2板楼设计,更低公摊,更高性价比,围合式布局,更阔楼间距,更大户型面宽,洋房/小高产品后期流通性更巧;新希望地产精耕成都26载,在城东打造D10天府、锦粼府等高端代表作,引领城东生活迭新;龙泉驿区的锦粼府和皇冠湖1号小区二手房价格更是领衔区域。
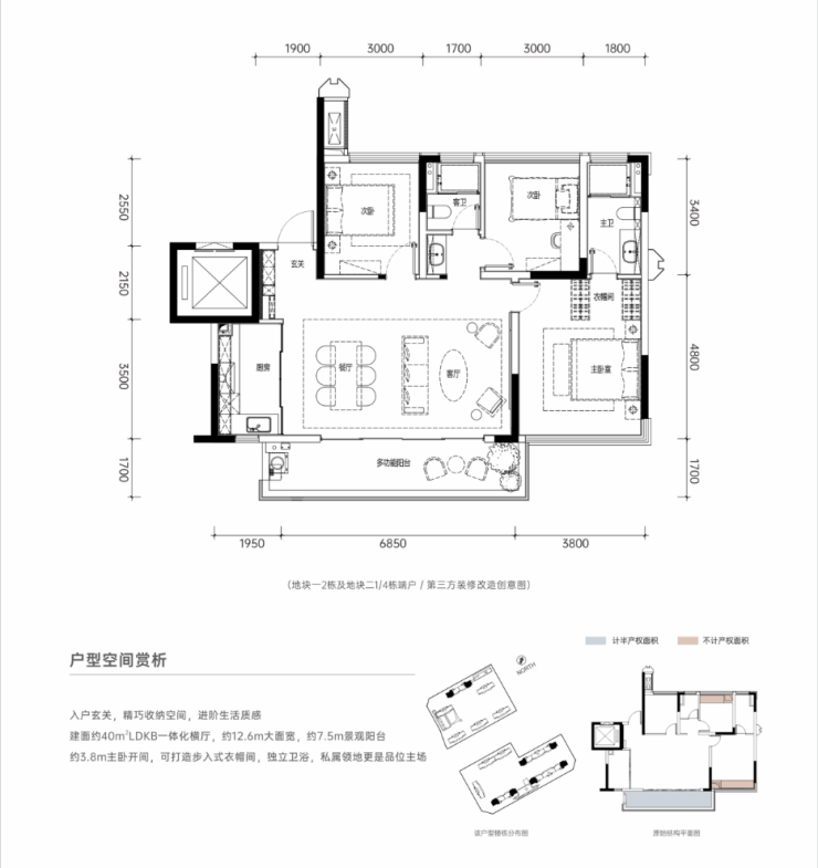
【极质116㎡】横厅三房两厅双卫目前片区唯一在售120㎡以下洋房产品,超高使用率,婚房最佳选择,全盘仅198套;

A户型 |116 ㎡三房两厅两卫亮点:1.约12.6m大面宽,全南北朝向2.约44㎡LDKG一体化横厅3.约6.85m南向景观阳台4.约3.8m主卧开间,步入式衣帽间
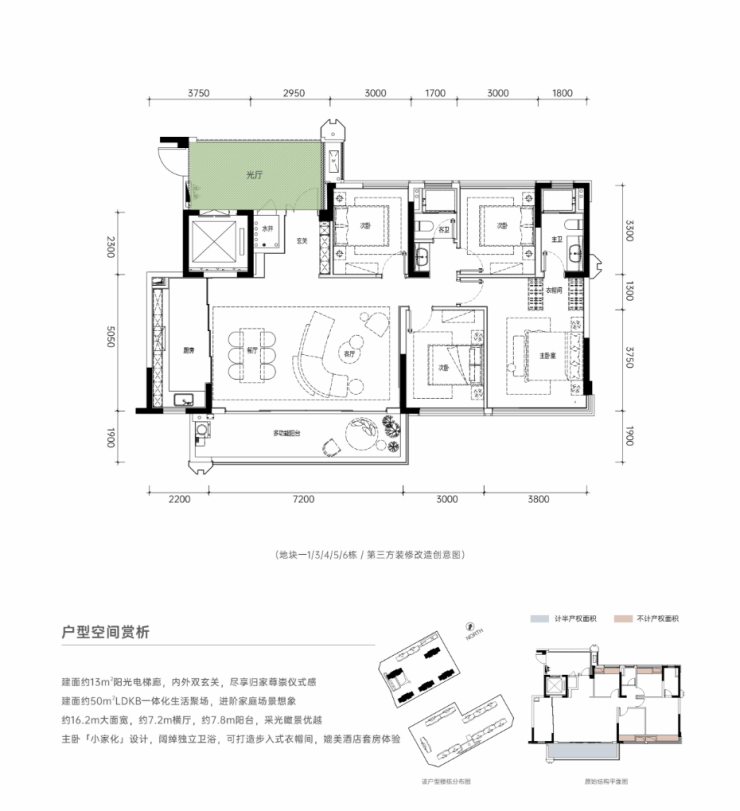
【越级143㎡】四房两厅双卫区域最大面宽143㎡产品,光厅入户带梯控,比肩一线豪宅,邻一线河景(部分房源),区域改善首选

B户型 |143㎡四房两厅两卫亮点:1.全明入户光厅带梯控,比肩一线豪宅2.约16.2m大面宽,四开间朝南3.约7.2m超大横厅+阳台4.约27㎡豪华套房主卧,步入式衣帽间


东安新城,为什么选择经开新希望天屹?
看位置:东安新城是整个龙泉最新、规划最科学、发展最迅速、城市界面最好的核心地段看配套:项目位于东安新城“中心”,15分钟范围内,商场、学校、地铁口、医院、文化、体育、娱乐配套齐全
为什么买天屹:
做别人没有的围合式大中庭花园:项目分立河流两侧,景观生态资源优质,低建筑密度,突破传统的阵列式布局,打造片区独有的超大中庭花园。内外双园出门皆是绿意。
做别人的没有的会所:不做架空层会所,而是真正的星级下沉式会所,涵盖健身房、书吧。。。

做别人没有的产品:只有洋房,没有高层,纯住宅不做商住混合;可以住洋房何必住高层
做别人没有的户型:区域最低门槛的板式套三洋房,片区没有,只有天屹有。区域唯一带梯控的光厅入户花园,天屹真改善。

声明:本文由入驻焦点开放平台的作者撰写,除焦点官方账号外,观点仅代表作者本人,不代表焦点立场。
