成都「爱家春和凤鸣」楼盘资料-房价-户型图-优惠-交通-预约看房
扫描到手机,新闻随时看
扫一扫,用手机看文章
更加方便分享给朋友
爱家春和凤鸣【营销中心】:028-84385818(预约看房)
【置业顾问】:18613205563(微信同步)
温馨提示:专业一对一热情服务,为了节约您的等待时间,看房请提前致电预约!!!
成都公积金利率下调啦。5月7日央行官宣:自2025年5月8日起下调个人住房公积金贷款利率0.25个百分点。
5年以下(含5年)和5年以上,首套个人住房公积金贷款利率分别调整为2.1%和2.6%、5年以下(含5年)和5年以上
第二套个人住房公积金贷款利率分别调整为不低于2.525%和3.075%。
需要注意的是以上仅针对新增贷款,对于已发放公积金贷款的存量房贷利率用户将在次年1月1日自动同步到最新利率与此同时。
央行行长还宣布降准0.5个百分点,向市场提供长期流动性约1万亿元并降低政策利率0.1个百分点。换而言之,5月份的LPR大概率也会降!这样一来,买房人的上车成本以及房东的二手房持有成本都更低了可大大缓解大家的经济压力,利好翻倍。
项目基础信息
项目名称:爱家春和凤鸣
项目位置:成都西.凤溪河地铁口
项目占地:36亩
容积率:2.5
物业费:2.1元/㎡/月
车位比:1:1.44
交房时间:2026年12月
项目产品:纯三房产品,首开1号楼(2个单元68套)2T2小高层17F:116㎡

康和物业品牌成都本土开发商,成立于1997年,秉承专业建筑为基础,打造城市精品住宅为理念,公司已从事地产项目开发、运营、管理近30年。公司所开发项目分为三个阶段和产品系列,包括爱家系列、摩玛系列、缤纷系列,其中摩玛城为西南首个国家节能示范住宅,获得成都市十一五科技发展规划节能环保样板工程、2008年博鳌亚洲论坛生态节能环保大奖“金砖奖”、建设部、财政部“可再生能源建筑应用示范项目”等荣誉;本项目回归爱家产品序列,体现出不忘初心,用心爱建筑、用心爱生活,以家庭为核心创造客户满意的产品和服务。
区域价值项目选址成都西光华新城板块,定位为西成都CBD,致力于发展现代化商贸、文化创意和总部经济等产业,并配套高端生态人居,结合成都市政府提出的“青羊向西,温江向东”的发展模式,青羊新城要带动青羊区和温江区的联动,因此,从某种意义上来说,光华新城将代表温江出征,与青羊新城无缝衔接,承接青羊新城规划红利,夯实大城西未来发展的坚实基础。
项目配套价值
1、地铁双线•下楼即至,步行友好的高效生活配套步行即至的凤溪河地铁站,享受地铁4号线、19号线双线(距离300米)。
2、三轴一高快捷路网,高效出行•无界全城邻凤溪大道,光华8线,光华大道,和成温邛高速联通,全城皆能快速直抵。
3、光华活力核芯•繁华俱揽,同频一线商业能级让逛街购物也能成为下班途中的顺道之旅。楼下就是大润发,闲逛之间就已到家。繁华近享新光天地,合生汇,伊藤洋华堂,永辉超市等,每天逛得不重样,生活时刻保鲜。
4、一河三公园自然滋养,静赏时光漫步茶余饭后的散步间,即抵杨柳河生态走廊,清风拂面,静享怡然。周边光华公园,凤栖湖中央公园,温江公园环伺,让生活回归自然。
5、书香诗礼•优质学府领衔,让成长天生与众不同川师温江附属学校,东一杨柳河小学,嘉祥外国语学校等,雄厚的师资配置,开启孩子们智慧的大门。西南财经大学,成都师范学院等大学高校,营造浓郁的诗书氛围,让孩子们更主动的去享受知识。
6、安心守护•健康陪伴,给予家人更好的医靠温江区中医院,成都市第五人民医院等,为健康生活守护。

项目内部价值1、精粹传承•底蕴承载,塑造高标迎宾的归家仪式以现代现代石材结合金属线条,约8.5米挑高星级门厅,营造气势恢宏的尊崇门礼,归家的第一道风景线。

一轴一心四园•多维场景,自然美学的生活艺术百米中轴长廊,拓宽阔尺视野,延展南北景观空间。核心景观点以镂空金属屏风与现代艺术廊架为主体,高定精雕业主私属的中央会客厅,构建舒适放松的社交场景。

一环三区•活力焕醒,让健康成为生活的坚守约260米环形跑道,大自然里的健身房。康体运动区、全龄健身生活区、架空层活力馆,以及儿童云端滑梯与运动墙,更具活力的社区场景,打造楼下五分钟活动空间,为亲子家庭提供互动娱乐的交流场景。

镜面美学•城市封面,高端建筑质感大面宽Low-E玻璃,构建公建化外立面,镜面美学与品质石材相得益彰,筑就高品质感的建筑美学。

鎏金奢感•尊崇归家,双重星级入户首层空间与地下室均打造奢华体验的星级入户大堂,让业主从归家的那一刻起,便尽享尊荣。

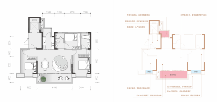
户型鉴赏B1:约116㎡三室两厅双卫(清水)电梯独立入户、纯板式结构、南北通透、得房率高

•2T2户,私享电梯厅,面积7.5㎡左右,具有简单的储物和收纳功能
•客厅横厅设计,全南向6.4米的开间,外接约10㎡的景观阳台,约40㎡的客餐区的空间
•厨房H型设计,烹煮区与备菜区独立设置,外接生活阳台,让衣物独享阳光
•经典三房,舒适尺度,优雅天成
爱家春和凤鸣【营销中心】:028-84385818(预约看房)
【置业顾问】:18613205563(微信同步)
温馨提示:专业一对一热情服务,为了节约您的等待时间,看房请提前致电预约!!!
免责声明:
以上内容仅作为邀约邀请,涉及的图片为部分区域实拍图和美学畅想图,具体内容请以现场公示和合同约定为准;本文部分资料、部分图片来源于网络,如有侵权请联系我们删除。
声明:本文由入驻焦点开放平台的作者撰写,除焦点官方账号外,观点仅代表作者本人,不代表焦点立场。
