成都中海云缦源境怎么样丨中海云缦源境值得买吗丨房价资深顾问揭秘现房销售丨-交通-优劣势-位置-未来发展-小区解售楼热线丨项目情况丨户型图
扫描到手机,新闻随时看
扫一扫,用手机看文章
更加方便分享给朋友
· 购房补贴:A类人才首套房补贴120万元(原标准80万),B类人才提至60万元;
· 免租住房:重点产业链企业引进人才,可申请60-120㎡人才公寓免租3年;
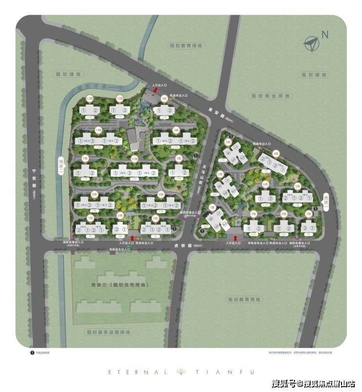
基础信息
总占地:93亩(1、2、3号地块)
总户数:871户
面积区间:100-103-112-132
首开:1地块2.4号楼、2地块1.2号楼
楼层:7-17层
梯户比:1T2、2T2、2T4
绿化率:35%
容积率:2.0
交付时间:预计25年底
装修标准:2950元
物业:中海物业(物业费:待定)
项目优势
坐享天府CBD&天府中央法务区双重区域优势
约八百米直达CBD,双TOD(在建)交汇
优渥配套资源,盛丰品质生活
创新主题景观,超万方体量园林规划
三进水院,享繁隐诚心的山水画卷
优创总平布局,悦享更多风光与景致
建面约100-132㎡公园艺境臻宅,首发成都

【区域优势】
天府总部商务区 天府新区核心引擎
总部经济核心引领,会展经济、法律服务为重要带动,建设面向世界的中央商务区
天府中央法务区 压轴天府心
2023年《四川天府新区直管区国土空间总体规划(2021-2035年)》草案中,明确天府总部商务区扩容,天府中央法务区作为CBD扩容第一站,成为与CBD关系更紧密、规划能级更高的留白之地
世界一流法商融合产业示范区
全国首个省级层面主导建设的现代法务聚集区
优享CBD&法务区双重地利优势
中海云缦源境坐拥双区高能级配套,精粹生活圈,麓湖公园区-中央法务区-天府CBD聚合式铁三角,更有国际会议中心、中国西部国际博览城等世界级文化交流配套,大悦城等高阶商业配套,匹配您的丰盛生活。
【项目配套】

【立体交通】——双TOD,便捷出行快联全城市
双TOD:青岛路(预计2025年建成)、昌公堰TOD(建设中)双活力组团
双地铁:地铁6号线、26号线(规划中)双地铁出行
四横:麓山大道、沈阳路、青岛路、武汉路
四纵:天府大道、梓州大道、夔州大道、蓉遵高速
全维立体交通,上班通勤、旅游购物、多彩生活一站尽享
【生态绿境】——出门即享城市绿肺,进则繁华退则隐逸
地处约863亩法务岛绿廊(规划中),出门即享城市生态大境。
其中天府前湾将以粉色系为主,布局200亩樱花特色园、60亩海棠特色园;天府左岸以红黄色系为主,40亩银杏特色园、25亩枫林特色园、3公里水杉漫步道;天府右岸以绿色为主,茉莉园、栀子花园、迷迭香园。绿肺环伺,实现真正的公园城市生活
(数据来源于天府中央法务区官方公众号)

【高阶商业】——直揽CBD高阶商业群,繁华正心丰盛人生
天府大悦城、天府和悦广场、麓湖水镇、麓湖伊藤店(在建中),满足大型购物及居家消费需求,享受便捷生活。
【健康医疗】——优享众多优质医疗,护航健康人生
近享四川省第二人民医院、四川天府新区人民医院(在建中)、四川大学华西天府医院等健康医疗
【全龄优教】——天新优质教育资源,助力孩子创智成长
香山k12教育组团、成都市实验外国语学校、天府三中、麓山国际光亚学校等0-18岁全系教育资源丰富。(入学以当地教育主管部门安排为准,开发商及中介机构未做任何承诺)
【项目规划】
四大越级规划 领序天府生活新境
越级园林 创新三境九集十二悦事主题景观
超万方景观体量,繁隐公园尘林间
山河游/大屋檐/万悦集,三进水院,享山水画境长卷
越级规划 中海创新总平新境界
楼栋错位布局,形成独特的“视野通廊”,悦享更多的风光与景致
越级造诣 常青藤生长形态建筑立面
玻璃立面搭配流体曲线,全新建筑天际线
超尺度门楼,东方美学的酒店式门厅礼序,贵宾式归家气场
独栋归家庭院,移步异景,墅级生活享受
越级居住 跃阶洋房品质感
【户型盘点】
A户型 建面约100㎡三室两厅两卫
通透双阳台,生活处处向阳
H型厨房,享约4.2米面宽尺度
LDKG格局,阳台/横厅/厨房/餐厅无缝连接
约6米阔尺横厅,家庭社交第一聚厅
B1/B2户型 建面约100㎡三室两厅两卫
礼制玄关,从容归家,隔绝外界干扰
约6米阔尺横厅,直连宽境阳台,尽享阳光偏爱
通透双阳台,兼得诗意与生活
套房主卧,配备阳光飘窗与独立卫浴,私属品质生活
C户型 建面约103㎡三室两厅两卫
L型玄关,转角设计,巧妙利用空间折叠理念
通透双阳台,一面生活一面诗意
LDKG格局,客厅、餐厅、厨房、阳台一线贯通
套房主卧,带独立卫浴与飘窗,舒适尊崇休憩空间
D户型 建面约112㎡三室两厅两卫
约6.8m奢阔横厅开间,开放式家庭核芯区,大尺度互动空间
行政套房,独立卫浴与双排步入式衣帽间
独立电梯到户,享阔尺阳光前厅
礼制玄关宽敞空间,兼得礼制与收纳E户型 建面约132㎡四室两厅两卫
雅致方厅,可幻变出独立书房/瑜伽室/儿童天地
四开间大采光面,极致居住体验,生活从此向阳而生
独立电梯到户享阔尺阳光前厅
通透双阳台,观景阳台+生活阳台
E户型 建面约132㎡四室两厅两卫
雅致方厅,可幻变出独立书房/瑜伽室/儿童天地
四开间大采光面,极致居住体验,生活从此向阳而生
独立电梯到户享阔尺阳光前厅
通透双阳台,观景阳台+生活阳台
声明:本文由入驻焦点开放平台的作者撰写,除焦点官方账号外,观点仅代表作者本人,不代表焦点立场。
