成都新盘【华润上璟润府】房价-优惠|交通|学校|配套详情-销售部电话
扫描到手机,新闻随时看
扫一扫,用手机看文章
更加方便分享给朋友
华润上璟润府【营销中心】:028-84385818(预约看房)
【置业顾问】:18613205563(微信同步)
温馨提示:专业一对一热情服务,为了节约您的等待时间,看房请提前致电预约!!!
四川住宅新规落地!
要求:
住区应保障义务教育资源的衔接,15分钟生活圈范围内应有初中,5-10 分钟生活圈范围内应有小学、幼儿园的教育设施配置。
住区 15分钟生活圈内应至少有1处社区级医疗机构,宜靠近大型医院。
宜尽新建住区配套公共绿地,应可能临近公园、广场、绿地等区域,实现居民出行300m见绿、500 m见园。
住区用地容积率不应大于 3.0,不宜大于 2.8。
与此同时,住区建筑高度应与消防救援能力相匹配,城镇新建住宅高度不应大于 80m,县城新建住宅最高不宜超过18层。
住宅层高不应低于 3.00m,设有中央空调和集中新风系统或地暖的住宅,层高不宜低于 3.10m。
每套住宅应至少有一个居住空间能获得冬季日照,套型内居室数量不少于4个时,宜有不少于2个居住空间满足日照标准的要求。
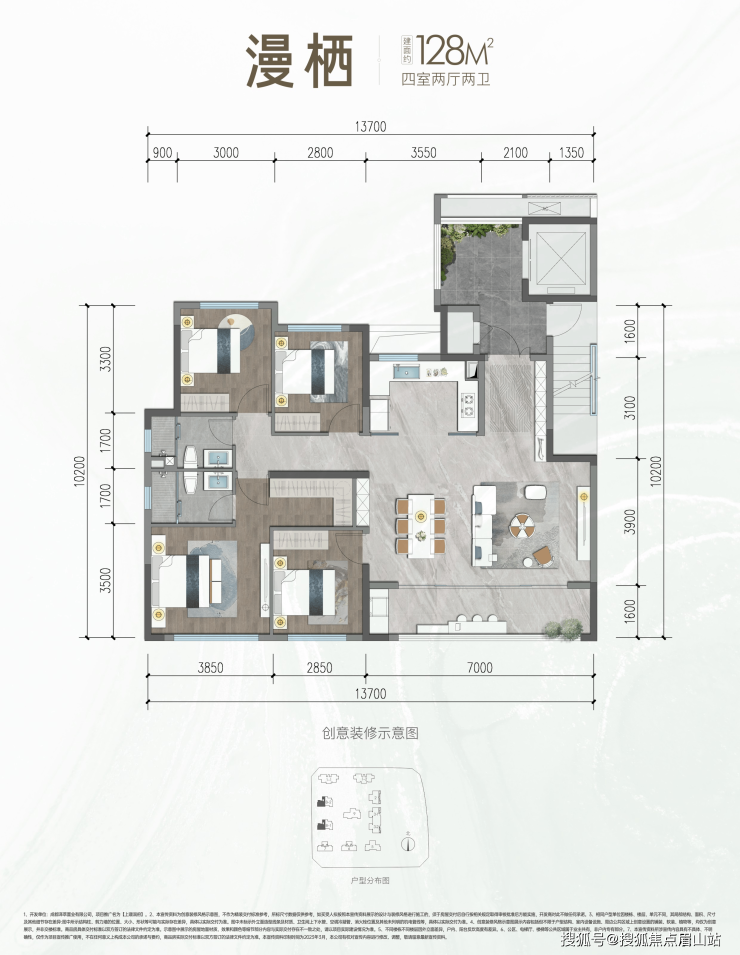
项目基本信息: 占 地:约173亩,容 积 率:约1.88,产品类别:小高层、叠拼,建面约116/128/143㎡低密舒居,建面约172㎡全景舱大平层,建面约206-218㎡公园叠墅,绿化率:30%,装修:精装(小高层)、精装(叠拼),总户数:1470户(小高层/户,叠拼/户),总栋数:6期共8栋,总高:小高层17F、叠拼(上中下叠6层),层高:小高层3米、叠拼3米,物 业:华润物业,梯户比:1T2户,交房时间:2025年12月31日

组团本身,6#占地约31亩,容积率仅1.88,共规划10栋住宅,包含8栋2梯2户的16-17F板式小高层,建面约116-172㎡,以及2栋6F叠拼,建面约206-218㎡,基本实现了改善全覆盖!
华润置地上璟润府效果图
并且,两栋叠拼东西向,户户看公园,开门见园、推窗见绿;其余小高层均为全南北向、独栋独单元,既纯粹又保证了舒适度!
华润置地上璟润府效果图
同时,6#采用的是超大双中庭半围合式布局,南北楼栋尽可能错开,最大楼间距超百米,既保证所有楼栋公园视野最大化,又能兼顾中庭采光,景观、朝向二者兼得!
华润置地上璟润府小高层视野效果图
【户型鉴赏】









华润上璟润府【营销中心】:028-84385818(预约看房)
【置业顾问】:18613205563(微信同步)
温馨提示:专业一对一热情服务,为了节约您的等待时间,看房请提前致电预约!!!
免责声明:
以上内容仅作为邀约邀请,涉及的图片为部分区域实拍图和美学畅想图,具体内容请以现场公示和合同约定为准;本文部分资料、部分图片来源于网络,如有侵权请联系我们删除。
声明:本文由入驻焦点开放平台的作者撰写,除焦点官方账号外,观点仅代表作者本人,不代表焦点立场。
