越秀曦悦府值不值得入手-越秀曦悦府售楼电话-在售户型-最新价格
扫描到手机,新闻随时看
扫一扫,用手机看文章
更加方便分享给朋友
越秀曦悦府【营销中心】:028-84385818(预约看房)
【置业顾问】:18613205563(微信同步)
【基础信息】占地面积:82亩,总楼栋数:21栋,总户数:1141,容积率:2.5楼层(精装高层26F,清水洋房/小高11F/18F),梯户比:高层2T4,洋房/小高2T2,交房时间:24年底/25年中旬,在售产品:精装高层108-118平25F,洋房131㎡11F(清水),板式平层136平18F(清水)(总价约250-330万),精装108户型 惠后250-260万,精装118户型 惠后280-290万,清水136户型 惠后305-310万,清水131户型 惠后315-330万


经过9年的开发,数百亿的资本垫基底,怡心湖的建设成果初现。
占地约398亩蔚蓝湖滨城的产业规划设计是美国WATG,这家世界知名设计公司,以全球化眼光,为怡心湖规划出独一无二更为开放和复合的艺术城市空间。环绕怡心湖,建筑体量约120万平米。规划涵盖湖滨商业、蔚蓝湖滨1号、阿丽拉Alila酒店、凯悦尚萃Hyatt Centric酒店、湖滨艺术中心等丰富业态。创智科技产业园2号地块,由空港置业牵头,规划引进大型商购中心,目前正积极接洽包括万达、华润、银泰、合生、伊藤等商业公司。
越秀曦悦府一街之隔的总占地面积约460亩,电子科大科技园(天府园),规划建筑面积约60万平方米,总投资约40亿元。目前园区已注册企业170余家入驻企业约80家,引进人才约3300人,瞪羚企业2家、规上企业17家专精特新企业2家、42家高企。

越秀曦悦府总占地约82亩,位于天府怡心湖A区。项目首批次推出8~11层的真洋房,清水交付,本批次仅主推一个户型130㎡套四双卫,其中的某一单套的起始价格仅268万元!
这些数据其实就汇成了三个字:绝绝子,用一个字说,就是“香”。因为怡心湖核心居住区目前没有纯洋房供应,除了越秀曦悦府。
【项目总平图】

【户型鉴赏】
丨建面约108㎡ 精致舒居三房丨💥入户玄关设计,归家仪式感💥6.7米宽景阳台,尺度感强💥约21平米星级酒店主卧套房💥L型独立厨房+独立生活阳台

丨建面约118㎡ 极致功能四房丨💥6.6米超宽横厅设计,空间利用率高💥约36平米超宽式社交会客厅💥大尺度飘窗设计,主卧套房设计💥U型独立厨房生活主张

丨建面131㎡湖居洋房丨💥约7.5m超宽屏环幕大阳台💥超宽廊双重玄关空间💥约35㎡超宽式社交会客厅💥超宽幕卧室观景设计💥超宽适厨房生活主张

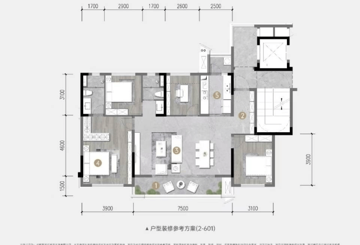
丨建面136㎡独立入户大平层丨💥约7.2m超宽屏环幕大阳台💥超宽廊双重玄关空间💥约35㎡超宽式社交会客厅💥豪宅级酒店式主卧 L型衣帽间💥超宽适厨房生活主张

越秀曦悦府【营销中心】:028-84385818(预约看房)
【置业顾问】:18613205563(微信同步)
温馨提示:专业一对一热情服务,为了节约您的等待时间,看房请提前致电预约!!!
免责声明:
以上内容仅作为邀约邀请,涉及的图片为部分区域实拍图和美学畅想图,具体内容请以现场公示和合同约定为准;本文部分资料、部分图片来源于网络,如有侵权请联系我们删除。
声明:本文由入驻焦点开放平台的作者撰写,除焦点官方账号外,观点仅代表作者本人,不代表焦点立场。
