东安湖壹号单价是多少-楼盘详情-销售部电话-东安湖壹号欢迎咨询
扫描到手机,新闻随时看
扫一扫,用手机看文章
更加方便分享给朋友
东安湖壹号【营销中心】:028-84385818(预约看房)
【置业顾问】:18613205563(微信同步)
目前首套房最新商贷执行利率为LPR-60BP,已经来到了历史最低!
与此同时,还有好消息:
据专家分析,今年LPR的降息空间,高达40~60BP,并且公积金也有下调预期,房贷利率“2.5时代”真的快了?
除了已经公布的4月LPR,后续房贷利率总的来看,还有两点值得期待:
一、公积金贷款利率下降,预计下调80BP
3月16日,中办、国办印发了《提振消费专项行动方案》,针对公积金优化政策专门提到:
适时降低住房公积金贷款利率;
扩大公积金使用范围,允许提取公积金支付购房首付款并同时申请公积金贷款;
加大对租房提取的支持力度,推进灵活就业人员缴存试点,扩大覆盖人群。

成都恒邦天府东安湖壹号项目以180M摩天地标屹立东安湖畔,由SCDA曾仕乾亲自操刀,携手全球顶尖设计团队,打造成都地标新封面,搭载了万豪酒店集团旗下高级系列——万豪酒店,城市标杆住宅以及顶级商业、高端公寓等,成就了标志性高端综合建筑群,开启属于成都的国际场域典范生活。

三年磨一剑的“现象级”顶豪项目——恒邦天府·东安湖1号。
之所以东安湖1号备受关注,东进通梳理了以下十点理由作为参考(不作为投资置业建议):
理由一:在金融城、攀成钢、天西、三圣乡等传统豪宅板块之外,是二圈层少有的顶流住宅,永远不要低估东安湖对顶豪产品的追求。
理由二:国际大师级团队的著作级作品,东安湖1号由新加坡SCDA曾仕乾、新加坡HBA潘佩思、香港TCDL机构陈建中分别主持项目的建筑和景观设计、酒店室内设计、室内精装设计,仅设计费就花了5000万。

理由三:择址超5000亩东安湖畔、及西拓区东安溪谷产业公园(规划中)旁,能够同时拥有东安湖一线临湖视野、俯瞰数公里生态绿廊的独一份项目。
理由四:要颜值有颜值,要才华有才华的地标性顶豪项目。从金属铝板+大面积的玻璃幕墙,甚至连山墙都做了蜂窝铝板;到金属网幕墙遮蔽核心筒,建筑顶部高约10米的玻璃幕墙塔冠……在建筑立面、硬件配置上在顶豪圈里都算佼佼者。

理由五:园林设计上采用简约、宁静的酒店度假风,世纪白金石材景墙、镜面水景、石材拼接工艺等,以及公区上将健身、儿童活动、茶室、会客功能模块设置在架空层,并做到了市场上少有的架空层配置空调等增配项。
理由六:180m高万豪酒店配套的加持,未来依托酒店将为业主提供高配的软性服务价值和生活方式。

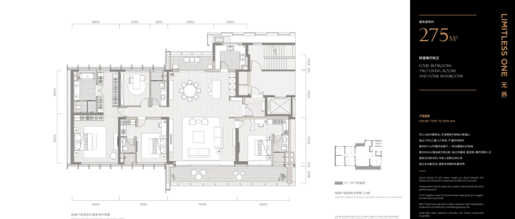
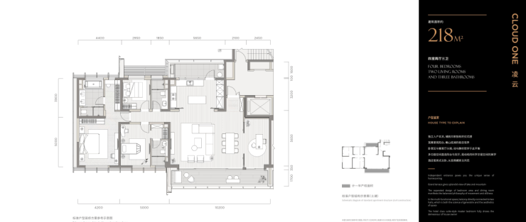
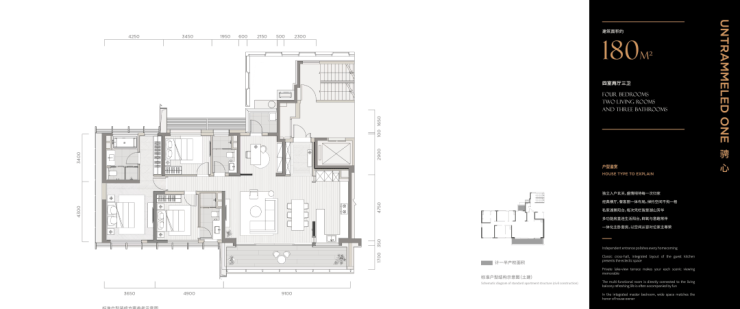
理由七:东安湖1号占地面积154亩,容积率2.0,其中项目一期主力户型大胆以181平起步,设计了建面约181㎡、217㎡、276㎡三款户型,区域罕有的高公区、大面宽、大阳台等定位豪改的产品线。
理由八:虽然东安湖1号装标限价2999元/㎡,但除了三大件、厨卫设备、客厅背景墙装饰之外,主卧定制柜体、中岛岛台、贝洛克系统门窗、卧室上悬开启窗、超长线性阳台地漏等增配项,可以称得上业界良心。

理由九:项目首开即以准现房状态发售,从对外的东安湖实景视野,到项目自身建筑外立面、实景示范区、实景样板间、实景交付标准,眼前所见的,即理想中的家。
理由十:首批次取证房源共计156套,单价为17480—23900元/㎡(部分带装标2999元/㎡,数据来源成都购房通),低于此前市场预期价格,也远低于三圣乡片区普遍3—3.4万W+的价格,或是深改客群低成本买入成都东安湖顶豪项目的一次机会。


【户型鉴赏】






东安湖壹号【营销中心】:028-84385818(预约看房)
【置业顾问】:18613205563(微信同步)
温馨提示:专业一对一热情服务,为了节约您的等待时间,看房请提前致电预约!!!
免责声明:
以上内容仅作为邀约邀请,涉及的图片为部分区域实拍图和美学畅想图,具体内容请以现场公示和合同约定为准;本文部分资料、部分图片来源于网络,如有侵权请联系我们删除。
声明:本文由入驻焦点开放平台的作者撰写,除焦点官方账号外,观点仅代表作者本人,不代表焦点立场。
