成都尊邸楼盘详情 尊邸售楼中心 好房子:现房销售丨售楼热线丨项目情况丨户型图位置-未来发展
扫描到手机,新闻随时看
扫一扫,用手机看文章
更加方便分享给朋友
4001816261
本次现房推售范围
推售楼栋:5号楼、6号楼
产品类型:高层、顶跃
装修情况:清水
交房时间:2022年6月30日至7月4日
占地面积:18.85亩
容积率:4.0
车位比:1:1.625
层高:3米
产权年限:70年
梯户比: 2梯4户
总高: 27层
物业费:3.6元/平/月
(成都时代物业管理有限公司)
公摊:20%
绿地率:30%
✅5号楼 【平层+顶跃】共计104套,其中平层100套,顶跃4套,层高3米,2梯4户,共28层,平层套三双卫户型101、112平米;顶跃4套,150m²、151m²;
商业配套1.凯德天府(约800M)高新区地标建筑
2.泛悦MALL(约600M)
3.王府井(科华店)约1500M
4.苏宁广场(约1500M)
学校按2022年入学划片(信息取自天府市民云)小学:成都市科华中路小学
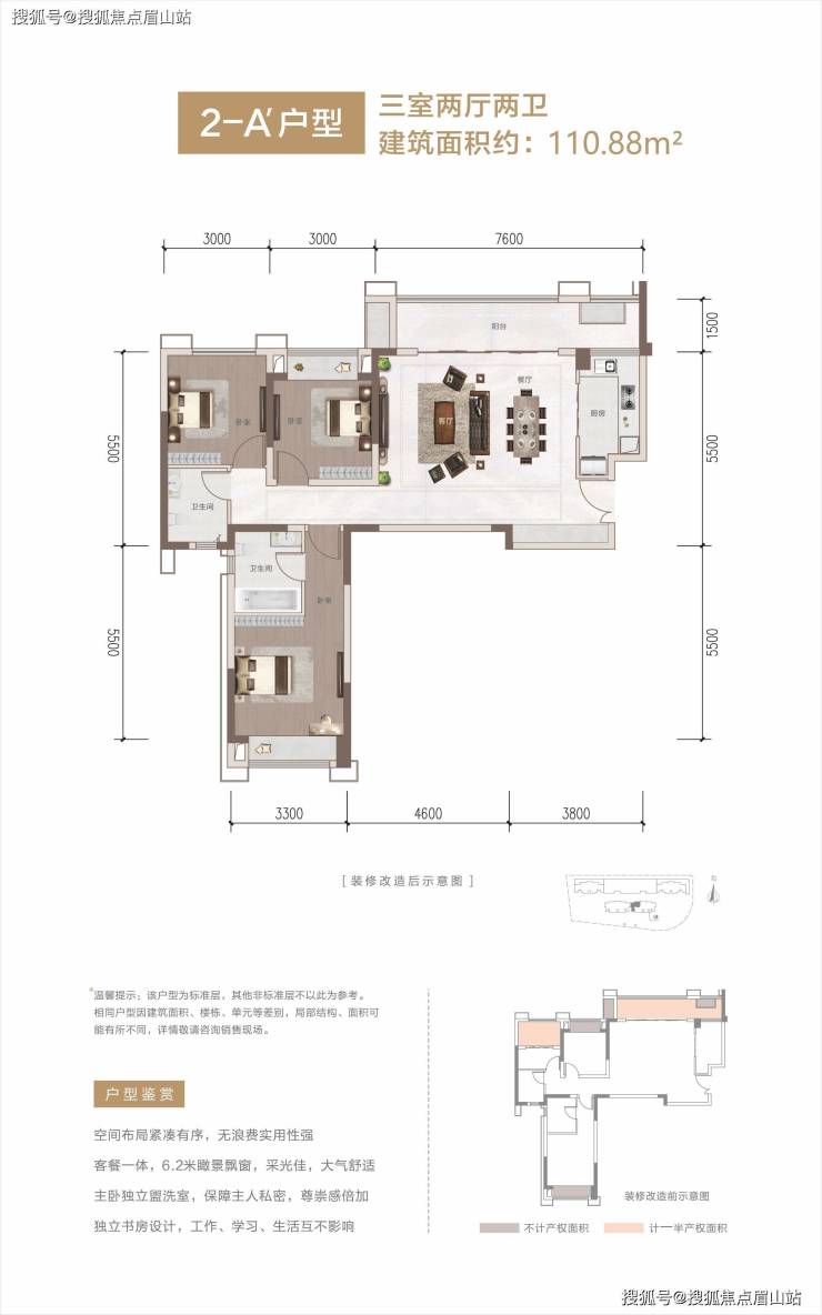
户型图赏析
【101.31m²,套三双卫】
【110.88m²,套三双卫】
【112.15m²,套三双卫】
实景现房赏析
区域位置图
声明:本文由入驻焦点开放平台的作者撰写,除焦点官方账号外,观点仅代表作者本人,不代表焦点立场。
