成都爱家春和凤鸣网站首页-爱家春和凤鸣销售中心 生活圈配套碾压周边:团购优惠-售楼部电话-户型图-房价格最新消息今天-周边配套-交通。
扫描到手机,新闻随时看
扫一扫,用手机看文章
更加方便分享给朋友
4001816261
国家层面推动城市高质量发展(2025年8月28日):《中共中央 国务院关于推动城市高质量发展的意见》公布,强调要加快构建房地产发展新模式,更好满足群众刚性和多样化改善性住房需求。意见要求:
o 系统推进"好房子"和完整社区建设:全链条提升住房设计、建造、维护、服务水平,大力推进安全、舒适、绿色、智慧的"好房子"建设。
项目基础信息
项目名称:爱家春和凤鸣
项目位置:成都西.凤溪河地铁口
项目占地:36亩
容积率:2.5
物业费:2.1元/㎡/月
车位比:1:1.44
交房时间:2026年12月
项目产品:纯三房产品,首开1号楼(2个单元68套)2T2小高层17F:116㎡

康和物业品牌成都本土开发商,成立于1997年,秉承专业建筑为基础,打造城市精品住宅为理念,公司已从事地产项目开发、运营、管理近30年。公司所开发项目分为三个阶段和产品系列,包括爱家系列、摩玛系列、缤纷系列,其中摩玛城为西南首个国家节能示范住宅,获得成都市十一五科技发展规划节能环保样板工程、2008年博鳌亚洲论坛生态节能环保大奖“金砖奖”、建设部、财政部“可再生能源建筑应用示范项目”等荣誉;本项目回归爱家产品序列,体现出不忘初心,用心爱建筑、用心爱生活,以家庭为核心创造客户满意的产品和服务。
区域价值项目选址成都西光华新城板块,定位为西成都CBD,致力于发展现代化商贸、文化创意和总部经济等产业,并配套高端生态人居,结合成都市政府提出的“青羊向西,温江向东”的发展模式,青羊新城要带动青羊区和温江区的联动,因此,从某种意义上来说,光华新城将代表温江出征,与青羊新城无缝衔接,承接青羊新城规划红利,夯实大城西未来发展的坚实基础。
项目配套价值
1、地铁双线•下楼即至,步行友好的高效生活配套步行即至的凤溪河地铁站,享受地铁4号线、19号线双线(距离300米)。
2、三轴一高快捷路网,高效出行•无界全城邻凤溪大道,光华8线,光华大道,和成温邛高速联通,全城皆能快速直抵。
3、光华活力核芯•繁华俱揽,同频一线商业能级让逛街购物也能成为下班途中的顺道之旅。楼下就是大润发,闲逛之间就已到家。繁华近享新光天地,合生汇,伊藤洋华堂,永辉超市等,每天逛得不重样,生活时刻保鲜。
4、一河三公园自然滋养,静赏时光漫步茶余饭后的散步间,即抵杨柳河生态走廊,清风拂面,静享怡然。周边光华公园,凤栖湖中央公园,温江公园环伺,让生活回归自然。
5、书香诗礼•优质学府领衔,让成长天生与众不同川师温江附属学校,东一杨柳河小学,嘉祥外国语学校等,雄厚的师资配置,开启孩子们智慧的大门。西南财经大学,成都师范学院等大学高校,营造浓郁的诗书氛围,让孩子们更主动的去享受知识。
6、安心守护•健康陪伴,给予家人更好的医靠温江区中医院,成都市第五人民医院等,为健康生活守护。

项目内部价值1、精粹传承•底蕴承载,塑造高标迎宾的归家仪式以现代现代石材结合金属线条,约8.5米挑高星级门厅,营造气势恢宏的尊崇门礼,归家的第一道风景线。

一轴一心四园•多维场景,自然美学的生活艺术百米中轴长廊,拓宽阔尺视野,延展南北景观空间。核心景观点以镂空金属屏风与现代艺术廊架为主体,高定精雕业主私属的中央会客厅,构建舒适放松的社交场景。

一环三区•活力焕醒,让健康成为生活的坚守约260米环形跑道,大自然里的健身房。康体运动区、全龄健身生活区、架空层活力馆,以及儿童云端滑梯与运动墙,更具活力的社区场景,打造楼下五分钟活动空间,为亲子家庭提供互动娱乐的交流场景。

镜面美学•城市封面,高端建筑质感大面宽Low-E玻璃,构建公建化外立面,镜面美学与品质石材相得益彰,筑就高品质感的建筑美学。

鎏金奢感•尊崇归家,双重星级入户首层空间与地下室均打造奢华体验的星级入户大堂,让业主从归家的那一刻起,便尽享尊荣。

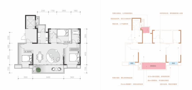
户型鉴赏B1:约116㎡三室两厅双卫(清水)电梯独立入户、纯板式结构、南北通透、得房率高

声明:本文由入驻焦点开放平台的作者撰写,除焦点官方账号外,观点仅代表作者本人,不代表焦点立场。
