成都交子峯萃现房销售丨项目情况丨户型图-未来发展-小区解售楼热线
扫描到手机,新闻随时看
扫一扫,用手机看文章
更加方便分享给朋友
4001816261
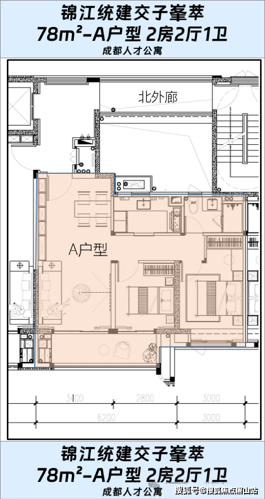
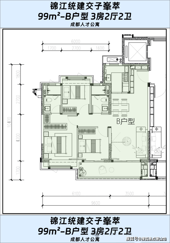
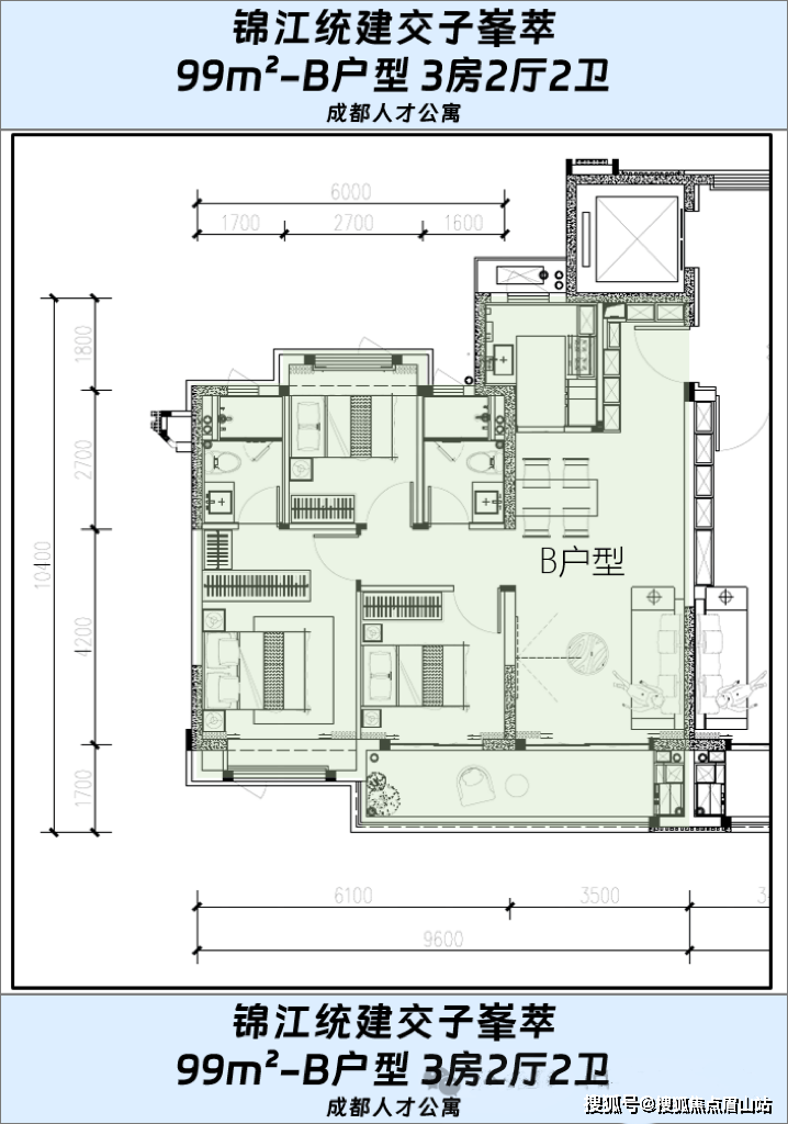
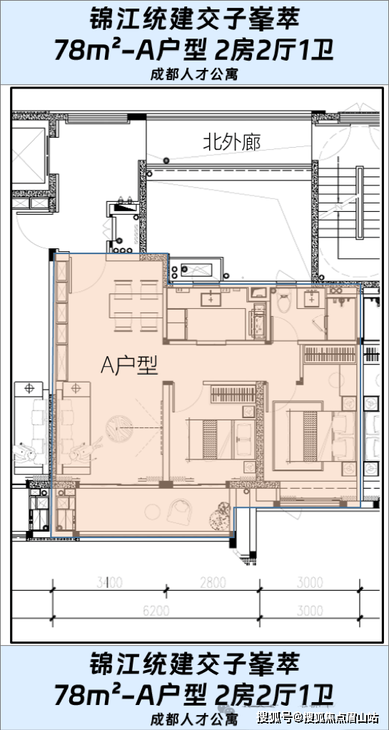
【项目占地】约23.98亩【容积率】约2.0【项目规划】规划8栋建筑,2栋高层,6栋洋房【楼栋规划】2T4低密高层,1T2轻奢洋房【房源套数】300套【产品面积】主力建面约78㎡二室两厅两卫、主力建面约99㎡三室两厅两卫、主力建面约122㎡四室二厅二卫

区域内目前出让的住宅用地清水限价都在3-3.5万元/㎡之间,起步就给予了打造高端住宅足够高的预期,而本案清水限价26300元/㎡,同时是区域唯一在售的人才项目,是最佳的上车机会!抢到即是赚到!
交子峯萃位于成都主城区——锦江区金融城东中央居住区核心位置金融城东CLD地处高新,锦江区的黄金交界地带,是双城发展的桥头堡,因此拥有更高的城市占位和双区资源红利。
拥有三横三纵以及林家坝+金融城东双TOD的立体交通体系,9号线(在建)与20号线(规划)交汇,形成城市轨道交通互通。
名校资源,本案东侧即是成都“五朵金花”之一的盐道街小学和与“四七九”齐名的省重点中学川师附中。
约2.0容积率,1T2洋房,2t4高层舒适规划,打造纯粹新奢产品。
户型鉴赏:



声明:本文由入驻焦点开放平台的作者撰写,除焦点官方账号外,观点仅代表作者本人,不代表焦点立场。
