「点将台79号」预约看房热线-团购优惠-欢迎垂询-点将台79号销售处
扫描到手机,新闻随时看
扫一扫,用手机看文章
更加方便分享给朋友
点将台79号【营销中心】:028-84385818(预约看房)
【置业顾问】:18613205563(微信同步)
温馨提示:专业一对一热情服务,为了节约您的等待时间,看房请提前致电预约!!!
“金三银四”是房地产的传统旺季,在已经过去的3月里,全国不少城市出现了“独立行情”。
聚焦于成都来看,3月二手房总计成交25660套,全国第二;房价环比微涨0.1%。
有没有发现2025年,网上认为成都房价会涨和认为房价会跌的声音,都异常活跃?
前段时间金融城三期土拍地价破四万,以及年初新房、二手房成交量上涨,就有人嚷嚷成都房价要涨。
而这期间,时不时爆出来破发降价成交的二手房,又有人大呼成都房价会跌。
说成都房价会涨的,会降的,都有自己的理由。
在我看来,今年成都楼市,市场没有上涨预期,也没有下跌预期,2025年会是无趋势的一年!
总占地:25亩
物业形态:合院、天际大平层
总户数:424户
交房时间:预计2026年底
物业公司:卓品物业
项目位于成都市区一环内,紧邻太古里,直线约3公里范围内拥抱兰桂坊、九眼桥等城市地标,所在区域更是第一张纸币“交子”的诞生地,历史底蕴深厚。
相传这里,当年曾是诸葛亮的御用点将台,因此这里被取名为“点将台街”,将千年前的历史文化沉淀,浓缩了成一个名字。
1、千亿商圈:全国排名第四的春熙路商圈(数据来源:赢商大数据),太古里、IFS距离项目仅1KM,成都核心商圈,全球LV及Gucci的旗舰店便诞生于此,也是全球销量第一的门店。
2、精神源点:天府广场、成都博物馆、九眼桥、大慈寺、水井坊等传承着成都千百年深厚的积淀。
3、闲适自在:人民公园、望江楼公园等是成都传统闲适生活的代表。
4、日咖夜酒:三公里范围内拥有兰桂坊、九眼桥、339是成都人夜生活的起源地。
5、头部医疗:超20所医疗机构,华西医院、西部战区空军医院等大型综合性三甲医院。
6、优质教育:盐道街小学(东区)、七中育才汇源校区、川师附中、田家炳中学等。
难以取代的城中心位置,占据城市全面资源;汇集设计大师阵容,所造不可复制的地标产品;产品类型涵盖商业合院及平层,商业合院建面涵盖约235-706㎡,平层建面涵盖约128-1100㎡。
成都豪宅市场,正缺少这样的顶豪产品,点将台79号的出现,正弥补了这样的市场空缺!
卓越·点将台79项目汲取区位文化底蕴,打造川西与现代结合演绎的街区式商业、住宅产品。本次首开示范区域景观面积约3700㎡,涉及双层标高体系。
▲示范区规划示意图
项目景观延续建筑设计语言,提取“交子”元素演绎场景符号,打造精奢、定制社交场景。将示范区分为“超级精奢界面”、“时光定格秀场”和“偶像社交会所”三大部分。
项目入口以三片景墙形成超长市政展示面,即能增加项目昭示性也对周边杂乱的市政界面进行了很好的隔离。
▲示范区大门实景图
左右景墙采用极具川西特色的仿古青砖作为空间基底;对景景墙以“交子”做为元素,运用玻璃和金属具有现代质感的材质来打造;在主入口空间营造古今碰撞,古为今用,传袭演绎的设计巧思。
无论室外下沉庭苑的高山流水意境还是室内灯光与装饰的相互辉映光影不仅书写了空间的结构之美,更织就了会馆的隐逸境界。
【特色地标建筑】1、以竹为灵感,芙蓉花为建筑韵态,呈现富有成都特色的地标建筑形象。2、最大约270°转角无柱巨幕视野,全玻璃幕墙系统,畅享稀缺城市景观资源。3、外立面材料采取香槟色铝板+大面积玻璃等,营造薄如纸、亮如灯、静如水的玲珑剔透感。

【酒店式会所】会所内配置有会客厅、咖啡厅、棋牌室、室内泳池、健身中心,满足高端圈层会客、交友等需求。
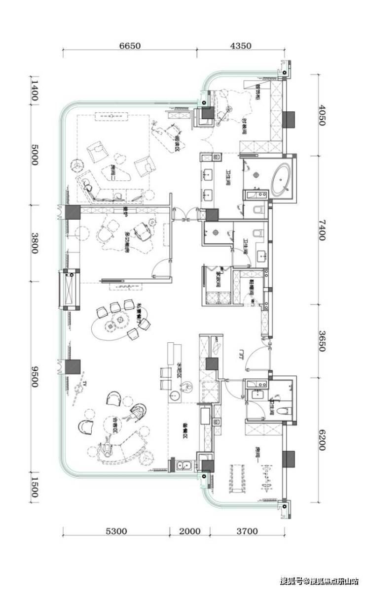
户型鉴赏:

仅22席私人奢定合院,建面约235-706㎡,实际可使用面积约485-1273㎡
点将台79号【营销中心】:028-84385818(预约看房)
【置业顾问】:18613205563(微信同步)
温馨提示:专业一对一热情服务,为了节约您的等待时间,看房请提前致电预约!!!
免责声明:
以上内容仅作为邀约邀请,涉及的图片为部分区域实拍图和美学畅想图,具体内容请以现场公示和合同约定为准;本文部分资料、部分图片来源于网络,如有侵权请联系我们删除。
声明:本文由入驻焦点开放平台的作者撰写,除焦点官方账号外,观点仅代表作者本人,不代表焦点立场。
