(中海湖光玖里)售楼处-房价走势分析-产品介绍-中海湖光玖里户型图
扫描到手机,新闻随时看
扫一扫,用手机看文章
更加方便分享给朋友
中海湖光玖里【营销中心】:028-84385818(预约看房)
【置业顾问】:18613205563(微信同步)
温馨提示:专业一对一热情服务,为了节约您的等待时间,看房请提前致电预约!!!
2025年的成都楼市,已经分化到了极致。
首先是新房和二手房之间的分化,目前新房和二手房成交比例大致是1:2.5,随着供地的减少以及总价的提升,新房的规模还会锐减。
未来的新房,与绝大多数人没有关系。
未来的新房,贵并且也是受欢迎的。
自从新房市场产品迭代之后,和二手房市场实现了价格分层,但到现在,这种价格区分越来越夸张。
然后是新房和新房之间的分化。
同一个地段,一街之隔,相同配套,迭代新房卖3.6万/㎡,未迭代新房2.7万/㎡,差价9千/㎡,10年左右的二手小区则只能卖1.8万/㎡,价差50%!
二手房无限贬值,迭代新房无限哄抢。
成都· 天府新区·麓湖公园区

基础数据
户型面积:
8-11层 102㎡ 1T2 板式套三真洋房
15-17层 129㎡ 2T2 私厅入户多功能套四
15-17层 143㎡ 2T2 私厅入户阔尺舒居套四
总层高:8-17层
总户数: 530户
总栋数: 15栋
占地:约50亩
绿化率:35%
容积率: 2.0
车位比:1:1.4
央企中海 稳健经营 布局全球
源于世界500强中建,43年布局全球90城
源于中建:连续16年世界500强,23年排名第8;
稳健经营:连续7年红线榜绿档,评级引领行业;
市场认可:连续17年销售业绩TOP10

深耕城南 助力成都城市革新
深耕成都24年,打造30多个精品项目,引领居住生活的迭代和升级;
从2000年神仙树的中海名城,到2022年天府“四子”,这一次以跃级品质,再造麓湖品质生活;

赋新麓湖 稀缺的纯改善低密住区
中海洞悉城市发展,布局热点板块引领城市价值
麓湖公园区的社群氛围、圈层纯粹感、城市界面新成为成都改善居住的顶层梦想;中海四年匠筑三子,从观园、麓湖公馆再到湖光玖里,以纯粹低密品质回应奢居向往。
三大高能版块汇集 惟享城市鼎级资源
择址天府新区麓湖公园区、中央法务区、中央商务区黄金三角连接点;
享受麓湖公园区稀缺生态资源,还占据中央商务区顶级的产业配套和城市商业资源,以及中央法务区的法务产业和法务服务配套,汇聚城市鼎级资源

纯低密豪宅住区 高阶居住天花板
作为成都均价最贵、热度最高版块,麓湖一直是公认的豪宅“天花板”版块;
二手房项目高层3.9万元/㎡起,在售新房总价700万起,高门槛使购房者望而却步;
4年仅出让3宗土地,低密花园洋房断供多年,低供应让购房者无选择;
湖光玖里距麓湖公园约200米,在100-143㎡内总价较低项目,也是上车麓湖为数不多的机会

黄金3公里成熟配套,高端资源围绕
🏕 万亩生态:与红石公园一街之隔,麓湖生态区,天府森林公园、天府中央公园等近万亩绿肺环绕
立体化交通:3纵(天府大道、梓州大道、益州大道)3横(沈阳路、武汉路、麓山大道);3TOD环绕:麓湖东TOD(规划中)、昌公堰TOD(建设中)、青岛路TOD(建设中)


璀璨商业:麓湖水镇、伊藤天府旗舰店(在建中)、天府和悦广场、山姆会员店、麓山麓镇;
优质学府:天府七中、四川天府新区第七小学、元音中小学、天府新区麓湖幼儿园、天府新区麓湖小学

人文聚落:麓湖4A艺展中心、雪莲堂美术馆、省博物馆(规划中)、天府大剧院(规划中)
跃级花园洋房,全面超越的高配户型
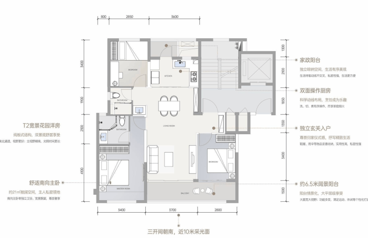
建面约102㎡板式花园洋房
市场稀缺8-11层洋房,最后购入麓湖洋房的机会

【T2宽景洋房】纯板式结构,南北通透、双景观视野
【约6.5m阳台】大面宽、大视野,大平层级的观景享受
【约40㎡竖厅】利用率更高,生活动线流畅
【南北双阳台】南北通透,独立晾纳,私密性强
建面约129㎡4+X创变四房
130㎡内唯一套4+X多功能空间,功能性最强产品

【X创变空间】多功能空间,满足家庭各阶段要求
【四开间朝南】约13.6米采光面,通风采光全升级
【LDKB社交】餐客厅连接书房阳台,一体化空间秩序,迭新生活场景
【约6.9米景观阳台】超大面宽,享巨幕风景
【三房带阔景飘窗】提升空间利用,可拓展功能空间,生活大有所享
建面约143㎡阔尺横厅四房
市场143㎡产品主功能区尺寸最大产品

【LDKB社交厅】约6.9米大面宽客餐厅与厨房、阳台无界连通
【约8.5m宽景阳台】270度广角视野,约1.8m进深,塑造花园梦
【五开间朝南】约15.9m采光面,超宽屏尺度,无遮挡视野;
【约26㎡大主卧】私享独立卫浴、衣帽间,双面观景享度假式生活
【灵动创变空间】定制化空间,满足家庭各个阶段的需求,书房、琴室、娱乐室随心布局
中海湖光玖里【营销中心】:028-84385818(预约看房)
【置业顾问】:18613205563(微信同步)
温馨提示:专业一对一热情服务,为了节约您的等待时间,看房请提前致电预约!!!
免责声明:
以上内容仅作为邀约邀请,涉及的图片为部分区域实拍图和美学畅想图,具体内容请以现场公示和合同约定为准;本文部分资料、部分图片来源于网络,如有侵权请联系我们删除。
声明:本文由入驻焦点开放平台的作者撰写,除焦点官方账号外,观点仅代表作者本人,不代表焦点立场。
