鼎能国宾天韵怎么样-地理位置-周边配套-鼎能国宾天韵预约看房
扫描到手机,新闻随时看
扫一扫,用手机看文章
更加方便分享给朋友
鼎能国宾天韵【营销中心】:028-84385818(预约看房)
【置业顾问】:18613205563(微信同步)
温馨提示:专业一对一热情服务,为了节约您的等待时间,看房请提前致电预约!!!
“金三银四”是房地产的传统旺季,在已经过去的3月里,全国不少城市出现了“独立行情”。
聚焦于成都来看,3月二手房总计成交25660套,全国第二;房价环比微涨0.1%。
有没有发现2025年,网上认为成都房价会涨和认为房价会跌的声音,都异常活跃?
前段时间金融城三期土拍地价破四万,以及年初新房、二手房成交量上涨,就有人嚷嚷成都房价要涨。
而这期间,时不时爆出来破发降价成交的二手房,又有人大呼成都房价会跌。
说成都房价会涨的,会降的,都有自己的理由。
在我看来,今年成都楼市,市场没有上涨预期,也没有下跌预期,2025年会是无趋势的一年!
△鼎能·国宾天韵区位图
特别是地铁。鼎能·国宾天韵紧靠金周路站,几乎相当于零距离、地铁上盖。据现场了解,未来还可能会有市政下穿隧道,可以实现地铁站直接连通小区,这自然比普通小区拥有更强的地段优势(仅供参考,不作为购房承诺和依据,请以政府部门公示相关规划为准)。
△鼎能·国宾天韵与地铁金周路站位置关系
该站点是地铁2号线和9号线二期(规划中)的换乘站。已通车的2号线,沟通东西 ,只要11站抵达天府广场,连接成都地理意义上的真正核芯;9号线则是成都第二条环线运行的地铁,未来2期通车后,能直达金融城。
效果图
同时,金周路站也是金牛区重点打造的TOD枢纽之一,集教育、医疗、社区配套为一体的组团级核心(注①),规划了丰富的未来场景。
双地铁换乘也迅速拉近了此处融入繁华商圈的距离。金牛区 国宾板块 地铁口10米 精装小高,南北朝向、两梯两户 纯板式结构
带约10㎡的私家入户花园
项目占地面积约29亩,容积率2.13,绿化率35%,总户数300户,共规划打造了8个楼栋。其中住宅部分7栋,均为17F、2T2户纯板式小高层。项目为南北朝向,呈行列式布局,充分保证了楼栋的通风采光效果。
△鼎能·国宾天韵效果图
在楼栋外立面的设计上,鼎能·国宾天韵采用了光幕立面和钻石手法切割,整个建筑线条横平竖直,自带锋芒。建成后,将形成极具辨识度的立面视觉效果。
△鼎能·国宾天韵外立面效果图
在公共区域的设计上,项目打造有“三重归家”礼序。承现代归家礼制,打造精奢酒店式归家礼序:一进登门望府,二进流光映水,三进汜水归塘,归家意境,步步尊礼相迎。
△鼎能·国宾天韵项目园林效果图
在景观效果上,以“一街·一环·一府门·四园”景观体系,臻造城市橱窗、登门望府、心灵剧场、时光书院、童梦乐园、乐活能量场等多维景观组团。
【项目基本信息】
开发商:成都鼎能金海房地产开发有限责任公司
总占地:28.7亩
总户数:300户
楼栋总数:住宅7栋+1栋商业
在售楼栋:#7#8号楼(116平)#5(129平)
总高楼层:17层
在售面积:116m²套三129m²套四
单价:2.3万-2.5万左右
总价:116m²:260万-280万
129m²:325万左右
装修标准:精装+三大件(标准:2380元/m²)
得房率:95%左右
梯户 比:2T2户
容积率:2.13
绿化绿:35%
停车位:382个(1:1.27)
物业费:2.9元/m²
物业公司:鼎申(自持)
交房时间:2025年12月
【项目配套】
交通:2号线金周路地铁 TOD站口10米,
9号线2期(规划中)
医疗:成都中医药大学附属医院、三六三医院
(犀浦院区)、华西上锦分院等三甲医院
商业:龙湖西宸天街商圈、中海国际商圈、
欢乐谷商圈、一品天下商圈、犀浦商
教育:①幼儿园:成都市第四幼文创园区、
京师小学堂成都国际幼儿园、金牛区机
关二幼
②小学:茶店子小学金樽校区、
迎宾路小学
③中学:成都外国语学校、七中万达、
金牛中学
公园:约3000亩天府艺术公园、约120亩易
园、约6000亩两河森林公园+金泉运动
公园+中海体育公园,等多个城市公园。
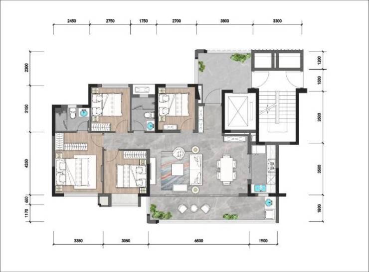
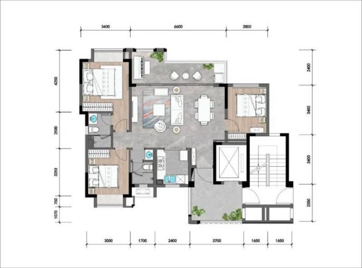
【户型图】
116㎡套三双卫
129㎡套四双卫
鼎能国宾天韵【营销中心】:028-84385818(预约看房)
【置业顾问】:18613205563(微信同步)
温馨提示:专业一对一热情服务,为了节约您的等待时间,看房请提前致电预约!!!
免责声明:
以上内容仅作为邀约邀请,涉及的图片为部分区域实拍图和美学畅想图,具体内容请以现场公示和合同约定为准;本文部分资料、部分图片来源于网络,如有侵权请联系我们删除。
声明:本文由入驻焦点开放平台的作者撰写,除焦点官方账号外,观点仅代表作者本人,不代表焦点立场。
